Your email has been sent.
Highlights
- Redwood Tower is the premier air rights building in the Inner Harbor, located a short three-minute walk to Harbor Place.
- Over $5.0 million and building capital improvements over the past five years.
- Approximately 95%-leased and a notable address among attorneys, accountants, and government tenants.
- Ground-floor lobby/security, 9th-floor sky lobby to tenant tower.
- Renovations include updated lobbies, cooling towers, a comprehensive building-wide building energy management system (HVAC) upgrade, and more.
- Tenants have deeded access to parking in the water street garage located at 208 Water Street at a ratio of 1:1,000 RSF.
All Available Spaces(6)
Display Rental Rate as
- Space
- Size
- Term
- Rental Rate
- Space Use
- Build-Out
- Available
- Fully Built-Out as Standard Office
- Mostly Open Floor Plan Layout
- Fully Built-Out as Standard Office
- Office intensive layout
- Fully Built-Out as Standard Office
- Office intensive layout
- Fully Built-Out as Standard Office
- Can be combined with additional space(s) for up to 43,290 SF of adjacent space
- Mostly Open Floor Plan Layout
- Fully Built-Out as Standard Office
- Can be combined with additional space(s) for up to 43,290 SF of adjacent space
- Mostly Open Floor Plan Layout
- Fully Built-Out as Standard Office
- Can be combined with additional space(s) for up to 43,290 SF of adjacent space
- Office intensive layout
| Space | Size | Term | Rental Rate | Space Use | Build-Out | Available |
| 9th Floor | 1,039 SF | Negotiable | Upon Request Upon Request Upon Request Upon Request | Office | Full Build-Out | Now |
| 11th Floor | 2,257 SF | Negotiable | Upon Request Upon Request Upon Request Upon Request | Office | Full Build-Out | Now |
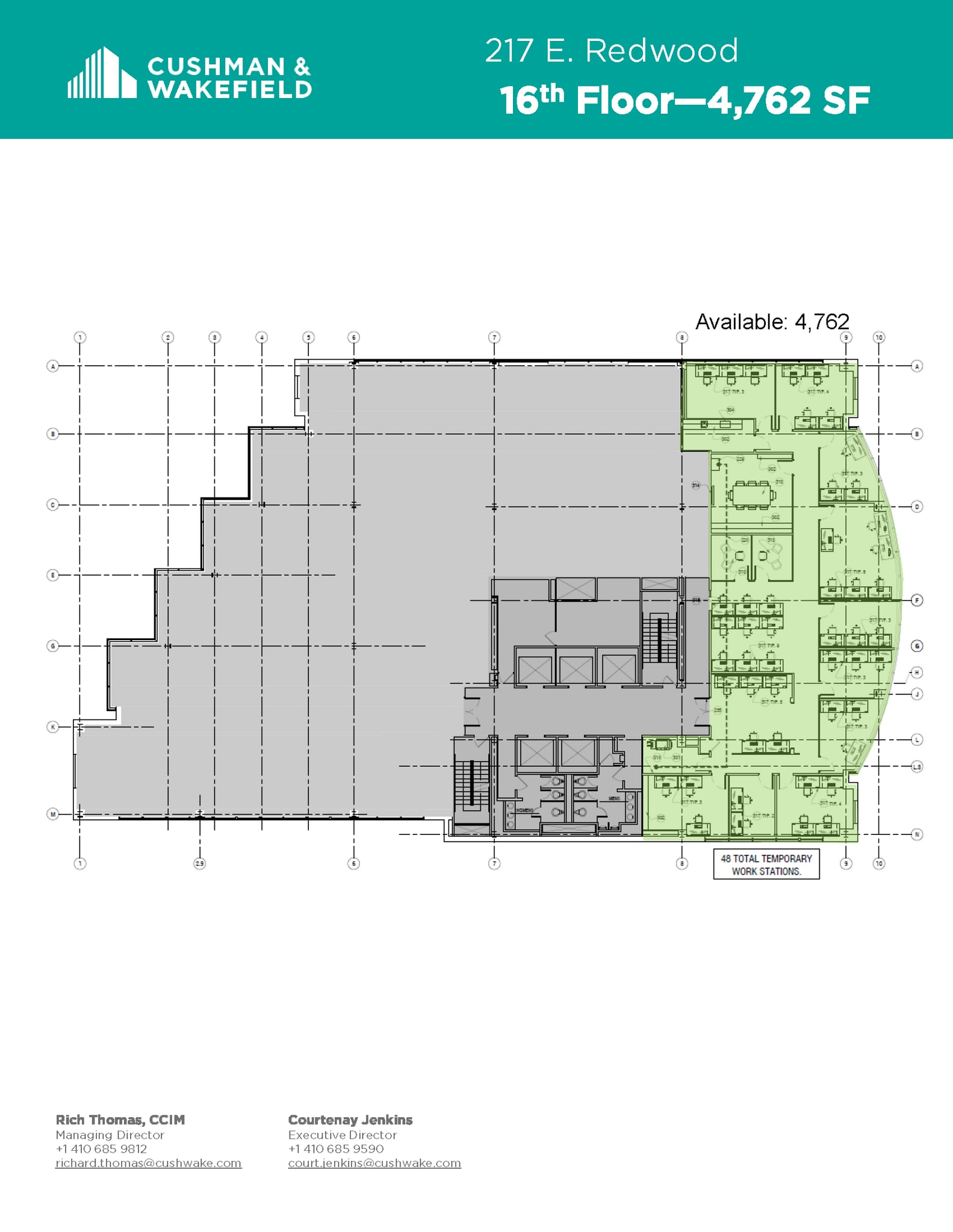
| 16th Floor, Ste 1650 | 4,762 SF | Negotiable | Upon Request Upon Request Upon Request Upon Request | Office | Full Build-Out | Now |
| 17th Floor | 14,430 SF | Negotiable | Upon Request Upon Request Upon Request Upon Request | Office | Full Build-Out | Now |
| 18th Floor | 14,430 SF | Negotiable | Upon Request Upon Request Upon Request Upon Request | Office | Full Build-Out | Now |
| 19th Floor | 14,430 SF | Negotiable | Upon Request Upon Request Upon Request Upon Request | Office | Full Build-Out | Now |
9th Floor
| Size |
| 1,039 SF |
| Term |
| Negotiable |
| Rental Rate |
| Upon Request Upon Request Upon Request Upon Request |
| Space Use |
| Office |
| Build-Out |
| Full Build-Out |
| Available |
| Now |
11th Floor
| Size |
| 2,257 SF |
| Term |
| Negotiable |
| Rental Rate |
| Upon Request Upon Request Upon Request Upon Request |
| Space Use |
| Office |
| Build-Out |
| Full Build-Out |
| Available |
| Now |
16th Floor, Ste 1650
| Size |
| 4,762 SF |
| Term |
| Negotiable |
| Rental Rate |
| Upon Request Upon Request Upon Request Upon Request |
| Space Use |
| Office |
| Build-Out |
| Full Build-Out |
| Available |
| Now |
17th Floor
| Size |
| 14,430 SF |
| Term |
| Negotiable |
| Rental Rate |
| Upon Request Upon Request Upon Request Upon Request |
| Space Use |
| Office |
| Build-Out |
| Full Build-Out |
| Available |
| Now |
18th Floor
| Size |
| 14,430 SF |
| Term |
| Negotiable |
| Rental Rate |
| Upon Request Upon Request Upon Request Upon Request |
| Space Use |
| Office |
| Build-Out |
| Full Build-Out |
| Available |
| Now |
19th Floor
| Size |
| 14,430 SF |
| Term |
| Negotiable |
| Rental Rate |
| Upon Request Upon Request Upon Request Upon Request |
| Space Use |
| Office |
| Build-Out |
| Full Build-Out |
| Available |
| Now |
9th Floor
| Size | 1,039 SF |
| Term | Negotiable |
| Rental Rate | Upon Request |
| Space Use | Office |
| Build-Out | Full Build-Out |
| Available | Now |
- Fully Built-Out as Standard Office
- Mostly Open Floor Plan Layout
11th Floor
| Size | 2,257 SF |
| Term | Negotiable |
| Rental Rate | Upon Request |
| Space Use | Office |
| Build-Out | Full Build-Out |
| Available | Now |
- Fully Built-Out as Standard Office
- Office intensive layout
16th Floor, Ste 1650
| Size | 4,762 SF |
| Term | Negotiable |
| Rental Rate | Upon Request |
| Space Use | Office |
| Build-Out | Full Build-Out |
| Available | Now |
- Fully Built-Out as Standard Office
- Office intensive layout
17th Floor
| Size | 14,430 SF |
| Term | Negotiable |
| Rental Rate | Upon Request |
| Space Use | Office |
| Build-Out | Full Build-Out |
| Available | Now |
- Fully Built-Out as Standard Office
- Mostly Open Floor Plan Layout
- Can be combined with additional space(s) for up to 43,290 SF of adjacent space
18th Floor
| Size | 14,430 SF |
| Term | Negotiable |
| Rental Rate | Upon Request |
| Space Use | Office |
| Build-Out | Full Build-Out |
| Available | Now |
- Fully Built-Out as Standard Office
- Mostly Open Floor Plan Layout
- Can be combined with additional space(s) for up to 43,290 SF of adjacent space
19th Floor
| Size | 14,430 SF |
| Term | Negotiable |
| Rental Rate | Upon Request |
| Space Use | Office |
| Build-Out | Full Build-Out |
| Available | Now |
- Fully Built-Out as Standard Office
- Office intensive layout
- Can be combined with additional space(s) for up to 43,290 SF of adjacent space
Property Overview
Redwood Tower is a 23-story Class A office tower at 217 E Redwood Street in Baltimore, Maryland. Constructed in 1987 and recently renovated, this building is a perfect choice for a professional office user looking for quality office space in Inner Harbor. New renovations to the building include updated lobbies, upgraded cooling towers, and a comprehensive building-wide HVAC upgrade. Tenants have deeded access to parking in the adjacent Water Street Garage. Amenities in the building include on-site security, stunning views, conference facilities, and a relaxing skydeck on the ninth floor. I-395, I-95, and I-83 are all easily accessed from the property. Located a few blocks from Charles Center (Metro Subwaylink), University Center (Light Rail), and Camden Center (MARC), Redwood Tower offers excellent public transport connectivity. Located in the heart of the Bromo Arts District, Redwood tower features a premier address near the best entertainment, shopping, and dining Baltimore has to offer. Catch a baseball game at Camden Yards or a stage play at the Everyman Theatre, both within walking distance. The property is also just a stone's throw away from leading medical facilities and universities, including the University of Maryland, Mercy Medical, and John Hopkins.
- Bus Line
- Conferencing Facility
- Natural Light
- Balcony
Property Facts
Select Tenants
- Floor
- Tenant Name
- Industry
- 11th
- American Heart Association
- Services
- 21st
- Astrachan Gunst & Thomas
- Professional, Scientific, and Technical Services
- 9th
- Business & Economic Development Council
- Public Administration
- 18th
- Defense Contract Management Agency
- Public Administration
- 10th
- International Business Office
- Public Administration
- 13th
- Maryland 529
- Finance and Insurance
- 13th
- Maryland Department of Disabilities
- Public Administration
- Multiple
- Philips Healthcare
- Wholesaler
- 9th
- Redwood Tower LP
- Real Estate
- 12th
- U.S. Customs and Border Protection
- Public Administration
Presented by
Redwood Tower | 217 E Redwood St
Hmm, there seems to have been an error sending your message. Please try again.
Thanks! Your message was sent.









