Your email has been sent.
Highlights
- Large Private Offices
- Private Restrooms
- Walkability to restaurants and retail
- Breakrooms
- Open communal work area
All Available Spaces(2)
Display Rental Rate as
- Space
- Size
- Term
- Rental Rate
- Space Use
- Build-Out
- Available
2nd Floor - 3,510 sf consisting of five large offices/conference rooms, reception area, open break room, podcast/production studio and large open work area.
- Listed rate may not include certain utilities, building services and property expenses
- Fits 9 - 29 People
- Conference Rooms
- Plug & Play
- Reception Area
- Elevator Access
- Private Restrooms
- 3,510 SF
- Podcast and production studio
- Reception Area
- Fully Built-Out as Standard Office
- Partitioned Offices
- Space is in Excellent Condition
- Central Air and Heating
- Wi-Fi Connectivity
- Print/Copy Room
- Smoke Detector
- Five Large Offices
- Large open work area
- Open Break Room
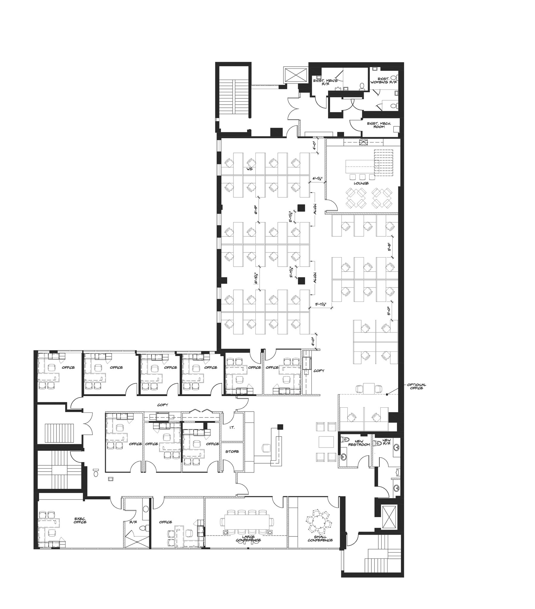
3rd Floor - 8,962 sf consisting of reception area, small conference, large conference, 10 private offices, one large exec office with restroom, large employee lounge with kitchen, open area for approximately 35 cubicles and four restrooms.
- Listed rate may not include certain utilities, building services and property expenses
- Fits 23 - 72 People
- Space is in Excellent Condition
- Central Air and Heating
- Wi-Fi Connectivity
- Private Restrooms
- Open-Plan
- Reception Area
- Small and Large Conference
- Large employee lounge with kitchen
- Fully Built-Out as Standard Office
- Partitioned Offices
- Plug & Play
- Reception Area
- Print/Copy Room
- Secure Storage
- Smoke Detector
- Reception Area
- 10 Private Offices
- 35 cubicles
| Space | Size | Term | Rental Rate | Space Use | Build-Out | Available |
| 2nd Floor | 3,510 SF | Negotiable | $54.70 CAD/SF/YR $4.56 CAD/SF/MO $192,011 CAD/YR $16,001 CAD/MO | Office | Full Build-Out | Now |
| 3rd Floor | 8,962 SF | Negotiable | $54.70 CAD/SF/YR $4.56 CAD/SF/MO $490,257 CAD/YR $40,855 CAD/MO | Office | Full Build-Out | 2026-06-30 |
2nd Floor
| Size |
| 3,510 SF |
| Term |
| Negotiable |
| Rental Rate |
| $54.70 CAD/SF/YR $4.56 CAD/SF/MO $192,011 CAD/YR $16,001 CAD/MO |
| Space Use |
| Office |
| Build-Out |
| Full Build-Out |
| Available |
| Now |
3rd Floor
| Size |
| 8,962 SF |
| Term |
| Negotiable |
| Rental Rate |
| $54.70 CAD/SF/YR $4.56 CAD/SF/MO $490,257 CAD/YR $40,855 CAD/MO |
| Space Use |
| Office |
| Build-Out |
| Full Build-Out |
| Available |
| 2026-06-30 |
2nd Floor
| Size | 3,510 SF |
| Term | Negotiable |
| Rental Rate | $54.70 CAD/SF/YR |
| Space Use | Office |
| Build-Out | Full Build-Out |
| Available | Now |
2nd Floor - 3,510 sf consisting of five large offices/conference rooms, reception area, open break room, podcast/production studio and large open work area.
- Listed rate may not include certain utilities, building services and property expenses
- Fully Built-Out as Standard Office
- Fits 9 - 29 People
- Partitioned Offices
- Conference Rooms
- Space is in Excellent Condition
- Plug & Play
- Central Air and Heating
- Reception Area
- Wi-Fi Connectivity
- Elevator Access
- Print/Copy Room
- Private Restrooms
- Smoke Detector
- 3,510 SF
- Five Large Offices
- Podcast and production studio
- Large open work area
- Reception Area
- Open Break Room
3rd Floor
| Size | 8,962 SF |
| Term | Negotiable |
| Rental Rate | $54.70 CAD/SF/YR |
| Space Use | Office |
| Build-Out | Full Build-Out |
| Available | 2026-06-30 |
3rd Floor - 8,962 sf consisting of reception area, small conference, large conference, 10 private offices, one large exec office with restroom, large employee lounge with kitchen, open area for approximately 35 cubicles and four restrooms.
- Listed rate may not include certain utilities, building services and property expenses
- Fully Built-Out as Standard Office
- Fits 23 - 72 People
- Partitioned Offices
- Space is in Excellent Condition
- Plug & Play
- Central Air and Heating
- Reception Area
- Wi-Fi Connectivity
- Print/Copy Room
- Private Restrooms
- Secure Storage
- Open-Plan
- Smoke Detector
- Reception Area
- Reception Area
- Small and Large Conference
- 10 Private Offices
- Large employee lounge with kitchen
- 35 cubicles
Property Overview
AVAILABLE 2/1/2026 - Join PNC in the heart of West Palm Beach’s Flagler Financial District, conveniently located near I-95, Palm Beach International Airport, the Convention Center and City Place. This desirable location is within walking distance to City Center, the County Courthouse, Flagler Drive water front, shops and restaurants along Clematis Street and the Brightline Train Station.
Property Facts
Select Tenants
- Floor
- Tenant Name
- Industry
- 3rd
- Digital Resource
- Professional, Scientific, and Technical Services
- 1st
- PNC Bank
- Finance and Insurance
Presented by
218 Datura St
Hmm, there seems to have been an error sending your message. Please try again.
Thanks! Your message was sent.









