Your email has been sent.
Highlights
- Convenient access to Highway 101
- High ceilings and natural light
- Heavy power and excellent utility infrastructure
- Ample parking and loading facilities
- Secure and well-maintained premises
Features
All Available Space(1)
Display Rental Rate as
- Space
- Size
- Term
- Rental Rate
- Space Use
- Condition
- Available
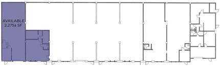
Suite I-J consisting of approximately 1465 square feet of warehouse space with 810 square feet of office space. The warehouse features clear span space (no columns) with 12'± ceilings, a single grade-level roll-up door and a shop restroom. The spartan office has natural light, mostly open space and an office restroom
- Listed rate may not include certain utilities, building services and property expenses
- Natural Light
- Includes 810 SF of dedicated office space
| Space | Size | Term | Rental Rate | Space Use | Condition | Available |
| 1st Floor - I-J | 2,275 SF | 1-5 Years | $27.24 CAD/SF/YR $2.27 CAD/SF/MO $61,974 CAD/YR $5,164 CAD/MO | Industrial | Full Build-Out | Now |
1st Floor - I-J
| Size |
| 2,275 SF |
| Term |
| 1-5 Years |
| Rental Rate |
| $27.24 CAD/SF/YR $2.27 CAD/SF/MO $61,974 CAD/YR $5,164 CAD/MO |
| Space Use |
| Industrial |
| Condition |
| Full Build-Out |
| Available |
| Now |
1st Floor - I-J
| Size | 2,275 SF |
| Term | 1-5 Years |
| Rental Rate | $27.24 CAD/SF/YR |
| Space Use | Industrial |
| Condition | Full Build-Out |
| Available | Now |
Suite I-J consisting of approximately 1465 square feet of warehouse space with 810 square feet of office space. The warehouse features clear span space (no columns) with 12'± ceilings, a single grade-level roll-up door and a shop restroom. The spartan office has natural light, mostly open space and an office restroom
- Listed rate may not include certain utilities, building services and property expenses
- Includes 810 SF of dedicated office space
- Natural Light
Property Overview
Located in the Bel Marin Keys Business Park in the city of Novato, CA, the area surrounding the property boasts a thriving business community and a range of amenities catered to Industrial/Manufacturing tenants. With convenient access to Highway 101 and close proximity to major transportation hubs, the location provides seamless connectivity for logistics and distribution operations. Nearby, tenants can find the Hamilton Marketplace, a retail and dining destination perfect for grabbing a quick bite or shopping for business essentials.
Property Facts
Select Tenants
- Floor
- Tenant Name
- Industry
- 1st
- Chem-Dry
- Services
- 1st
- Marin Kombucha
- Retailer
Presented by
22 Commercial Blvd
Hmm, there seems to have been an error sending your message. Please try again.
Thanks! Your message was sent.






