Log In/Sign Up
Your email has been sent.
22 Roman Pl 0.32 Acres of Residential Land Offered at $484,379 CAD in Westbury BA13 4GH



Investment Highlights
- Residential Development Site
- Fully Serviced Plot
- Detailed Planning Consent for 3 Detached Dwellings
- Edge of Town Centre Adjacent to Heron Rise & Westbury Railway Station
Executive Summary
The freehold is available for the guide price of £260,000.
Property Facts
| Price | $484,379 CAD | Property Type | Land |
| Sale Type | Investment | Property Subtype | Residential |
| Tenure | Freehold | Proposed Use | Single Family Development |
| No. Lots | 1 | Total Lot Size | 0.32 AC |
| Price | $484,379 CAD |
| Sale Type | Investment |
| Tenure | Freehold |
| No. Lots | 1 |
| Property Type | Land |
| Property Subtype | Residential |
| Proposed Use | Single Family Development |
| Total Lot Size | 0.32 AC |
1 Lot Available
Lot
| Price | $484,379 CAD | Lot Size | 0.32 AC |
| Price Per AC | $1,513,685.09 CAD |
| Price | $484,379 CAD |
| Price Per AC | $1,513,685.09 CAD |
| Lot Size | 0.32 AC |
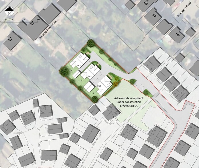
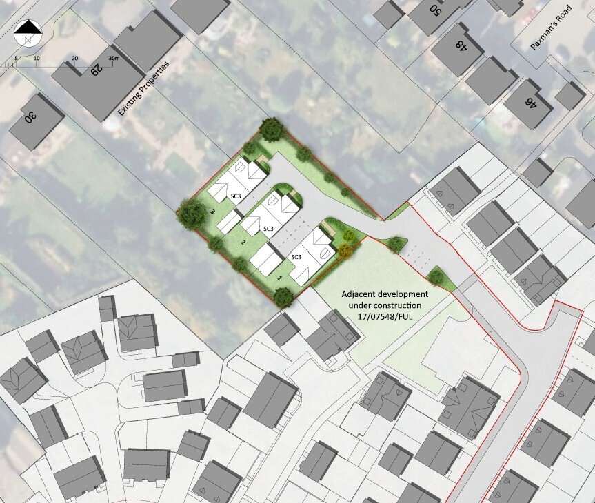
0.32 acre plot with detailed planning consent for 3 detached dwellings.
Description
The site is situated off Station Road to the rear of the new Heron Rise housing development (87 units) by Newland Homes, completed in 2024 and within a short walk to Westbury Railway Station. The former garden land comprises a level development plot accessed from Station Road, via the Heron Rise estate road.
1 1
1 of 4
Videos
Matterport 3D Exterior
Matterport 3D Tour
Photos
Street View
Street
Map
1 of 1
Presented by
22 Roman Pl
Already a member? Log In
Hmm, there seems to have been an error sending your message. Please try again.
Thanks! Your message was sent.
