Log In/Sign Up
Your email has been sent.
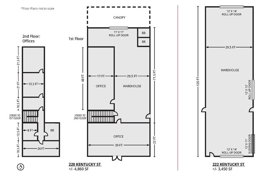
220-222 Kentucky St
Bakersfield, CA 93305
220 & 222 Kentucky St + 1010 Alta Vista Dr · Industrial Property For Lease
·
8,310 SF


Highlights
- Fully fenced & partially paved yard
- Ample street parking available
- Yard with 4 access points
Features
Drive In Bays
1
Standard Parking Spaces
4
Property Overview
• Lot size: +/- 0.51 acres - 1010 Alta Vista Dr: +/- 0.29 acre Yard (not included in total sq ft) • Located on corner lot on Kentucky St & Alta Vista Dr near Downtown Bakersfield • Zoning: M-1 (Light Industrial), City of Bakersfield
Warehouse Facility Facts
Building Size
8,310 SF
Lot Size
0.51 AC
Year Built
1950
Construction
Metal
Power Supply
Amps: 200 Volts: 120-208 Phase: 3
Zoning
M-1 - Light Industrial
1 of 17
Videos
Matterport 3D Exterior
Matterport 3D Tour
Photos
Street View
Street
Map
