Log In/Sign Up
Your email has been sent.
2214 5th St - Shoppes at Banning and Fifth 7,651 SF Office/Medical Condo Unit in White Bear Lake, MN 55110



Investment Highlights
- Private Entrance, Multiple Exam Room/Offices, Vaulted Ceilings with Wood Beams
- Central Air with Multiple Zones
Executive Summary
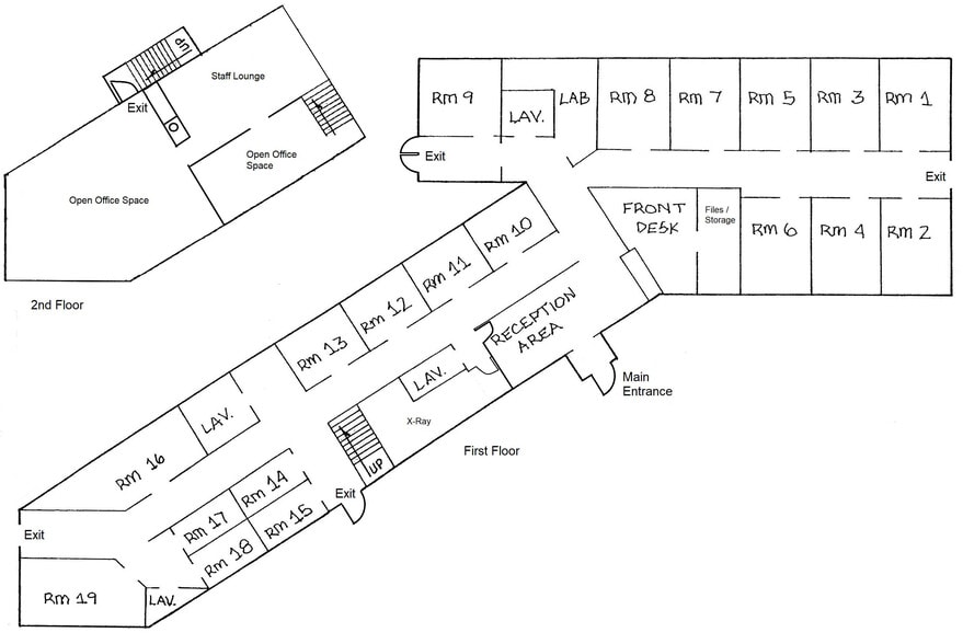
This former medical office would be ideal for general practice, specialty medical, counseling clinic, autism clinic, spa, or a business that wants visibility, a professional environment, and is conveniently located just a few steps from a wide array of retail, dining and entertainment.
1 Unit Available
- Unit
- Unit Size
- Condo Use
- Price
- NOI
| Sale Type | Investment or Owner User |
| Sale Type | Investment or Owner User |
Description
- Private Entrance, Multiple Exam Room/Offices, Vaulted Ceilings with Wood Beams
- Central Air with Multiple Zones,
- Private Parking Lot, Large Public Parking Lot and Off-Street Parking Available
- Central Air with Multiple Zones,
- Private Parking Lot, Large Public Parking Lot and Off-Street Parking Available
| Unit | Unit Size | Condo Use | Price | NOI |
| Unit 6-8 | 7,651 SF | Office/Medical | Upon Request | - |
Unit 6-8
| Unit Size |
| 7,651 SF |
| Condo Use |
| Office/Medical |
| Price |
| Upon Request |
| NOI |
| - |
1 of 3
Videos
Matterport 3D Exterior
Matterport 3D Tour
Photos
Street View
Street
Map
Unit 6-8
| Unit Size | 7,651 SF |
| Condo Use | Office/Medical |
| Price | Upon Request |
| NOI | - |
| Sale Type | Investment or Owner User |
| Description | |
| - Private Entrance, Multiple Exam Room/Offices, Vaulted Ceilings with Wood Beams<br> - Central Air with Multiple Zones, <br> - Private Parking Lot, Large Public Parking Lot and Off-Street Parking Available</li></ul> |
Property Facts
The following property facts and amenities apply to the entire building. Details for individual condo units may vary and are listed in the unit information above.
Amenities
- 24 Hour Access
- Signage
- Monument Signage
- Air Conditioning
Moderately walkable
60/100
Exceptionally drivable
90/100
Fairly bikeable
50/100
1 of 19
Videos
Matterport 3D Exterior
Matterport 3D Tour
Photos
Street View
Street
Map
Presented by
2214 5th St - Shoppes at Banning and Fifth
Already a member? Log In
Hmm, there seems to have been an error sending your message. Please try again.
Thanks! Your message was sent.



