Your email has been sent.
2215 Central Ave - Option 1 - Mixed Use Development L 4.41 Acres of Commercial Land Offered at $1,825,585 CAD in Summerville, SC 29483



INVESTMENT HIGHLIGHTS
- Situated in the rapidly growing town of Summerville, this property offers excellent access to local amenities, schools, parks, and major roadways
- Water and sewer impact fees have already been paid and are included in the $1,525,000 purchase price, making this a hassle-free investment
- With all necessary approvals in place, the pr0perty is primed for immediate development, saving valuable time and resources
- All necessary permits are secured, ensuring a smooth transition from planning to construction. ($200,000)
- The site is zoned and approved for a residential townhome development, providing a desirable product for today’s housing market
EXECUTIVE SUMMARY
Property Highlights:
• Prime Location: Situated in the rapidly growing town of Summerville, this property offers excellent access to local amenities, schools, parks, and major roadways.
• Fully Approved Permits: All necessary permits are secured, ensuring a smooth transition from planning to construction. ($200,000)
• Impact Feed Paid: Water and sewer impact fees have already been paid and are included in the $1,525,000 purchase price, making this a hassle-free investment.
• Ideal for Townhomes: The site is zoned and approved for a residential townhome development, providing a desirable product for today’s housing market.
• Ready for Construction: With all necessary approvals in place, the pr0perty is primed for immediate development, saving valuable time and resources.
Take advantage of this rare opportunity to develop in one of South Carolina’s fastest-growing communities. Whether
you are an experiences builder or a first-time developer, 2215 Central Ave offers a straightforward and profitable path
forward.
PROPERTY FACTS Under Contract
| Price | $1,825,585 CAD | Property Subtype | Commercial |
| Sale Type | Investment | Proposed Use | |
| No. Lots | 1 | Total Lot Size | 4.41 AC |
| Property Type | Land | ||
| Zoning | PUD - Planned Urban Development | ||
| Price | $1,825,585 CAD |
| Sale Type | Investment |
| No. Lots | 1 |
| Property Type | Land |
| Property Subtype | Commercial |
| Proposed Use | |
| Total Lot Size | 4.41 AC |
| Zoning | PUD - Planned Urban Development |
1 LOT AVAILABLE
Lot
| Price | $1,825,585 CAD | Lot Size | 4.41 AC |
| Price Per AC | $413,964.85 CAD |
| Price | $1,825,585 CAD |
| Price Per AC | $413,964.85 CAD |
| Lot Size | 4.41 AC |
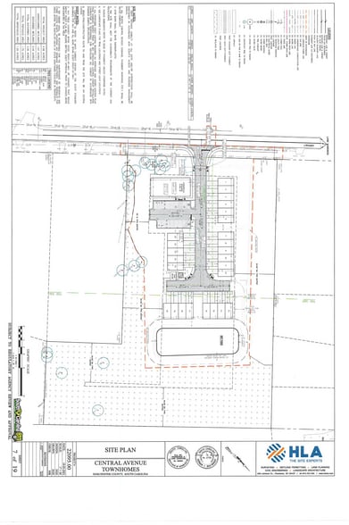
An exceptional investment opportunity awaits with this fully approved residential townhome development site, located at 2215 Central Avenue in Summerville, South Carolina
DESCRIPTION
Rare Mixed use development opportunity to build 25 residential townhomes and a 3,400 sqft commercial/office/retail building. Fully approved with permits in hand to start construction. Final sale includes approvals, permits, impact fees paid and all civil engineering plans. This opportunity allows a builder/developer/investor to step right in and commence construction. There are three option to purchase this development: Option #1: Purchase total mixed use development land: $1,525,000 Option #2: Purchase stand alone commercial building land: $200,000 Option #3: Purchase land for 25 Residential townhome lots: $1,325,000
PROPERTY TAXES
| Parcel Numbers | Improvements Assessment | $0 CAD | |
| Land Assessment | $243,902 CAD | Total Assessment | $243,902 CAD |
PROPERTY TAXES
Presented by
2215 Central Ave - Option 1 - Mixed Use Development L
Hmm, there seems to have been an error sending your message. Please try again.
Thanks! Your message was sent.
