Your email has been sent.
Ramapo Medical and Professional Bldg 222 Route 59 2,217 - 10,211 SF of Space Available in Airmont, NY 10901



Highlights
- High End Modern building with Glass partitions, Glass railings and Glass skylight
All Available Spaces(3)
Display Rental Rate as
- Space
- Size
- Term
- Rental Rate
- Space Use
- Build-Out
- Available
- Lease rate does not include utilities, property expenses or building services
- Mostly Open Floor Plan Layout
- 2 Private Offices
- Finished Ceilings: 9’
- Reception Area
- Private Restrooms
- Corner Space
- After Hours HVAC Available
- Wheelchair Accessible
- Fully Built-Out as Health Care Space
- Fits 10 - 35 People
- 1 Conference Room
- Space is in Excellent Condition
- Central Air and Heating
- Fully Carpeted
- Drop Ceilings
- Private Restrooms
- Ground Floor 1st suite from building Entrance.
Brand new fully built out office was never occupied. the only suite with direct access to the building exterior Beautifully constructed open layout with exposed open ceiling , space includes 5 Restrooms ,2 separate Breakrooms, a Mothers room , Corner Executive office with high-end finishes, Conference room and with full IT Infrastructure run.
- Lease rate does not include utilities, property expenses or building services
- Mostly Open Floor Plan Layout
- 5 Private Offices
- Finished Ceilings: 8’ - 9’
- Central Air and Heating
- Print/Copy Room
- Security System
- High Ceilings
- Natural Light
- Private Restrooms
- Smoke Detector
- Medical office building
- Fully Built-Out as Health Care Space
- Fits 11 - 34 People
- 1 Conference Room
- Space is in Excellent Condition
- Wi-Fi Connectivity
- Fully Carpeted
- Plug & Play
- Exposed Ceiling
- Emergency Lighting
- Open-Plan
- Wheelchair Accessible
- Lease rate does not include utilities, property expenses or building services
- Space is in Excellent Condition
- Fully Built-Out as Dental Office Space
| Space | Size | Term | Rental Rate | Space Use | Build-Out | Available |
| 1st Floor, Ste 102 | 3,764 SF | 7-10 Years | $38.57 CAD/SF/YR $3.21 CAD/SF/MO $145,177 CAD/YR $12,098 CAD/MO | Office/Medical | Full Build-Out | Now |
| 1st Floor, Ste 110 | 4,230 SF | 7-10 Years | $38.57 CAD/SF/YR $3.21 CAD/SF/MO $163,151 CAD/YR $13,596 CAD/MO | Office/Medical | Full Build-Out | Now |
| 2nd Floor, Ste 211 | 2,217 SF | 10 Years | $38.57 CAD/SF/YR $3.21 CAD/SF/MO $85,510 CAD/YR $7,126 CAD/MO | Medical | Full Build-Out | Now |
1st Floor, Ste 102
| Size |
| 3,764 SF |
| Term |
| 7-10 Years |
| Rental Rate |
| $38.57 CAD/SF/YR $3.21 CAD/SF/MO $145,177 CAD/YR $12,098 CAD/MO |
| Space Use |
| Office/Medical |
| Build-Out |
| Full Build-Out |
| Available |
| Now |
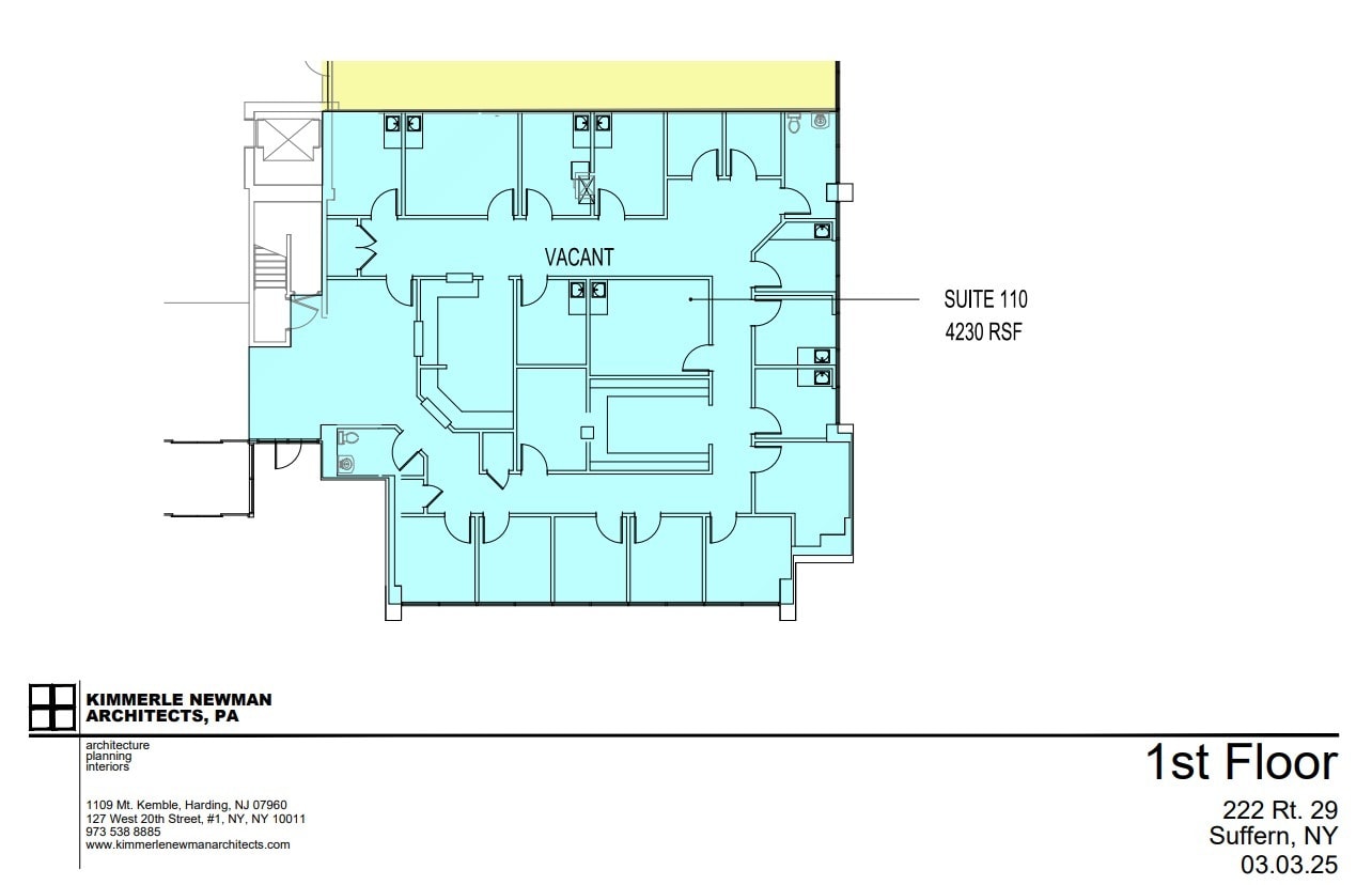
1st Floor, Ste 110
| Size |
| 4,230 SF |
| Term |
| 7-10 Years |
| Rental Rate |
| $38.57 CAD/SF/YR $3.21 CAD/SF/MO $163,151 CAD/YR $13,596 CAD/MO |
| Space Use |
| Office/Medical |
| Build-Out |
| Full Build-Out |
| Available |
| Now |
2nd Floor, Ste 211
| Size |
| 2,217 SF |
| Term |
| 10 Years |
| Rental Rate |
| $38.57 CAD/SF/YR $3.21 CAD/SF/MO $85,510 CAD/YR $7,126 CAD/MO |
| Space Use |
| Medical |
| Build-Out |
| Full Build-Out |
| Available |
| Now |
1st Floor, Ste 102
| Size | 3,764 SF |
| Term | 7-10 Years |
| Rental Rate | $38.57 CAD/SF/YR |
| Space Use | Office/Medical |
| Build-Out | Full Build-Out |
| Available | Now |
- Lease rate does not include utilities, property expenses or building services
- Fully Built-Out as Health Care Space
- Mostly Open Floor Plan Layout
- Fits 10 - 35 People
- 2 Private Offices
- 1 Conference Room
- Finished Ceilings: 9’
- Space is in Excellent Condition
- Reception Area
- Central Air and Heating
- Private Restrooms
- Fully Carpeted
- Corner Space
- Drop Ceilings
- After Hours HVAC Available
- Private Restrooms
- Wheelchair Accessible
- Ground Floor 1st suite from building Entrance.
1st Floor, Ste 110
| Size | 4,230 SF |
| Term | 7-10 Years |
| Rental Rate | $38.57 CAD/SF/YR |
| Space Use | Office/Medical |
| Build-Out | Full Build-Out |
| Available | Now |
Brand new fully built out office was never occupied. the only suite with direct access to the building exterior Beautifully constructed open layout with exposed open ceiling , space includes 5 Restrooms ,2 separate Breakrooms, a Mothers room , Corner Executive office with high-end finishes, Conference room and with full IT Infrastructure run.
- Lease rate does not include utilities, property expenses or building services
- Fully Built-Out as Health Care Space
- Mostly Open Floor Plan Layout
- Fits 11 - 34 People
- 5 Private Offices
- 1 Conference Room
- Finished Ceilings: 8’ - 9’
- Space is in Excellent Condition
- Central Air and Heating
- Wi-Fi Connectivity
- Print/Copy Room
- Fully Carpeted
- Security System
- Plug & Play
- High Ceilings
- Exposed Ceiling
- Natural Light
- Emergency Lighting
- Private Restrooms
- Open-Plan
- Smoke Detector
- Wheelchair Accessible
- Medical office building
2nd Floor, Ste 211
| Size | 2,217 SF |
| Term | 10 Years |
| Rental Rate | $38.57 CAD/SF/YR |
| Space Use | Medical |
| Build-Out | Full Build-Out |
| Available | Now |
- Lease rate does not include utilities, property expenses or building services
- Fully Built-Out as Dental Office Space
- Space is in Excellent Condition
Features and Amenities
- 24 Hour Access
- Security System
Property Facts
Select Tenants
- Floor
- Tenant Name
- Industry
- 2nd
- Allergy & Asthma Care of Rockland, P.C.
- Health Care and Social Assistance
- 1st
- Apple Tree Dental P.C.
- Health Care and Social Assistance
- 2nd
- LabCorp
- Health Care and Social Assistance
- 2nd
- Leading Edge Endodontics
- Health Care and Social Assistance
- 1st
- Mount Sinai
- Health Care and Social Assistance
- 2nd
- Ophthalmic Consultants of Rockland
- Health Care and Social Assistance
- 3rd
- Partners In Pediatrics
- Health Care and Social Assistance
- 3rd
- Raycom Realty
- Real Estate
- 3rd
- Schweiger Dermatology
- Health Care and Social Assistance
- 1st
- Valley Health & Hyperbarics
- Health Care and Social Assistance
Presented by
Ramapo Medical and Professional Bldg | 222 Route 59
Hmm, there seems to have been an error sending your message. Please try again.
Thanks! Your message was sent.





