Your email has been sent.
222 Somerset St W - Two Twenty Two Somerset 851 - 6,666 SF Office Condo Units Offered at $299,000 - $1,650,000 CAD Per Unit in Ottawa, ON K2P 2G3



Investment Highlights
- Introducing a prime real estate opportunity in the heart of downtown
- Situated just steps away from the vibrant amenities along Somerset and Elgin Street
- This secure building boasts an exceptional central location
Executive Summary
Introducing a prime real estate opportunity in the heart of downtown. This secure building boasts an exceptional central location, making it the perfect choice for medical professionals and professional service businesses. Situated just steps away from the vibrant amenities along Somerset and Elgin Street, it offers convenience like no other. We're pleased to offer Suites 100, 200, 300, 405, 602/603 and 701 for lease or sale, presenting a rare opportunity to acquire an entire floor with direct elevator access. Custom fit-up packages are available, ensuring your space meets your exact needs. Take advantage of our aggressive Vendor Take Back (VTB) financing option and rest easy with both covered and surface parking options. With a professionally managed building, you can focus on your business while we take care of the rest. Don't miss out on this outstanding real estate opportunity. Broker protected. Purchaser/tenant allowance available. Contact us today to secure your space in this prime downtown location.
Property Facts
| Total Building Size | 39,633 SF | Typical Floor Size | 5,662 SF |
| Property Type | Office | Year Built | 1974 |
| Building Class | B | Lot Size | 1.05 AC |
| Floors | 7 | Parking Ratio | 1.51/1,000 SF |
| Zoning | TM[2186] H(19) - Traditional Mainstreet | ||
| Total Building Size | 39,633 SF |
| Property Type | Office |
| Building Class | B |
| Floors | 7 |
| Typical Floor Size | 5,662 SF |
| Year Built | 1974 |
| Lot Size | 1.05 AC |
| Parking Ratio | 1.51/1,000 SF |
| Zoning | TM[2186] H(19) - Traditional Mainstreet |
Amenities
- Bus Line
- Controlled Access
- Security System
- Signage
- Skylights
- Wheelchair Accessible
- Accent Lighting
- Partitioned Offices
- Monument Signage
- Air Conditioning
- Smoke Detector
6 Units Available
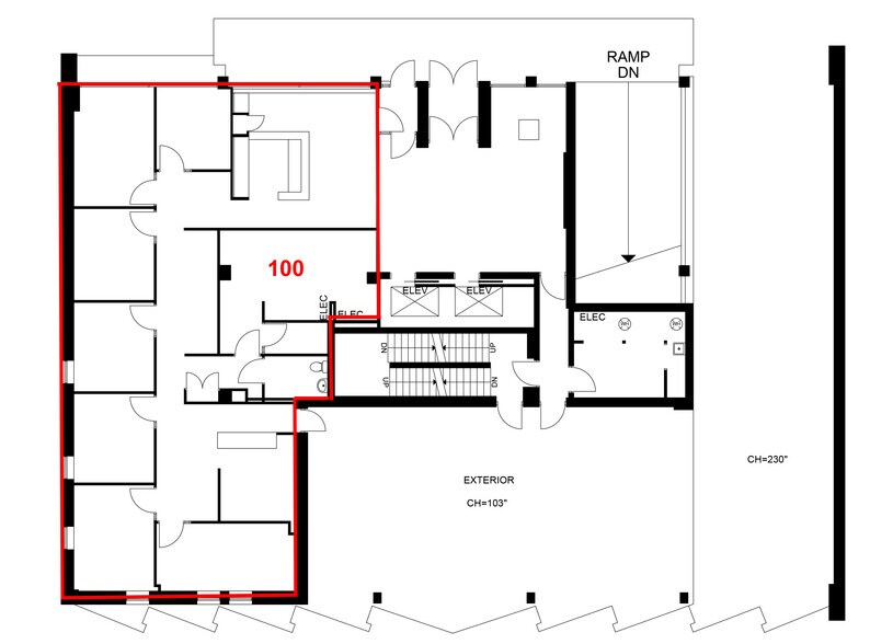
Unit 100
| Unit Size | 2,326 SF | Condo Use | Office |
| Price | $1,150,000 CAD | Sale Type | Investment |
| Price Per SF | $494.41 CAD |
| Unit Size | 2,326 SF |
| Price | $1,150,000 CAD |
| Price Per SF | $494.41 CAD |
| Condo Use | Office |
| Sale Type | Investment |
Sale Notes
Centrally located just one block from Elgin St, this first-floor unit has ~2,326 sq. ft. and great visibility.
The building includes access to the on-site fitness room and proximity to OC Transpo.
230418-Office-Boardroom
2311005-Office-Reception
230418-Office-hallway
230418-Office-2
230418-Office-3
230525-222-Somerset-Unit-100
Unit 200
| Unit Size | 5,008 SF | Condo Use | Office |
| Price | $1,299,000 CAD | Sale Type | Investment or Owner User |
| Price Per SF | $259.38 CAD |
| Unit Size | 5,008 SF |
| Price | $1,299,000 CAD |
| Price Per SF | $259.38 CAD |
| Condo Use | Office |
| Sale Type | Investment or Owner User |
Description
Introducing a prime real estate opportunity in the heart of downtown. This secure building boasts an exceptional central location, making it the perfect choice for medical professionals and professional service businesses. Situated just steps away from the vibrant amenities along Somerset and Elgin Street, it offers convenience like no other. We're pleased to offer Suites 200, 300, 402, and 600 for lease or sale, presenting a rare opportunity to acquire an entire floor with direct elevator access. Custom fit-up packages are available, ensuring your space meets your exact needs. Take advantage of our aggressive Vendor Take Back (VTB) financing option and rest easy with both covered and surface parking options. With a professionally managed building, you can focus on your business while we take care of the rest. Don't miss out on this outstanding real estate opportunity. Contact us today to secure your space in this prime downtown location.
Sale Notes
Introducing a prime real estate opportunity in the heart of downtown. This secure building boasts an exceptional central location, making it the perfect choice for medical professionals and professional service businesses. Situated just steps away from the vibrant amenities along Somerset and Elgin Street, it offers convenience like no other. We're pleased to offer Suites 200, 300, 402, and 600 for lease or sale, presenting a rare opportunity to acquire an entire floor with direct elevator access. Custom fit-up packages are available, ensuring your space meets your exact needs. Take advantage of our aggressive Vendor Take Back (VTB) financing option and rest easy with both covered and surface parking options. With a professionally managed building, you can focus on your business while we take care of the rest. Don't miss out on this outstanding real estate opportunity. Contact us today to secure your space in this prime downtown location.
Unit 300
| Unit Size | 6,666 SF | Condo Use | Office |
| Price | $1,650,000 CAD | Sale Type | Investment or Owner User |
| Price Per SF | $247.52 CAD |
| Unit Size | 6,666 SF |
| Price | $1,650,000 CAD |
| Price Per SF | $247.52 CAD |
| Condo Use | Office |
| Sale Type | Investment or Owner User |
Description
Introducing a prime real estate opportunity in the heart of downtown. This secure building boasts an exceptional central location, making it the perfect choice for medical professionals and professional service businesses. Situated just steps away from the vibrant amenities along Somerset and Elgin Street, it offers convenience like no other. We're pleased to offer Suites 200, 300, 402, and 600 for lease or sale, presenting a rare opportunity to acquire an entire floor with direct elevator access. Custom fit-up packages are available, ensuring your space meets your exact needs. Take advantage of our aggressive Vendor Take Back (VTB) financing option and rest easy with both covered and surface parking options. With a professionally managed building, you can focus on your business while we take care of the rest. Don't miss out on this outstanding real estate opportunity. Contact us today to secure your space in this prime downtown location.
Sale Notes
Introducing a prime real estate opportunity in the heart of downtown. This secure building boasts an exceptional central location, making it the perfect choice for medical professionals and professional service businesses. Situated just steps away from the vibrant amenities along Somerset and Elgin Street, it offers convenience like no other. We're pleased to offer Suites 200, 300, 402, and 600 for lease or sale, presenting a rare opportunity to acquire an entire floor with direct elevator access. Custom fit-up packages are available, ensuring your space meets your exact needs. Take advantage of our aggressive Vendor Take Back (VTB) financing option and rest easy with both covered and surface parking options. With a professionally managed building, you can focus on your business while we take care of the rest. Don't miss out on this outstanding real estate opportunity. Contact us today to secure your space in this prime downtown location.
Unit 405
| Unit Size | 851 SF | Condo Use | Office |
| Price | $299,000 CAD | Sale Type | Owner User |
| Price Per SF | $351.35 CAD |
| Unit Size | 851 SF |
| Price | $299,000 CAD |
| Price Per SF | $351.35 CAD |
| Condo Use | Office |
| Sale Type | Owner User |
251112 - Office For Lease Unit 405 (3)
Unit 600
| Unit Size | 2,755 SF | Condo Use | Office |
| Price | $775,000 CAD | Sale Type | Investment or Owner User |
| Price Per SF | $281.31 CAD |
| Unit Size | 2,755 SF |
| Price | $775,000 CAD |
| Price Per SF | $281.31 CAD |
| Condo Use | Office |
| Sale Type | Investment or Owner User |
Description
Introducing a prime real estate opportunity in the heart of downtown. This secure building boasts an exceptional central location, making it the perfect choice for medical professionals and professional service businesses. Situated just steps away from the vibrant amenities along Somerset and Elgin Street, it offers convenience like no other. We're pleased to offer Suites 200, 300, 402, and 600 for lease or sale, presenting a rare opportunity to acquire an entire floor with direct elevator access. Custom fit-up packages are available, ensuring your space meets your exact needs. Take advantage of our aggressive Vendor Take Back (VTB) financing option and rest easy with both covered and surface parking options. With a professionally managed building, you can focus on your business while we take care of the rest. Don't miss out on this outstanding real estate opportunity. Contact us today to secure your space in this prime downtown location.
Sale Notes
Introducing a prime real estate opportunity in the heart of downtown. This secure building boasts an exceptional central location, making it the perfect choice for medical professionals and professional service businesses. Situated just steps away from the vibrant amenities along Somerset and Elgin Street, it offers convenience like no other. We're pleased to offer Suites 200, 300, 402, and 600 for lease or sale, presenting a rare opportunity to acquire an entire floor with direct elevator access. Custom fit-up packages are available, ensuring your space meets your exact needs. Take advantage of our aggressive Vendor Take Back (VTB) financing option and rest easy with both covered and surface parking options. With a professionally managed building, you can focus on your business while we take care of the rest. Don't miss out on this outstanding real estate opportunity. Contact us today to secure your space in this prime downtown location.
Unit 701
| Unit Size | 2,991 SF | Condo Use | Office |
| Price | $1,050,000 CAD | Sale Type | Investment or Owner User |
| Price Per SF | $351.05 CAD |
| Unit Size | 2,991 SF |
| Price | $1,050,000 CAD |
| Price Per SF | $351.05 CAD |
| Condo Use | Office |
| Sale Type | Investment or Owner User |
Description
Office unit, built out with 7 offices. Power: 100amp 120/208 volt 3 phase. HVAC: 5 Ton/YOM 2021, heating is common - boiler.
Utilities are included in operating costs / condo fees.
Sale Notes
Introducing a prime real estate opportunity in the heart of downtown. This secure building boasts an exceptional central location, making it the perfect choice for medical professionals and professional service businesses. Situated just steps away from the vibrant amenities along Somerset and Elgin Street, it offers convenience like no other. We're pleased to offer Suites 100, 200, 300, 402, 600, and 701 for lease or sale, presenting a rare opportunity to acquire an entire floor with direct elevator access. Custom fit-up packages are available, ensuring your space meets your exact needs. Take advantage of our aggressive Vendor Take Back (VTB) financing option and rest easy with both covered and surface parking options. With a professionally managed building, you can focus on your business while we take care of the rest. Don't miss out on this outstanding real estate opportunity. Contact us today to secure your space in this prime downtown location.
Presented by
222 Somerset St W - Two Twenty Two Somerset
Hmm, there seems to have been an error sending your message. Please try again.
Thanks! Your message was sent.


