Your email has been sent.
All Available Spaces(2)
Display Rental Rate as
- Space
- Size
- Term
- Rental Rate
- Space Use
- Build-Out
- Available
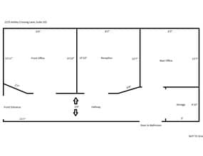
Single Office For Lease. Exclusive use of a private office within a Professional Office Suite. In addition to the private office, there is a shared reception area shared with a Licensed Professional Mental Health Counselor. $800 per month. Please see the attached floor plan (the available office is the ''Front Office''). Very Nice & Efficient Office Space at a great price in a great location in West Ashley convenient to I-526. Square Footage is only an estimate.
- Listed rate may not include certain utilities, building services and property expenses
- Fits 1 - 5 People
Very Nice & Efficient Office Space at a great price in a great location in West Ashley convenient to I-526. Open reception area, 4 private offices, and parking on-site. The lease rate is Modified Gross with the Tenant paying its pro-rata share of utilities, landscape, & trash pickup in addition to the base rent (Year 1 Estimated $4.32 PSF). Please see the attached flyer & floor plan.
- Listed rate may not include certain utilities, building services and property expenses
- Fits 2 - 6 People
| Space | Size | Term | Rental Rate | Space Use | Build-Out | Available |
| 1st Floor, Ste 102 | 100 SF | Negotiable | Upon Request Upon Request Upon Request Upon Request | Office | - | Now |
| 2nd Floor, Ste 202 | 700 SF | Negotiable | $34.20 CAD/SF/YR $2.85 CAD/SF/MO $23,937 CAD/YR $1,995 CAD/MO | Office | Full Build-Out | Now |
1st Floor, Ste 102
| Size |
| 100 SF |
| Term |
| Negotiable |
| Rental Rate |
| Upon Request Upon Request Upon Request Upon Request |
| Space Use |
| Office |
| Build-Out |
| - |
| Available |
| Now |
2nd Floor, Ste 202
| Size |
| 700 SF |
| Term |
| Negotiable |
| Rental Rate |
| $34.20 CAD/SF/YR $2.85 CAD/SF/MO $23,937 CAD/YR $1,995 CAD/MO |
| Space Use |
| Office |
| Build-Out |
| Full Build-Out |
| Available |
| Now |
1st Floor, Ste 102
| Size | 100 SF |
| Term | Negotiable |
| Rental Rate | Upon Request |
| Space Use | Office |
| Build-Out | - |
| Available | Now |
Single Office For Lease. Exclusive use of a private office within a Professional Office Suite. In addition to the private office, there is a shared reception area shared with a Licensed Professional Mental Health Counselor. $800 per month. Please see the attached floor plan (the available office is the ''Front Office''). Very Nice & Efficient Office Space at a great price in a great location in West Ashley convenient to I-526. Square Footage is only an estimate.
- Listed rate may not include certain utilities, building services and property expenses
- Fits 1 - 5 People
2nd Floor, Ste 202
| Size | 700 SF |
| Term | Negotiable |
| Rental Rate | $34.20 CAD/SF/YR |
| Space Use | Office |
| Build-Out | Full Build-Out |
| Available | Now |
Very Nice & Efficient Office Space at a great price in a great location in West Ashley convenient to I-526. Open reception area, 4 private offices, and parking on-site. The lease rate is Modified Gross with the Tenant paying its pro-rata share of utilities, landscape, & trash pickup in addition to the base rent (Year 1 Estimated $4.32 PSF). Please see the attached flyer & floor plan.
- Listed rate may not include certain utilities, building services and property expenses
- Fits 2 - 6 People
Features and Amenities
- 24 Hour Access
Property Facts
Presented by
2225 Ashley Crossing Dr
Hmm, there seems to have been an error sending your message. Please try again.
Thanks! Your message was sent.









