Your email has been sent.
Highlights
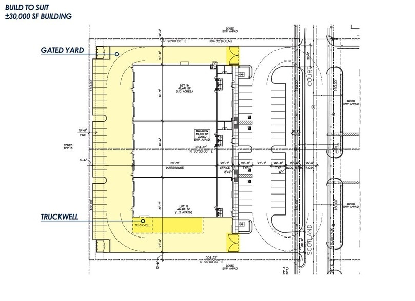
- Build to suit opportunity. Owner can build an industrial building to suit a company's needs.
All Available Space(1)
Display Rental Rate as
- Space
- Size
- Term
- Rental Rate
- Space Use
- Build-Out
- Available
Build to suit opportunity. Owner can build an industrial building to suit a company's needs.
| Space | Size | Term | Rental Rate | Space Use | Build-Out | Available |
| 1st Floor - Bldg | 30,000 SF | Negotiable | Upon Request Upon Request Upon Request Upon Request | Industrial | Full Build-Out | 2027-02-01 |
1st Floor - Bldg
| Size |
| 30,000 SF |
| Term |
| Negotiable |
| Rental Rate |
| Upon Request Upon Request Upon Request Upon Request |
| Space Use |
| Industrial |
| Build-Out |
| Full Build-Out |
| Available |
| 2027-02-01 |
1st Floor - Bldg
| Size | 30,000 SF |
| Term | Negotiable |
| Rental Rate | Upon Request |
| Space Use | Industrial |
| Build-Out | Full Build-Out |
| Available | 2027-02-01 |
Build to suit opportunity. Owner can build an industrial building to suit a company's needs.
Property Overview
Industrial demand remains steady in the Chandler N/ Gilbert Submarket as a host of distribution, advanced manufacturing, and data center tenants fill properties. The submarket has key infrastructure advantages that attract industrial users, such as the Phoenix-Mesa Gateway Airport, ample freeway access, and the Union Pacific Railway. Additionally, the area’s status as an opportunity zone as well as other public policy initiatives like the Pecos Advanced Manufacturing Zone and Elliot Road Technology Corridor provide favorable regulatory treatment to operators and builders. These factors helped drive a record 3.8 million SF of net absorption over the last 12 months, well above the five-year annual average of 1.5 million SF. Developers have responded to this heightened demand with the most aggressive construction pipeline the submarket has ever seen. Roughly 10.2 million SF of industrial space is currently underway, which will expand the submarket’s inventory by 35.5% once delivered. Much of the space is being built without a tenant in place as developers bet big on the submarket’s growth outlook. Investment activity is also at record levels. Approximately $772 million worth of industrial assets has changed hands here in the last 12 months as both institutional and large private buyers target the submarket. The area’s strong property performance and relatively higher yields when compared to California markets make it an attractive investment option.
Warehouse Facility Facts
Presented by
22280-22330 S Scotland Ct
Hmm, there seems to have been an error sending your message. Please try again.
Thanks! Your message was sent.





