Your email has been sent.
HIGHLIGHTS
- In the Heart of the Financial District
ALL AVAILABLE SPACES(20)
Display Rental Rate as
- SPACE
- SIZE
- TERM
- RENTAL RATE
- SPACE USE
- CONDITION
- AVAILABLE
Suite 200 at 225 Bush Street will be available July 2023 and offers a robust, meeting-rich configuration suited for teams that rely heavily on collaboration and private discussion. The suite is equipped with 15 conference rooms, a large executive boardroom, 2 private offices, 6 phone rooms, and convenient en-suite restrooms, creating a self-contained and efficient workspace environment. Located within San Francisco’s North Financial District—home to more than 20 million square feet of Class A office space and exceptional transit access via Montgomery and Embarcadero BART/MUNI—the building provides a prestigious backdrop for tenants seeking both functionality and prominence. With historic architectural character and proximity to more than 90,000 daytime employees, Suite 200 stands as a compelling, amenity-rich offering in one of the city’s most strategic office locations.
- Fully Built-Out as Standard Office
- 2 Private Offices
- Finished Ceilings: 11’
- Plug & Play
- Natural Light
- 1 large boardroom to support presentations
- Mostly Open Floor Plan Layout
- 15 Conference Rooms
- Space is in Excellent Condition
- Private Restrooms
- Features 15 conference rooms & 2 private offices
- Offers 6 phone rooms, supporting private calls
Suite 210 at 225 Bush Street is available now and presents a flexible, well-balanced layout ideal for teams seeking both openness and privacy. The suite includes a welcoming reception area, an efficient open workspace, a detached conference room suited for focused collaboration, and six phone rooms to support private calls and virtual meetings. Situated within the architecturally significant 225 Bush building—centrally located in San Francisco’s North Financial District—this suite benefits from exceptional transit access via nearby Montgomery and Embarcadero BART/MUNI stations and proximity to more than 90,000 daytime employees. Combining historic character with modern functionality, Suite 210 offers a compelling opportunity for tenants seeking immediate occupancy in a premier business corridor.
- Fully Built-Out as Standard Office
- 2 Private Offices
- Finished Ceilings: 11’
- Reception Area
- Detached conference room, 2 private offices
- Open Floor Plan Layout
- 1 Conference Room
- Space is in Excellent Condition
- Defined reception area for welcoming guests
- 6 phone rooms, supports private calls
Suite 300 at 225 Bush Street features a mostly open floor plan that supports modern team-oriented workflows while offering dedicated spaces for privacy and executive-level meetings. The suite includes a large boardroom suitable for formal presentations, three private offices for focused work, and two phone rooms to accommodate confidential calls or virtual collaboration. Set within the architecturally significant 225 Bush building—located in the heart of San Francisco’s North Financial District—this suite benefits from immediate access to Montgomery and Embarcadero BART/MUNI stations and a dense daytime population exceeding 90,000 employees. Combining functional workspace design with the prestige and history of a landmark tower, Suite 300 presents a compelling opportunity for tenants seeking a balanced, efficient, and centrally located office environment.
- Fully Built-Out as Standard Office
- 3 Private Offices
- Finished Ceilings: 11’
- 1 large boardroom, ideal for formal presentations
- 2 phone rooms to support private calls
- Mostly Open Floor Plan Layout
- 1 Conference Room
- Space is in Excellent Condition
- Features 3 private offices for executive use
Suite 337 at 225 Bush Street is available now and offers a clean, flexible layout characterized by open space and a dedicated entrance that enhances both privacy and tenant identity. This suite sits within the architecturally notable 225 Bush building, designed by George W. Kelham and located in the heart of San Francisco’s North Financial District—an area defined by its concentration of Class A office space, premier corporate neighbors, and unmatched transit connectivity via the nearby Montgomery and Embarcadero BART/MUNI stations. With access to a daytime population exceeding 90,000 employees and the historic prestige of a landmark tower, Suite 337 provides an immediately available, well-positioned opportunity for tenants seeking efficient space in one of the city’s most established business corridors.
- Fully Built-Out as Standard Office
- 1 Private Office
- Space is in Excellent Condition
- Features open space, allowing flexible planning
- Mostly Open Floor Plan Layout
- Finished Ceilings: 11’
- Includes a dedicated entrance
- Benefits from a blend of historic charm & upgrades
Suite 357 at 225 Bush Street features an efficient and versatile layout centered around open space, supported by a dedicated entrance that provides privacy and a defined tenant identity. The suite includes a medium-sized conference room suited for team collaboration, strategy sessions, and client meetings. Positioned within the architecturally significant 225 Bush building—originally constructed as the Standard Oil Building and now a prominent fixture of San Francisco’s North Financial District—this suite benefits from excellent connectivity to both Montgomery and Embarcadero BART/MUNI stations and proximity to more than 90,000 daytime employees. Blending historic character with modern enhancements, Suite 357 provides a strong opportunity for tenants seeking a flexible, well-located workspace in one of the city’s most established commercial corridors.
- Fully Built-Out as Standard Office
- 1 Private Office
- Finished Ceilings: 11’
- Kitchen
- Medium conference room, ideal for team meetings
- Open Floor Plan Layout
- 1 Conference Room
- Space is in Excellent Condition
- Dedicated entrance, providing enhanced privacy
- Open space offering flexible planning
Suite 367 at 225 Bush Street is available now and offers a clean, flexible open layout complemented by a dedicated entrance that enhances privacy and a strong tenant identity. Positioned within the architecturally significant 225 Bush building—located in the heart of San Francisco’s North Financial District—this suite benefits from exceptional connectivity to Montgomery and Embarcadero BART/MUNI stations and sits within a concentrated hub of Class A office space and more than 90,000 daytime employees. With its open configuration and the historic yet modern-enhanced character of the building, Suite 367 presents an immediate and versatile opportunity for tenants seeking an efficient workspace in one of the city’s most established business locations.
- Fully Built-Out as Standard Office
- 1 Private Office
- Space is in Excellent Condition
- Dedicated entrance, enhancing privacy
- Open Floor Plan Layout
- Finished Ceilings: 11’
- Features open space, allowing for flexibility
- Immediate occupancy in a premier building
Suite 370 at 225 Bush Street is available now and features an efficient layout with open space supported by a dedicated conference room and two private offices, making it well-suited for teams seeking both collaboration and privacy. Set within the architecturally significant 225 Bush building—located in the heart of San Francisco’s North Financial District—this suite benefits from close proximity to Montgomery and Embarcadero BART/MUNI stations and sits amid one of the densest corporate environments in the city, with more than 20 million square feet of Class A office space and over 90,000 daytime employees nearby. Blending flexible workspace design with the prestige and historic character of a landmark property, Suite 370 presents a compelling and immediately available opportunity for tenants seeking a well-located and functional office solution.
- Fully Built-Out as Standard Office
- 2 Private Offices
- Finished Ceilings: 11’
- Kitchen
- Includes a conference room, ideal for meetings
- Mostly Open Floor Plan Layout
- 1 Conference Room
- Space is in Excellent Condition
- Features open space suitable for flexible layouts
- Provides 2 private offices for executive use
Suite 380 at 225 Bush Street is available now and offers tenants the flexibility to lease the space individually or combine it with adjacent Suite 390 for a total of 3,533 RSF. Located within the architecturally significant 225 Bush building—situated in the heart of San Francisco’s North Financial District—this suite benefits from close proximity to Montgomery and Embarcadero BART/MUNI stations, as well as the surrounding concentration of more than 20 million square feet of Class A office inventory. With its immediate availability and the option to expand, Suite 380 provides an adaptable opportunity within a historic, modernized tower serving a daytime population of over 90,000 employees, making it well-positioned for a variety of professional users.
- Fully Built-Out as Standard Office
- 1 Private Office
- Space is in Excellent Condition
- Suites 380 & 390, leased separately or together
- Combined, the suites provide up to 3,533 RSF
- Mostly Open Floor Plan Layout
- Finished Ceilings: 11’
- Plug & Play
- Available now, providing immediate occupancy
Suite 390 at 225 Bush Street is available now and offers tenants flexibility, as it can be leased on its own or combined with neighboring Suite 380 for a total of 3,533 RSF. Located within the architecturally significant 225 Bush building—positioned in the heart of San Francisco’s North Financial District—this suite benefits from immediate access to Montgomery and Embarcadero BART/MUNI stations and sits within one of the densest corporate ecosystems in the city, surrounded by more than 20 million square feet of Class A office space and over 90,000 daytime employees. With its prime location, historic character, and ability to accommodate tenants seeking either a standalone or expanded footprint, Suite 390 offers a well-positioned and highly adaptable workspace solution.
- Fully Built-Out as Standard Office
- 1 Private Office
- Space is in Excellent Condition
- Available now, offering immediate occupancy
- Up to 3,533 RSF combined, allowing for flexibility
- Mostly Open Floor Plan Layout
- Finished Ceilings: 11’
- Plug & Play
- Suites 380 & 390, leased separately or together
Suite 400 at 225 Bush Street is available now and offers a rare full-floor opportunity within one of San Francisco’s most architecturally significant office towers. Occupying an entire floor, the suite provides enhanced privacy, identity, and operational efficiency for tenants seeking exclusive control of their workspace. Located in the heart of the North Financial District—surrounded by more than 20 million square feet of Class A office inventory and a daytime population exceeding 90,000 employees—the building delivers exceptional connectivity to Montgomery and Embarcadero BART/MUNI stations as well as a wide range of urban amenities. Blending historic character with modern enhancements, Suite 400 presents a premier, immediately available full-floor solution for teams seeking prominence and functionality in a landmark San Francisco location.
- Fully Built-Out as Standard Office
- Finished Ceilings: 11’
- Available now, offering immediate occupancy
- Centrally located in high-traffic corridors
- Mostly Open Floor Plan Layout
- Space is in Excellent Condition
- Full-floor suite, providing maximum privacy
Suite 600 at 225 Bush Street is available now and offers a highly creative workspace characterized by a thoughtful blend of meeting rooms and open collaborative areas. Its flexible layout supports both dynamic team environments and private, focused discussions, making it ideal for tenants seeking an adaptable, modern office setting. Set within the architecturally significant 225 Bush building—situated in San Francisco’s North Financial District—the suite benefits from unparalleled access to Montgomery and Embarcadero BART/MUNI stations as well as the surrounding concentration of Class A office space and more than 90,000 daytime employees. Combining creative functionality with the historic character and modern upgrades of a landmark tower, Suite 600 presents an immediately available opportunity tailored for teams that value flexibility, energy, and a central business district location.
- Fully Built-Out as Standard Office
- Finished Ceilings: 11’
- Plug & Play
- Premier, modern, full floor opportunity
- Mostly Open Floor Plan Layout
- Space is in Excellent Condition
- Available now, offering immediate occupancy
- Features a mix of meeting rooms and open space
Suite 800 at 225 Bush Street is available now and delivers a rare full-floor opportunity designed for highly creative users seeking a dynamic and flexible environment. The suite features a thoughtful blend of meeting rooms and open space, allowing teams to balance focus, collaboration, and creative workflow. Located within the architecturally significant 225 Bush building in the heart of San Francisco’s North Financial District, the space benefits from unmatched access to Montgomery and Embarcadero BART/MUNI stations and a dense professional ecosystem defined by more than 20 million square feet of Class A office space and over 90,000 daytime employees. With its full-floor identity, modern creative layout, and historic yet upgraded setting, Suite 800 offers an immediately available solution for tenants seeking prominence, flexibility, and centrality in a landmark Financial District tower.
- Fully Built-Out as Standard Office
- Finished Ceilings: 11’
- Plug & Play
- Available now, offering immediate occupancy
- Designed as a highly creative space
- Mostly Open Floor Plan Layout
- Space is in Excellent Condition
- Can be combined with additional space(s) for up to 52,140 SF of adjacent space
- Full-floor suite, providing maximum privacy
- Features a mix of meeting rooms and open space
Suite 900 at 225 Bush Street is available now and offers a full-floor, highly creative environment ideal for modern teams seeking both openness and structure. With a thoughtful blend of meeting rooms and open space, the suite supports flexible collaboration while maintaining dedicated areas for focus and private discussions. Located within the architecturally significant 225 Bush building in the heart of San Francisco’s North Financial District, the space benefits from immediate access to Montgomery and Embarcadero BART/MUNI stations and sits amid one of the densest corporate clusters in the city. Blending full-floor identity with historic character and modern upgrades, Suite 900 presents an exceptional opportunity for tenants seeking a dynamic, centrally positioned workspace in a landmark tower.
- Fully Built-Out as Standard Office
- Finished Ceilings: 11’
- Plug & Play
- Kitchen
- Available now, allowing immediate move-in
- Features a mix of meeting rooms and open space
- Mostly Open Floor Plan Layout
- Space is in Excellent Condition
- Can be combined with additional space(s) for up to 52,140 SF of adjacent space
- Natural Light
- Full-floor suite, offering maximum privacy
Suite 900 at 225 Bush Street is available now and offers a rare full-floor, highly creative open environment with an exposed ceiling that delivers a contemporary, airy aesthetic. The expansive, open layout allows teams to customize the workspace to support collaborative zones, flexible workstations, or creative studio needs, while the full-floor configuration provides a unique opportunity for prominent branding and operational privacy. Situated within the iconic 225 Bush building—located in the heart of San Francisco’s North Financial District—this suite benefits from exceptional access to Montgomery and Embarcadero BART/MUNI stations and sits within one of the densest corporate ecosystems in the city. Blending historic architectural character with modern, creative design potential, Suite 900 offers an immediately available, centrally positioned workspace ideal for teams seeking presence, flexibility, and energy in a landmark tower.
- Fully Built-Out as Standard Office
- Finished Ceilings: 11’
- Exposed Ceiling
- Available now, offering immediate occupancy
- Open ceiling, contributing to a creative aesthetic
- Mostly Open Floor Plan Layout
- Space is in Excellent Condition
- Natural Light
- Full-floor suite, providing maximum privacy
- Expansive open area allows for flexibility
Suite 1825 at 225 Bush Street is available now and offers a clean, efficient layout featuring open space supported by a single private office, making it suitable for teams that value both collaboration and focused work. Located within the architecturally significant 225 Bush building—situated in the heart of San Francisco’s North Financial District—the suite benefits from immediate access to Montgomery and Embarcadero BART/MUNI stations and is surrounded by more than 20 million square feet of Class A office inventory and a dense daytime workforce exceeding 90,000 employees. With its central positioning, historic character, and modernized infrastructure, Suite 1825 provides an adaptable and well-connected environment for tenants seeking a right-sized workspace in a landmark downtown tower.
- Fully Built-Out as Standard Office
- 1 Private Office
- Space is in Excellent Condition
- Available now, offering immediate occupancy
- 1 private office for focused work
- Mostly Open Floor Plan Layout
- Finished Ceilings: 11’
- Plug & Play
- Features open space, ideal for flexible layouts
Suite 1825 at 225 Bush Street is available now and offers a dynamic, light-filled environment characterized by extra-high ceilings and a practical mix of workspace types. The suite features open space ideal for team collaboration, supported by a dedicated conference room, four private offices, and an in-suite kitchen that enhances daily convenience. Located within the architecturally significant 225 Bush building in San Francisco’s North Financial District, the space benefits from immediate proximity to Montgomery and Embarcadero BART/MUNI stations and sits within a dense corporate ecosystem of Class A office towers and more than 90,000 daytime employees. Combining functional versatility with the historic character and modern upgrades of a landmark tower, Suite 1825 presents a compelling, immediately available opportunity for teams seeking a polished and centrally located workspace.
- Fully Built-Out as Standard Office
- 4 Private Offices
- Finished Ceilings: 11’
- Plug & Play
- High Ceilings
- Extra-high ceilings create an open environment
- Mostly Open Floor Plan Layout
- 1 Conference Room
- Space is in Excellent Condition
- Kitchen
- Available now, offering immediate occupancy
- Includes open space, ideal for flexible layouts
Suite 1900 at 225 Bush Street is available now and offers a fully creative, full-floor environment designed for teams seeking a blend of openness, flexibility, and collaboration. The suite features a mostly open layout supported by numerous meeting and huddle rooms of varying sizes, allowing for a range of work modes. A large open kitchen enhances the space’s communal feel and provides a central hub for team interaction, while abundant natural light contributes to an inviting and productive workplace atmosphere. With lease terms ranging from 1 to 7 years and an added incentive offering brokers a $3/RSF bonus for sub-5-year deals or $5/RSF for terms of 5 years or more, Suite 1900 presents a compelling opportunity. Set within the historic and architecturally significant 225 Bush building in San Francisco’s North Financial District, this full-floor suite delivers both functional versatility and landmark appeal for tenants seeking a distinctive and adaptable workplace.
- Fully Built-Out as Standard Office
- 18 Conference Rooms
- Space is in Excellent Condition
- Natural Light
- Available now, offering immediate occupancy
- Includes ample meeting and huddle rooms
- Open Floor Plan Layout
- Finished Ceilings: 11’
- Kitchen
- Creative full-floor suite allowing for privacy
- Open layout with excellent flexibility
Suite 2000 at 225 Bush Street must be leased together with Floors 20–22, creating a unified multi-floor opportunity anchored by a highly creative full-floor workspace. The suite features a dramatic two-story reception area that sets an impressive tone, followed by a balanced mix of internal offices and open space flooded with great natural light. Various meeting and huddle rooms support flexible collaboration, while a large complement of shared amenities—including a brand-new gym with locker and shower facilities—enhances the tenant experience. Located within the architecturally significant 225 Bush building in San Francisco’s North Financial District, the space offers a compelling blend of historic character and modern functionality. Ownership is also offering attractive broker incentives: $3/RSF for lease terms under five years and $5/RSF for terms of five years or longer. Together, these elements make Suite 2000 an exceptional, amenity-rich workspace suited for tenants seeking a standout multi-floor presence in a premier downtown tower.
- Fully Built-Out as Standard Office
- Partitioned Offices
- Space is in Excellent Condition
- Reception Area
- Natural Light
- Must be leased together with Floors 20–22
- Combination of internal offices and open space
- Open Floor Plan Layout
- Finished Ceilings: 11’
- Can be combined with additional space(s) for up to 61,990 SF of adjacent space
- Secure Storage
- Shower Facilities
- Features a dramatic two-story reception area
- Access to a brand-new gym, locker room, & showers
Suite 2100 at 225 Bush Street offers a highly creative workspace that must be leased together with Floors 20–22, forming a cohesive multi-floor environment ideal for larger teams or connected departmental layouts. The space benefits from abundant natural light and a thoughtful combination of private offices and open workspace, enhanced by a dramatic internal staircase linking directly to the 20th floor. A range of meeting and huddle rooms supports flexible collaboration, while tenants also enjoy access to a brand-new gym, locker, and shower facility within the building. Located in the heart of San Francisco’s North Financial District, the suite blends the historic character of 225 Bush with modern functionality and strong amenity offerings. To further enhance the opportunity, ownership is providing a broker bonus of $3/RSF for terms under five years and $5/RSF for terms of five or more, making Suite 2100 an especially compelling choice for teams seeking a prominent and connected downtown presence.
- Fully Built-Out as Standard Office
- Finished Ceilings: 11’
- Can be combined with additional space(s) for up to 61,990 SF of adjacent space
- Natural Light
- Must be leased with Floors 20–22
- Includes a mix of offices and open space
- Open Floor Plan Layout
- Space is in Excellent Condition
- Secure Storage
- Shower Facilities
- Creative space with a modern, flexible layout
- Contains a large internal staircase
Suite 2200 at 225 Bush Street occupies the top floor of the building and must be leased together with Floors 20–22, creating a standout multi-floor opportunity defined by rare amenities and striking architectural features. The suite offers two roof decks, abundant natural light, and skylights that illuminate a creative blend of open workspace and private offices. A large all-hands kitchen anchors the floor, making it ideal for team-wide gatherings, events, or collaborative workshops. Creative finishes throughout enhance the character and functionality of the environment, while building tenants benefit from access to a brand-new gym complete with locker and shower facilities. Ownership further strengthens the offering with broker incentives of $3/RSF for lease terms under five years and $5/RSF for terms of five years or more. Altogether, Suite 2200 delivers an exceptional, amenity-rich top-floor experience suited for tenants seeking a unique and dynamic headquarters-style setting in a landmark Financial District tower.
- Fully Built-Out as Standard Office
- Finished Ceilings: 11’
- Plug & Play
- Kitchen
- Natural Light
- Top floor of the building, offering exclusivity
- Features two roof decks
- Open Floor Plan Layout
- Space is in Excellent Condition
- Can be combined with additional space(s) for up to 61,990 SF of adjacent space
- Secure Storage
- Shower Facilities
- Must be leased with Floors 20–22
- Includes skylights, delivering an open feel
| Space | Size | Term | Rental Rate | Space Use | Condition | Available |
| 2nd Floor, Ste 200 | 26,333 SF | 3-5 Years | Upon Request Upon Request Upon Request Upon Request | Office | Full Build-Out | Now |
| 2nd Floor, Ste 210 | 3,706 SF | 3-5 Years | Upon Request Upon Request Upon Request Upon Request | Office | Full Build-Out | Now |
| 3rd Floor, Ste 300 | 10,076 SF | 3-5 Years | Upon Request Upon Request Upon Request Upon Request | Office | Full Build-Out | Now |
| 3rd Floor, Ste 337 | 515 SF | 3-5 Years | Upon Request Upon Request Upon Request Upon Request | Office | Full Build-Out | Now |
| 3rd Floor, Ste 357 | 1,297 SF | 3-5 Years | Upon Request Upon Request Upon Request Upon Request | Office | Full Build-Out | Now |
| 3rd Floor, Ste 367 | 825 SF | 3-5 Years | Upon Request Upon Request Upon Request Upon Request | Office | Full Build-Out | Now |
| 3rd Floor, Ste 370 | 2,145 SF | 3-5 Years | Upon Request Upon Request Upon Request Upon Request | Office | Full Build-Out | Now |
| 3rd Floor, Ste 380 | 1,283-3,533 SF | 3-5 Years | Upon Request Upon Request Upon Request Upon Request | Office | Full Build-Out | Now |
| 3rd Floor, Ste 390 | 2,252-3,533 SF | 3-5 Years | Upon Request Upon Request Upon Request Upon Request | Office | Full Build-Out | Now |
| 4th Floor, Ste 400 | 26,720 SF | 3-5 Years | Upon Request Upon Request Upon Request Upon Request | Office | Full Build-Out | Now |
| 6th Floor, Ste 600 | 26,351 SF | 1-7 Years | Upon Request Upon Request Upon Request Upon Request | Office | Full Build-Out | Now |
| 8th Floor, Ste 800 | 25,653 SF | 1-7 Years | Upon Request Upon Request Upon Request Upon Request | Office | Full Build-Out | Now |
| 9th Floor, Ste 900 | 26,487 SF | 1-7 Years | Upon Request Upon Request Upon Request Upon Request | Office | Full Build-Out | Now |
| 11th Floor, Ste 1100 | 26,753 SF | 1-7 Years | Upon Request Upon Request Upon Request Upon Request | Office | Full Build-Out | Now |
| 18th Floor, Ste 1825 | 1,657 SF | 3-5 Years | Upon Request Upon Request Upon Request Upon Request | Office | Full Build-Out | Now |
| 18th Floor, Ste 1860 | 1,683 SF | 3-5 Years | Upon Request Upon Request Upon Request Upon Request | Office | Full Build-Out | Now |
| 19th Floor, Ste 1900 | 24,004 SF | 1-7 Years | Upon Request Upon Request Upon Request Upon Request | Office | Full Build-Out | Now |
| 20th Floor, Ste 2000 | 22,422 SF | 3-5 Years | Upon Request Upon Request Upon Request Upon Request | Office | Full Build-Out | Now |
| 21st Floor, Ste 2100 | 17,566 SF | 3-5 Years | Upon Request Upon Request Upon Request Upon Request | Office | Full Build-Out | Now |
| 22nd Floor, Ste 2200 | 22,002 SF | 3-5 Years | Upon Request Upon Request Upon Request Upon Request | Office | Full Build-Out | Now |
2nd Floor, Ste 200
| Size |
| 26,333 SF |
| Term |
| 3-5 Years |
| Rental Rate |
| Upon Request Upon Request Upon Request Upon Request |
| Space Use |
| Office |
| Condition |
| Full Build-Out |
| Available |
| Now |
2nd Floor, Ste 210
| Size |
| 3,706 SF |
| Term |
| 3-5 Years |
| Rental Rate |
| Upon Request Upon Request Upon Request Upon Request |
| Space Use |
| Office |
| Condition |
| Full Build-Out |
| Available |
| Now |
3rd Floor, Ste 300
| Size |
| 10,076 SF |
| Term |
| 3-5 Years |
| Rental Rate |
| Upon Request Upon Request Upon Request Upon Request |
| Space Use |
| Office |
| Condition |
| Full Build-Out |
| Available |
| Now |
3rd Floor, Ste 337
| Size |
| 515 SF |
| Term |
| 3-5 Years |
| Rental Rate |
| Upon Request Upon Request Upon Request Upon Request |
| Space Use |
| Office |
| Condition |
| Full Build-Out |
| Available |
| Now |
3rd Floor, Ste 357
| Size |
| 1,297 SF |
| Term |
| 3-5 Years |
| Rental Rate |
| Upon Request Upon Request Upon Request Upon Request |
| Space Use |
| Office |
| Condition |
| Full Build-Out |
| Available |
| Now |
3rd Floor, Ste 367
| Size |
| 825 SF |
| Term |
| 3-5 Years |
| Rental Rate |
| Upon Request Upon Request Upon Request Upon Request |
| Space Use |
| Office |
| Condition |
| Full Build-Out |
| Available |
| Now |
3rd Floor, Ste 370
| Size |
| 2,145 SF |
| Term |
| 3-5 Years |
| Rental Rate |
| Upon Request Upon Request Upon Request Upon Request |
| Space Use |
| Office |
| Condition |
| Full Build-Out |
| Available |
| Now |
3rd Floor, Ste 380
| Size |
| 1,283-3,533 SF |
| Term |
| 3-5 Years |
| Rental Rate |
| Upon Request Upon Request Upon Request Upon Request |
| Space Use |
| Office |
| Condition |
| Full Build-Out |
| Available |
| Now |
3rd Floor, Ste 390
| Size |
| 2,252-3,533 SF |
| Term |
| 3-5 Years |
| Rental Rate |
| Upon Request Upon Request Upon Request Upon Request |
| Space Use |
| Office |
| Condition |
| Full Build-Out |
| Available |
| Now |
4th Floor, Ste 400
| Size |
| 26,720 SF |
| Term |
| 3-5 Years |
| Rental Rate |
| Upon Request Upon Request Upon Request Upon Request |
| Space Use |
| Office |
| Condition |
| Full Build-Out |
| Available |
| Now |
6th Floor, Ste 600
| Size |
| 26,351 SF |
| Term |
| 1-7 Years |
| Rental Rate |
| Upon Request Upon Request Upon Request Upon Request |
| Space Use |
| Office |
| Condition |
| Full Build-Out |
| Available |
| Now |
8th Floor, Ste 800
| Size |
| 25,653 SF |
| Term |
| 1-7 Years |
| Rental Rate |
| Upon Request Upon Request Upon Request Upon Request |
| Space Use |
| Office |
| Condition |
| Full Build-Out |
| Available |
| Now |
9th Floor, Ste 900
| Size |
| 26,487 SF |
| Term |
| 1-7 Years |
| Rental Rate |
| Upon Request Upon Request Upon Request Upon Request |
| Space Use |
| Office |
| Condition |
| Full Build-Out |
| Available |
| Now |
11th Floor, Ste 1100
| Size |
| 26,753 SF |
| Term |
| 1-7 Years |
| Rental Rate |
| Upon Request Upon Request Upon Request Upon Request |
| Space Use |
| Office |
| Condition |
| Full Build-Out |
| Available |
| Now |
18th Floor, Ste 1825
| Size |
| 1,657 SF |
| Term |
| 3-5 Years |
| Rental Rate |
| Upon Request Upon Request Upon Request Upon Request |
| Space Use |
| Office |
| Condition |
| Full Build-Out |
| Available |
| Now |
18th Floor, Ste 1860
| Size |
| 1,683 SF |
| Term |
| 3-5 Years |
| Rental Rate |
| Upon Request Upon Request Upon Request Upon Request |
| Space Use |
| Office |
| Condition |
| Full Build-Out |
| Available |
| Now |
19th Floor, Ste 1900
| Size |
| 24,004 SF |
| Term |
| 1-7 Years |
| Rental Rate |
| Upon Request Upon Request Upon Request Upon Request |
| Space Use |
| Office |
| Condition |
| Full Build-Out |
| Available |
| Now |
20th Floor, Ste 2000
| Size |
| 22,422 SF |
| Term |
| 3-5 Years |
| Rental Rate |
| Upon Request Upon Request Upon Request Upon Request |
| Space Use |
| Office |
| Condition |
| Full Build-Out |
| Available |
| Now |
21st Floor, Ste 2100
| Size |
| 17,566 SF |
| Term |
| 3-5 Years |
| Rental Rate |
| Upon Request Upon Request Upon Request Upon Request |
| Space Use |
| Office |
| Condition |
| Full Build-Out |
| Available |
| Now |
22nd Floor, Ste 2200
| Size |
| 22,002 SF |
| Term |
| 3-5 Years |
| Rental Rate |
| Upon Request Upon Request Upon Request Upon Request |
| Space Use |
| Office |
| Condition |
| Full Build-Out |
| Available |
| Now |
2nd Floor, Ste 200
| Size | 26,333 SF |
| Term | 3-5 Years |
| Rental Rate | Upon Request |
| Space Use | Office |
| Condition | Full Build-Out |
| Available | Now |
Suite 200 at 225 Bush Street will be available July 2023 and offers a robust, meeting-rich configuration suited for teams that rely heavily on collaboration and private discussion. The suite is equipped with 15 conference rooms, a large executive boardroom, 2 private offices, 6 phone rooms, and convenient en-suite restrooms, creating a self-contained and efficient workspace environment. Located within San Francisco’s North Financial District—home to more than 20 million square feet of Class A office space and exceptional transit access via Montgomery and Embarcadero BART/MUNI—the building provides a prestigious backdrop for tenants seeking both functionality and prominence. With historic architectural character and proximity to more than 90,000 daytime employees, Suite 200 stands as a compelling, amenity-rich offering in one of the city’s most strategic office locations.
- Fully Built-Out as Standard Office
- Mostly Open Floor Plan Layout
- 2 Private Offices
- 15 Conference Rooms
- Finished Ceilings: 11’
- Space is in Excellent Condition
- Plug & Play
- Private Restrooms
- Natural Light
- Features 15 conference rooms & 2 private offices
- 1 large boardroom to support presentations
- Offers 6 phone rooms, supporting private calls
2nd Floor, Ste 210
| Size | 3,706 SF |
| Term | 3-5 Years |
| Rental Rate | Upon Request |
| Space Use | Office |
| Condition | Full Build-Out |
| Available | Now |
Suite 210 at 225 Bush Street is available now and presents a flexible, well-balanced layout ideal for teams seeking both openness and privacy. The suite includes a welcoming reception area, an efficient open workspace, a detached conference room suited for focused collaboration, and six phone rooms to support private calls and virtual meetings. Situated within the architecturally significant 225 Bush building—centrally located in San Francisco’s North Financial District—this suite benefits from exceptional transit access via nearby Montgomery and Embarcadero BART/MUNI stations and proximity to more than 90,000 daytime employees. Combining historic character with modern functionality, Suite 210 offers a compelling opportunity for tenants seeking immediate occupancy in a premier business corridor.
- Fully Built-Out as Standard Office
- Open Floor Plan Layout
- 2 Private Offices
- 1 Conference Room
- Finished Ceilings: 11’
- Space is in Excellent Condition
- Reception Area
- Defined reception area for welcoming guests
- Detached conference room, 2 private offices
- 6 phone rooms, supports private calls
3rd Floor, Ste 300
| Size | 10,076 SF |
| Term | 3-5 Years |
| Rental Rate | Upon Request |
| Space Use | Office |
| Condition | Full Build-Out |
| Available | Now |
Suite 300 at 225 Bush Street features a mostly open floor plan that supports modern team-oriented workflows while offering dedicated spaces for privacy and executive-level meetings. The suite includes a large boardroom suitable for formal presentations, three private offices for focused work, and two phone rooms to accommodate confidential calls or virtual collaboration. Set within the architecturally significant 225 Bush building—located in the heart of San Francisco’s North Financial District—this suite benefits from immediate access to Montgomery and Embarcadero BART/MUNI stations and a dense daytime population exceeding 90,000 employees. Combining functional workspace design with the prestige and history of a landmark tower, Suite 300 presents a compelling opportunity for tenants seeking a balanced, efficient, and centrally located office environment.
- Fully Built-Out as Standard Office
- Mostly Open Floor Plan Layout
- 3 Private Offices
- 1 Conference Room
- Finished Ceilings: 11’
- Space is in Excellent Condition
- 1 large boardroom, ideal for formal presentations
- Features 3 private offices for executive use
- 2 phone rooms to support private calls
3rd Floor, Ste 337
| Size | 515 SF |
| Term | 3-5 Years |
| Rental Rate | Upon Request |
| Space Use | Office |
| Condition | Full Build-Out |
| Available | Now |
Suite 337 at 225 Bush Street is available now and offers a clean, flexible layout characterized by open space and a dedicated entrance that enhances both privacy and tenant identity. This suite sits within the architecturally notable 225 Bush building, designed by George W. Kelham and located in the heart of San Francisco’s North Financial District—an area defined by its concentration of Class A office space, premier corporate neighbors, and unmatched transit connectivity via the nearby Montgomery and Embarcadero BART/MUNI stations. With access to a daytime population exceeding 90,000 employees and the historic prestige of a landmark tower, Suite 337 provides an immediately available, well-positioned opportunity for tenants seeking efficient space in one of the city’s most established business corridors.
- Fully Built-Out as Standard Office
- Mostly Open Floor Plan Layout
- 1 Private Office
- Finished Ceilings: 11’
- Space is in Excellent Condition
- Includes a dedicated entrance
- Features open space, allowing flexible planning
- Benefits from a blend of historic charm & upgrades
3rd Floor, Ste 357
| Size | 1,297 SF |
| Term | 3-5 Years |
| Rental Rate | Upon Request |
| Space Use | Office |
| Condition | Full Build-Out |
| Available | Now |
Suite 357 at 225 Bush Street features an efficient and versatile layout centered around open space, supported by a dedicated entrance that provides privacy and a defined tenant identity. The suite includes a medium-sized conference room suited for team collaboration, strategy sessions, and client meetings. Positioned within the architecturally significant 225 Bush building—originally constructed as the Standard Oil Building and now a prominent fixture of San Francisco’s North Financial District—this suite benefits from excellent connectivity to both Montgomery and Embarcadero BART/MUNI stations and proximity to more than 90,000 daytime employees. Blending historic character with modern enhancements, Suite 357 provides a strong opportunity for tenants seeking a flexible, well-located workspace in one of the city’s most established commercial corridors.
- Fully Built-Out as Standard Office
- Open Floor Plan Layout
- 1 Private Office
- 1 Conference Room
- Finished Ceilings: 11’
- Space is in Excellent Condition
- Kitchen
- Dedicated entrance, providing enhanced privacy
- Medium conference room, ideal for team meetings
- Open space offering flexible planning
3rd Floor, Ste 367
| Size | 825 SF |
| Term | 3-5 Years |
| Rental Rate | Upon Request |
| Space Use | Office |
| Condition | Full Build-Out |
| Available | Now |
Suite 367 at 225 Bush Street is available now and offers a clean, flexible open layout complemented by a dedicated entrance that enhances privacy and a strong tenant identity. Positioned within the architecturally significant 225 Bush building—located in the heart of San Francisco’s North Financial District—this suite benefits from exceptional connectivity to Montgomery and Embarcadero BART/MUNI stations and sits within a concentrated hub of Class A office space and more than 90,000 daytime employees. With its open configuration and the historic yet modern-enhanced character of the building, Suite 367 presents an immediate and versatile opportunity for tenants seeking an efficient workspace in one of the city’s most established business locations.
- Fully Built-Out as Standard Office
- Open Floor Plan Layout
- 1 Private Office
- Finished Ceilings: 11’
- Space is in Excellent Condition
- Features open space, allowing for flexibility
- Dedicated entrance, enhancing privacy
- Immediate occupancy in a premier building
3rd Floor, Ste 370
| Size | 2,145 SF |
| Term | 3-5 Years |
| Rental Rate | Upon Request |
| Space Use | Office |
| Condition | Full Build-Out |
| Available | Now |
Suite 370 at 225 Bush Street is available now and features an efficient layout with open space supported by a dedicated conference room and two private offices, making it well-suited for teams seeking both collaboration and privacy. Set within the architecturally significant 225 Bush building—located in the heart of San Francisco’s North Financial District—this suite benefits from close proximity to Montgomery and Embarcadero BART/MUNI stations and sits amid one of the densest corporate environments in the city, with more than 20 million square feet of Class A office space and over 90,000 daytime employees nearby. Blending flexible workspace design with the prestige and historic character of a landmark property, Suite 370 presents a compelling and immediately available opportunity for tenants seeking a well-located and functional office solution.
- Fully Built-Out as Standard Office
- Mostly Open Floor Plan Layout
- 2 Private Offices
- 1 Conference Room
- Finished Ceilings: 11’
- Space is in Excellent Condition
- Kitchen
- Features open space suitable for flexible layouts
- Includes a conference room, ideal for meetings
- Provides 2 private offices for executive use
3rd Floor, Ste 380
| Size | 1,283-3,533 SF |
| Term | 3-5 Years |
| Rental Rate | Upon Request |
| Space Use | Office |
| Condition | Full Build-Out |
| Available | Now |
Suite 380 at 225 Bush Street is available now and offers tenants the flexibility to lease the space individually or combine it with adjacent Suite 390 for a total of 3,533 RSF. Located within the architecturally significant 225 Bush building—situated in the heart of San Francisco’s North Financial District—this suite benefits from close proximity to Montgomery and Embarcadero BART/MUNI stations, as well as the surrounding concentration of more than 20 million square feet of Class A office inventory. With its immediate availability and the option to expand, Suite 380 provides an adaptable opportunity within a historic, modernized tower serving a daytime population of over 90,000 employees, making it well-positioned for a variety of professional users.
- Fully Built-Out as Standard Office
- Mostly Open Floor Plan Layout
- 1 Private Office
- Finished Ceilings: 11’
- Space is in Excellent Condition
- Plug & Play
- Suites 380 & 390, leased separately or together
- Available now, providing immediate occupancy
- Combined, the suites provide up to 3,533 RSF
3rd Floor, Ste 390
| Size | 2,252-3,533 SF |
| Term | 3-5 Years |
| Rental Rate | Upon Request |
| Space Use | Office |
| Condition | Full Build-Out |
| Available | Now |
Suite 390 at 225 Bush Street is available now and offers tenants flexibility, as it can be leased on its own or combined with neighboring Suite 380 for a total of 3,533 RSF. Located within the architecturally significant 225 Bush building—positioned in the heart of San Francisco’s North Financial District—this suite benefits from immediate access to Montgomery and Embarcadero BART/MUNI stations and sits within one of the densest corporate ecosystems in the city, surrounded by more than 20 million square feet of Class A office space and over 90,000 daytime employees. With its prime location, historic character, and ability to accommodate tenants seeking either a standalone or expanded footprint, Suite 390 offers a well-positioned and highly adaptable workspace solution.
- Fully Built-Out as Standard Office
- Mostly Open Floor Plan Layout
- 1 Private Office
- Finished Ceilings: 11’
- Space is in Excellent Condition
- Plug & Play
- Available now, offering immediate occupancy
- Suites 380 & 390, leased separately or together
- Up to 3,533 RSF combined, allowing for flexibility
4th Floor, Ste 400
| Size | 26,720 SF |
| Term | 3-5 Years |
| Rental Rate | Upon Request |
| Space Use | Office |
| Condition | Full Build-Out |
| Available | Now |
Suite 400 at 225 Bush Street is available now and offers a rare full-floor opportunity within one of San Francisco’s most architecturally significant office towers. Occupying an entire floor, the suite provides enhanced privacy, identity, and operational efficiency for tenants seeking exclusive control of their workspace. Located in the heart of the North Financial District—surrounded by more than 20 million square feet of Class A office inventory and a daytime population exceeding 90,000 employees—the building delivers exceptional connectivity to Montgomery and Embarcadero BART/MUNI stations as well as a wide range of urban amenities. Blending historic character with modern enhancements, Suite 400 presents a premier, immediately available full-floor solution for teams seeking prominence and functionality in a landmark San Francisco location.
- Fully Built-Out as Standard Office
- Mostly Open Floor Plan Layout
- Finished Ceilings: 11’
- Space is in Excellent Condition
- Available now, offering immediate occupancy
- Full-floor suite, providing maximum privacy
- Centrally located in high-traffic corridors
6th Floor, Ste 600
| Size | 26,351 SF |
| Term | 1-7 Years |
| Rental Rate | Upon Request |
| Space Use | Office |
| Condition | Full Build-Out |
| Available | Now |
Suite 600 at 225 Bush Street is available now and offers a highly creative workspace characterized by a thoughtful blend of meeting rooms and open collaborative areas. Its flexible layout supports both dynamic team environments and private, focused discussions, making it ideal for tenants seeking an adaptable, modern office setting. Set within the architecturally significant 225 Bush building—situated in San Francisco’s North Financial District—the suite benefits from unparalleled access to Montgomery and Embarcadero BART/MUNI stations as well as the surrounding concentration of Class A office space and more than 90,000 daytime employees. Combining creative functionality with the historic character and modern upgrades of a landmark tower, Suite 600 presents an immediately available opportunity tailored for teams that value flexibility, energy, and a central business district location.
- Fully Built-Out as Standard Office
- Mostly Open Floor Plan Layout
- Finished Ceilings: 11’
- Space is in Excellent Condition
- Plug & Play
- Available now, offering immediate occupancy
- Premier, modern, full floor opportunity
- Features a mix of meeting rooms and open space
8th Floor, Ste 800
| Size | 25,653 SF |
| Term | 1-7 Years |
| Rental Rate | Upon Request |
| Space Use | Office |
| Condition | Full Build-Out |
| Available | Now |
Suite 800 at 225 Bush Street is available now and delivers a rare full-floor opportunity designed for highly creative users seeking a dynamic and flexible environment. The suite features a thoughtful blend of meeting rooms and open space, allowing teams to balance focus, collaboration, and creative workflow. Located within the architecturally significant 225 Bush building in the heart of San Francisco’s North Financial District, the space benefits from unmatched access to Montgomery and Embarcadero BART/MUNI stations and a dense professional ecosystem defined by more than 20 million square feet of Class A office space and over 90,000 daytime employees. With its full-floor identity, modern creative layout, and historic yet upgraded setting, Suite 800 offers an immediately available solution for tenants seeking prominence, flexibility, and centrality in a landmark Financial District tower.
- Fully Built-Out as Standard Office
- Mostly Open Floor Plan Layout
- Finished Ceilings: 11’
- Space is in Excellent Condition
- Plug & Play
- Can be combined with additional space(s) for up to 52,140 SF of adjacent space
- Available now, offering immediate occupancy
- Full-floor suite, providing maximum privacy
- Designed as a highly creative space
- Features a mix of meeting rooms and open space
9th Floor, Ste 900
| Size | 26,487 SF |
| Term | 1-7 Years |
| Rental Rate | Upon Request |
| Space Use | Office |
| Condition | Full Build-Out |
| Available | Now |
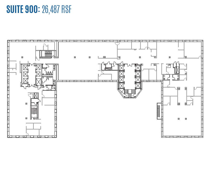
Suite 900 at 225 Bush Street is available now and offers a full-floor, highly creative environment ideal for modern teams seeking both openness and structure. With a thoughtful blend of meeting rooms and open space, the suite supports flexible collaboration while maintaining dedicated areas for focus and private discussions. Located within the architecturally significant 225 Bush building in the heart of San Francisco’s North Financial District, the space benefits from immediate access to Montgomery and Embarcadero BART/MUNI stations and sits amid one of the densest corporate clusters in the city. Blending full-floor identity with historic character and modern upgrades, Suite 900 presents an exceptional opportunity for tenants seeking a dynamic, centrally positioned workspace in a landmark tower.
- Fully Built-Out as Standard Office
- Mostly Open Floor Plan Layout
- Finished Ceilings: 11’
- Space is in Excellent Condition
- Plug & Play
- Can be combined with additional space(s) for up to 52,140 SF of adjacent space
- Kitchen
- Natural Light
- Available now, allowing immediate move-in
- Full-floor suite, offering maximum privacy
- Features a mix of meeting rooms and open space
11th Floor, Ste 1100
| Size | 26,753 SF |
| Term | 1-7 Years |
| Rental Rate | Upon Request |
| Space Use | Office |
| Condition | Full Build-Out |
| Available | Now |
Suite 900 at 225 Bush Street is available now and offers a rare full-floor, highly creative open environment with an exposed ceiling that delivers a contemporary, airy aesthetic. The expansive, open layout allows teams to customize the workspace to support collaborative zones, flexible workstations, or creative studio needs, while the full-floor configuration provides a unique opportunity for prominent branding and operational privacy. Situated within the iconic 225 Bush building—located in the heart of San Francisco’s North Financial District—this suite benefits from exceptional access to Montgomery and Embarcadero BART/MUNI stations and sits within one of the densest corporate ecosystems in the city. Blending historic architectural character with modern, creative design potential, Suite 900 offers an immediately available, centrally positioned workspace ideal for teams seeking presence, flexibility, and energy in a landmark tower.
- Fully Built-Out as Standard Office
- Mostly Open Floor Plan Layout
- Finished Ceilings: 11’
- Space is in Excellent Condition
- Exposed Ceiling
- Natural Light
- Available now, offering immediate occupancy
- Full-floor suite, providing maximum privacy
- Open ceiling, contributing to a creative aesthetic
- Expansive open area allows for flexibility
18th Floor, Ste 1825
| Size | 1,657 SF |
| Term | 3-5 Years |
| Rental Rate | Upon Request |
| Space Use | Office |
| Condition | Full Build-Out |
| Available | Now |
Suite 1825 at 225 Bush Street is available now and offers a clean, efficient layout featuring open space supported by a single private office, making it suitable for teams that value both collaboration and focused work. Located within the architecturally significant 225 Bush building—situated in the heart of San Francisco’s North Financial District—the suite benefits from immediate access to Montgomery and Embarcadero BART/MUNI stations and is surrounded by more than 20 million square feet of Class A office inventory and a dense daytime workforce exceeding 90,000 employees. With its central positioning, historic character, and modernized infrastructure, Suite 1825 provides an adaptable and well-connected environment for tenants seeking a right-sized workspace in a landmark downtown tower.
- Fully Built-Out as Standard Office
- Mostly Open Floor Plan Layout
- 1 Private Office
- Finished Ceilings: 11’
- Space is in Excellent Condition
- Plug & Play
- Available now, offering immediate occupancy
- Features open space, ideal for flexible layouts
- 1 private office for focused work
18th Floor, Ste 1860
| Size | 1,683 SF |
| Term | 3-5 Years |
| Rental Rate | Upon Request |
| Space Use | Office |
| Condition | Full Build-Out |
| Available | Now |
Suite 1825 at 225 Bush Street is available now and offers a dynamic, light-filled environment characterized by extra-high ceilings and a practical mix of workspace types. The suite features open space ideal for team collaboration, supported by a dedicated conference room, four private offices, and an in-suite kitchen that enhances daily convenience. Located within the architecturally significant 225 Bush building in San Francisco’s North Financial District, the space benefits from immediate proximity to Montgomery and Embarcadero BART/MUNI stations and sits within a dense corporate ecosystem of Class A office towers and more than 90,000 daytime employees. Combining functional versatility with the historic character and modern upgrades of a landmark tower, Suite 1825 presents a compelling, immediately available opportunity for teams seeking a polished and centrally located workspace.
- Fully Built-Out as Standard Office
- Mostly Open Floor Plan Layout
- 4 Private Offices
- 1 Conference Room
- Finished Ceilings: 11’
- Space is in Excellent Condition
- Plug & Play
- Kitchen
- High Ceilings
- Available now, offering immediate occupancy
- Extra-high ceilings create an open environment
- Includes open space, ideal for flexible layouts
19th Floor, Ste 1900
| Size | 24,004 SF |
| Term | 1-7 Years |
| Rental Rate | Upon Request |
| Space Use | Office |
| Condition | Full Build-Out |
| Available | Now |
Suite 1900 at 225 Bush Street is available now and offers a fully creative, full-floor environment designed for teams seeking a blend of openness, flexibility, and collaboration. The suite features a mostly open layout supported by numerous meeting and huddle rooms of varying sizes, allowing for a range of work modes. A large open kitchen enhances the space’s communal feel and provides a central hub for team interaction, while abundant natural light contributes to an inviting and productive workplace atmosphere. With lease terms ranging from 1 to 7 years and an added incentive offering brokers a $3/RSF bonus for sub-5-year deals or $5/RSF for terms of 5 years or more, Suite 1900 presents a compelling opportunity. Set within the historic and architecturally significant 225 Bush building in San Francisco’s North Financial District, this full-floor suite delivers both functional versatility and landmark appeal for tenants seeking a distinctive and adaptable workplace.
- Fully Built-Out as Standard Office
- Open Floor Plan Layout
- 18 Conference Rooms
- Finished Ceilings: 11’
- Space is in Excellent Condition
- Kitchen
- Natural Light
- Creative full-floor suite allowing for privacy
- Available now, offering immediate occupancy
- Open layout with excellent flexibility
- Includes ample meeting and huddle rooms
20th Floor, Ste 2000
| Size | 22,422 SF |
| Term | 3-5 Years |
| Rental Rate | Upon Request |
| Space Use | Office |
| Condition | Full Build-Out |
| Available | Now |
Suite 2000 at 225 Bush Street must be leased together with Floors 20–22, creating a unified multi-floor opportunity anchored by a highly creative full-floor workspace. The suite features a dramatic two-story reception area that sets an impressive tone, followed by a balanced mix of internal offices and open space flooded with great natural light. Various meeting and huddle rooms support flexible collaboration, while a large complement of shared amenities—including a brand-new gym with locker and shower facilities—enhances the tenant experience. Located within the architecturally significant 225 Bush building in San Francisco’s North Financial District, the space offers a compelling blend of historic character and modern functionality. Ownership is also offering attractive broker incentives: $3/RSF for lease terms under five years and $5/RSF for terms of five years or longer. Together, these elements make Suite 2000 an exceptional, amenity-rich workspace suited for tenants seeking a standout multi-floor presence in a premier downtown tower.
- Fully Built-Out as Standard Office
- Open Floor Plan Layout
- Partitioned Offices
- Finished Ceilings: 11’
- Space is in Excellent Condition
- Can be combined with additional space(s) for up to 61,990 SF of adjacent space
- Reception Area
- Secure Storage
- Natural Light
- Shower Facilities
- Must be leased together with Floors 20–22
- Features a dramatic two-story reception area
- Combination of internal offices and open space
- Access to a brand-new gym, locker room, & showers
21st Floor, Ste 2100
| Size | 17,566 SF |
| Term | 3-5 Years |
| Rental Rate | Upon Request |
| Space Use | Office |
| Condition | Full Build-Out |
| Available | Now |
Suite 2100 at 225 Bush Street offers a highly creative workspace that must be leased together with Floors 20–22, forming a cohesive multi-floor environment ideal for larger teams or connected departmental layouts. The space benefits from abundant natural light and a thoughtful combination of private offices and open workspace, enhanced by a dramatic internal staircase linking directly to the 20th floor. A range of meeting and huddle rooms supports flexible collaboration, while tenants also enjoy access to a brand-new gym, locker, and shower facility within the building. Located in the heart of San Francisco’s North Financial District, the suite blends the historic character of 225 Bush with modern functionality and strong amenity offerings. To further enhance the opportunity, ownership is providing a broker bonus of $3/RSF for terms under five years and $5/RSF for terms of five or more, making Suite 2100 an especially compelling choice for teams seeking a prominent and connected downtown presence.
- Fully Built-Out as Standard Office
- Open Floor Plan Layout
- Finished Ceilings: 11’
- Space is in Excellent Condition
- Can be combined with additional space(s) for up to 61,990 SF of adjacent space
- Secure Storage
- Natural Light
- Shower Facilities
- Must be leased with Floors 20–22
- Creative space with a modern, flexible layout
- Includes a mix of offices and open space
- Contains a large internal staircase
22nd Floor, Ste 2200
| Size | 22,002 SF |
| Term | 3-5 Years |
| Rental Rate | Upon Request |
| Space Use | Office |
| Condition | Full Build-Out |
| Available | Now |
Suite 2200 at 225 Bush Street occupies the top floor of the building and must be leased together with Floors 20–22, creating a standout multi-floor opportunity defined by rare amenities and striking architectural features. The suite offers two roof decks, abundant natural light, and skylights that illuminate a creative blend of open workspace and private offices. A large all-hands kitchen anchors the floor, making it ideal for team-wide gatherings, events, or collaborative workshops. Creative finishes throughout enhance the character and functionality of the environment, while building tenants benefit from access to a brand-new gym complete with locker and shower facilities. Ownership further strengthens the offering with broker incentives of $3/RSF for lease terms under five years and $5/RSF for terms of five years or more. Altogether, Suite 2200 delivers an exceptional, amenity-rich top-floor experience suited for tenants seeking a unique and dynamic headquarters-style setting in a landmark Financial District tower.
- Fully Built-Out as Standard Office
- Open Floor Plan Layout
- Finished Ceilings: 11’
- Space is in Excellent Condition
- Plug & Play
- Can be combined with additional space(s) for up to 61,990 SF of adjacent space
- Kitchen
- Secure Storage
- Natural Light
- Shower Facilities
- Top floor of the building, offering exclusivity
- Must be leased with Floors 20–22
- Features two roof decks
- Includes skylights, delivering an open feel
PROPERTY OVERVIEW
Floor has unique arched windows with high ceilings throughout.
- 24 Hour Access
- Banking
- Bus Line
- Conferencing Facility
- Fitness Center
- Property Manager on Site
- Storage Space
- Central Heating
- High Ceilings
- Wi-Fi
- Air Conditioning
PROPERTY FACTS
Presented by
225 Bush St
Hmm, there seems to have been an error sending your message. Please try again.
Thanks! Your message was sent.

















































