Your email has been sent.
2250 Taylor Ranch Trl - 7.1 ac US 41 in Venice for 119 Unit ALF! 7.1 Acres of Commercial Land in Venice, FL 34293



PROPERTY FACTS
| Sale Type | Investment | Property Subtype | Commercial |
| No. Lots | 1 | Proposed Use | Multifamily |
| Property Type | Land | Total Lot Size | 7.10 AC |
| Zoning | RE1 - Residential Estate | ||
| Sale Type | Investment |
| No. Lots | 1 |
| Property Type | Land |
| Property Subtype | Commercial |
| Proposed Use | Multifamily |
| Total Lot Size | 7.10 AC |
| Zoning | RE1 - Residential Estate |
1 LOT AVAILABLE
Lot
| Lot Size | 7.10 AC |
| Lot Size | 7.10 AC |
DESCRIPTION
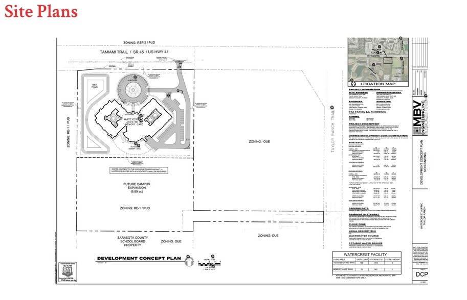
PROPERTY DESCRIPTION - The opportunity is to acquire 7.1± acres along U.S. 41 in Venice, Sarasota County. Zoned RE-1/PUD, the property allows for up to 190,000 square feet and 119 assisted living and memory care units. With entitlements in place, the site is well suited for senior housing or healthcare-related development in a growing Gulf Coast market. LOCATION DESCRIPTION - The property offers excellent visibility along U.S. 41 (Tamiami Trail) just south of SR 776 in south Venice. It lies near established neighborhoods, new residential growth, and the Sarasota Memorial Hospital–Venice Campus, providing convenient access for residents and staff. The site’s location along a major corridor connects it to downtown Venice, Wellen Park, and Englewood. MUNICIPALITY - Sarasota County PROPERTY SIZE- 7.1 Acres ZONING - RE-1/PUD PARCEL ID - 0464001000
PROPERTY TAXES
| Parcel Number | 0464-00-1000 | Improvements Assessment | $0 CAD |
| Land Assessment | $785,244 CAD | Total Assessment | $785,244 CAD |
PROPERTY TAXES
Presented by
2250 Taylor Ranch Trl - 7.1 ac US 41 in Venice for 119 Unit ALF!
Hmm, there seems to have been an error sending your message. Please try again.
Thanks! Your message was sent.
