Log In/Sign Up
Your email has been sent.
Sangamo Club Building 227 E Adams St 29,168 SF Flex Building Springfield, IL 62701 $820,456 CAD ($28.13 CAD/SF)



Executive Summary
A rare opportunity in Downtown Springfield, IL with so many possibilities!
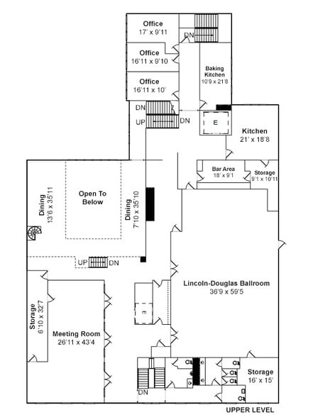
Drive up to the covered canopy entrance, then make use of the many designated areas within the building. A beautiful reception area leads into the two-story main hall and mezzanine with a wall of arched windows that overlooks one of the three outdoor patio areas with a water fountain. There is onsite parking and the spaces throughout the building include large and small gathering spaces, offices, entertainment areas, a main kitchen, other smaller kitchen work spaces, and two elevators. This property has a wonderful atmosphere, blending sophistication with functionality.
Property being sold by judicial order and any sale shall be subject to court approval. Broker is the court appointed special selling officer. FF&E is not included in the sale. The real property is being sold "as is", "where is" and "with all faults", without any representation or warranty whatsoever as to its condition, status of title, fitness for any particular purpose, merchantability or any other warranty, express, or implied.
Drive up to the covered canopy entrance, then make use of the many designated areas within the building. A beautiful reception area leads into the two-story main hall and mezzanine with a wall of arched windows that overlooks one of the three outdoor patio areas with a water fountain. There is onsite parking and the spaces throughout the building include large and small gathering spaces, offices, entertainment areas, a main kitchen, other smaller kitchen work spaces, and two elevators. This property has a wonderful atmosphere, blending sophistication with functionality.
Property being sold by judicial order and any sale shall be subject to court approval. Broker is the court appointed special selling officer. FF&E is not included in the sale. The real property is being sold "as is", "where is" and "with all faults", without any representation or warranty whatsoever as to its condition, status of title, fitness for any particular purpose, merchantability or any other warranty, express, or implied.
Property Facts Under Contract
Amenities
- Conferencing Facility
- Courtyard
- Restaurant
- Security System
- Wheelchair Accessible
- Accent Lighting
- Reception
- Storage Space
- Air Conditioning
- Smoke Detector
1 1
Moderately walkable
60/100
Moderately drivable
60/100
Some public transit
40/100
Moderately bikeable
60/100
Property Taxes
| Parcel Number | 14-34.0-102-037 | Improvements Assessment | $140,718 CAD |
| Land Assessment | $199,151 CAD | Total Assessment | $339,869 CAD |
Property Taxes
Parcel Number
14-34.0-102-037
Land Assessment
$199,151 CAD
Improvements Assessment
$140,718 CAD
Total Assessment
$339,869 CAD
1 of 28
Videos
Matterport 3D Exterior
Matterport 3D Tour
Photos
Street View
Street
Map
1 of 1
Presented by
Sangamo Club Building | 227 E Adams St
Already a member? Log In
Hmm, there seems to have been an error sending your message. Please try again.
Thanks! Your message was sent.
