Log In/Sign Up
Your email has been sent.
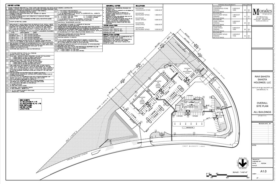
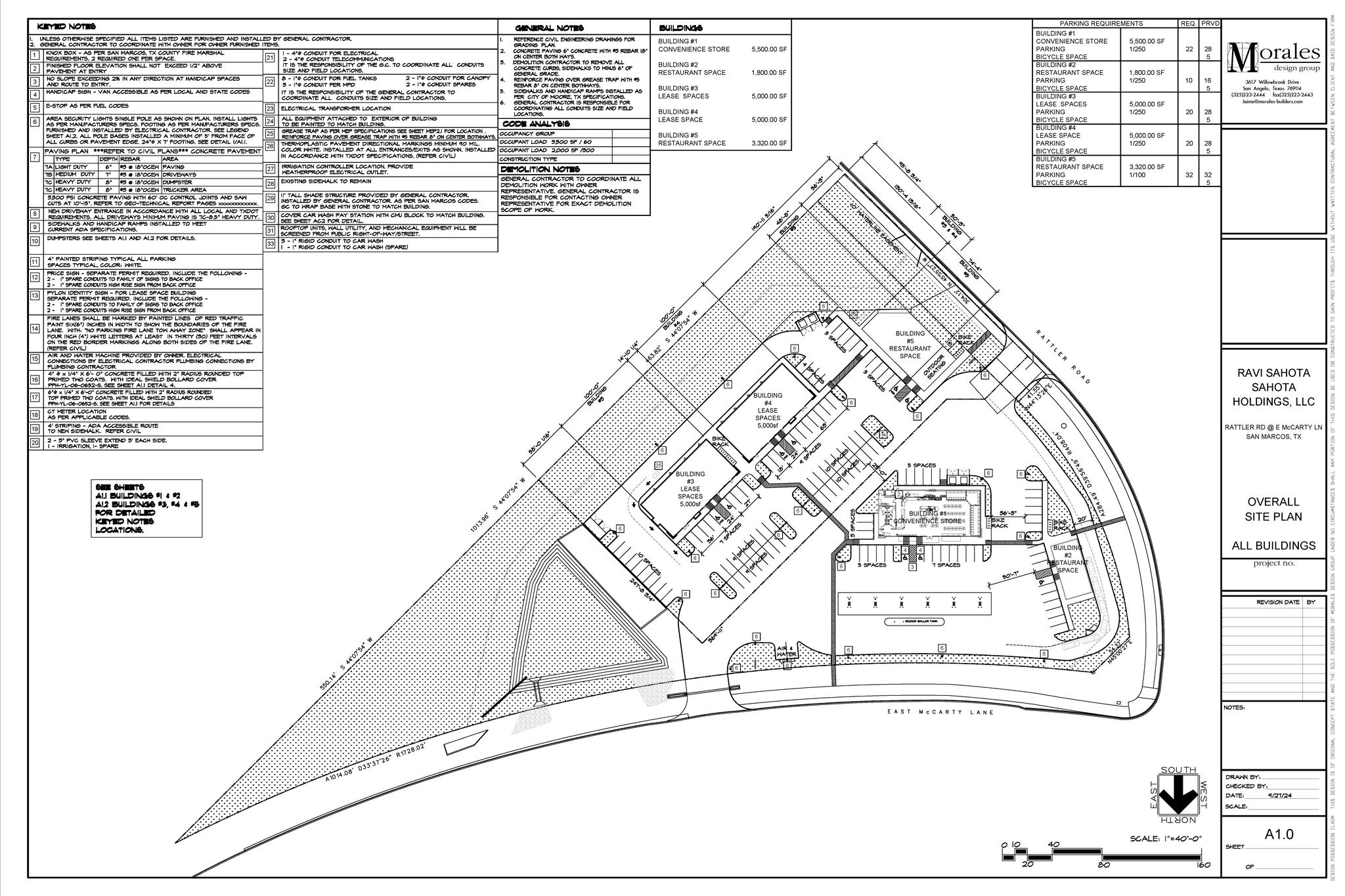
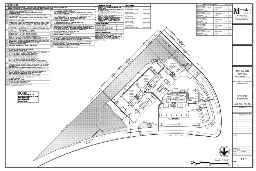
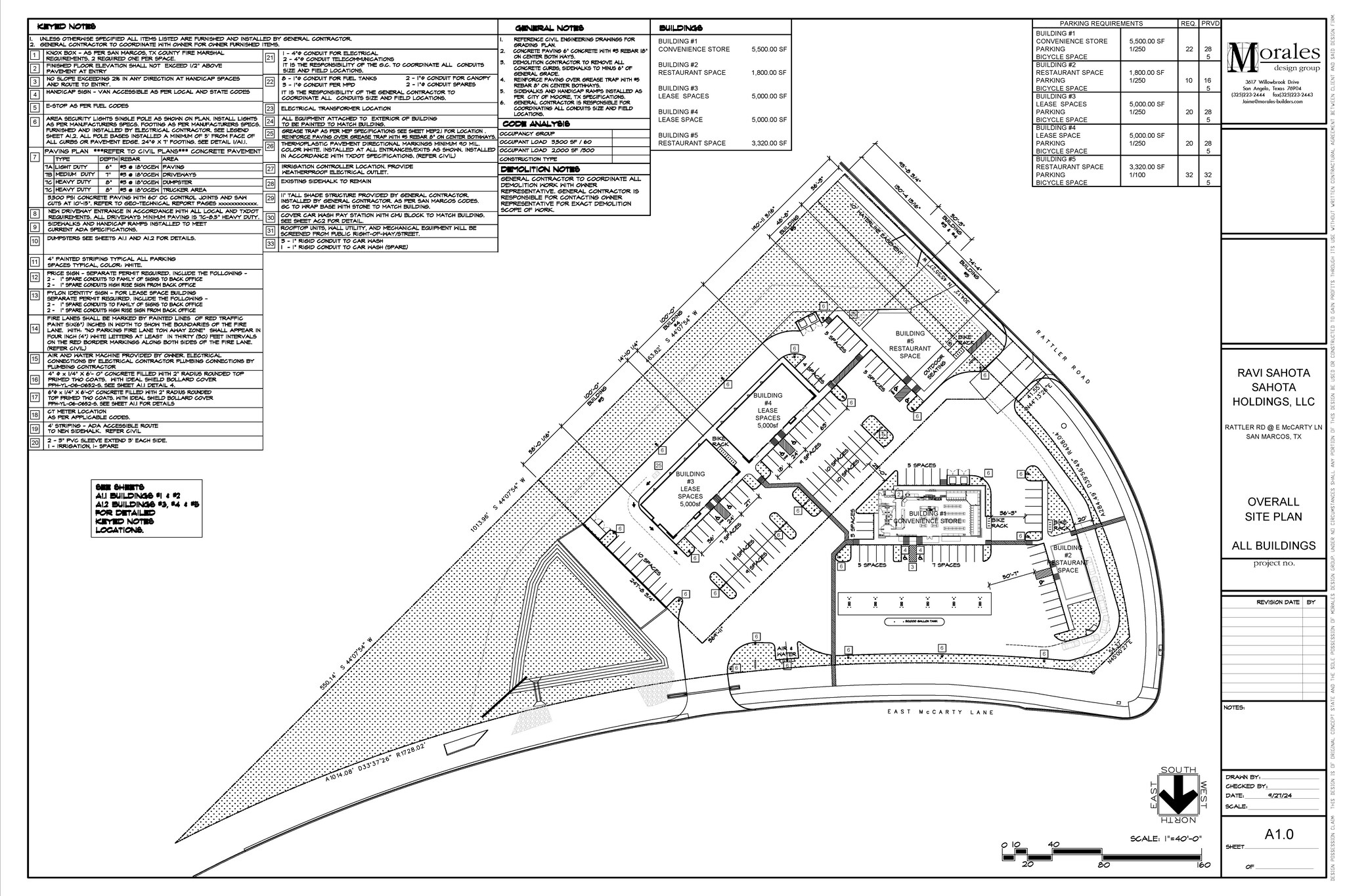
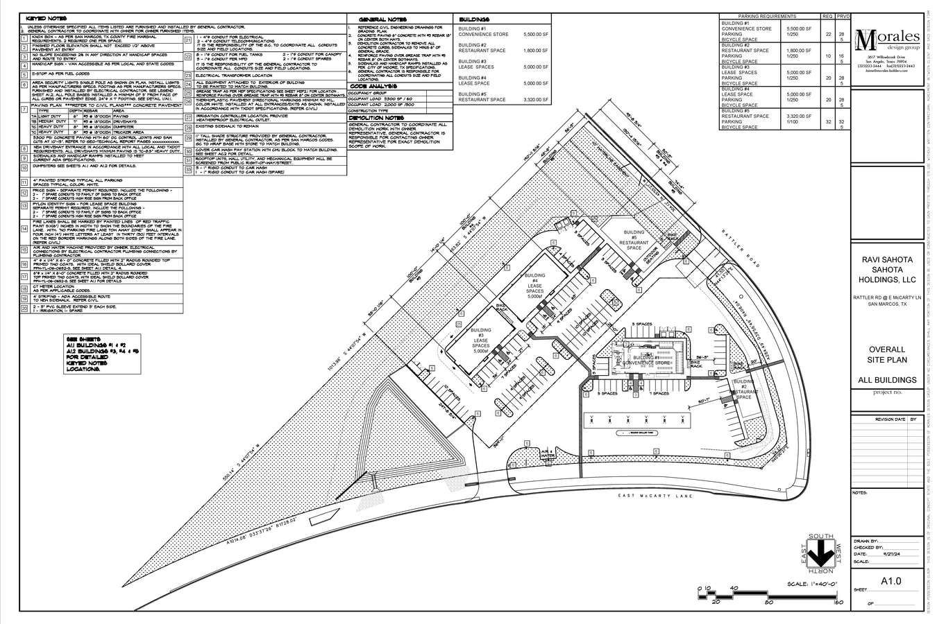
2275 Rattler Rd
San Marcos, TX 78666
$500M Mixed-Use Development Announced 8.13.25 · Retail Property For Lease
·
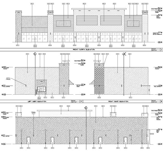
11,620 SF


Highlights
- Expansive planned development across McCarty @ Rattler Including: Sports park complex Mixed residential communities Office & retail spaces
- Strong demographic patterns supporting retail success
- Established single and multi-family housing within ±3-5 mile radius
Property Facts
| Total Space Available | 11,620 SF | Gross Leasable Area | 15,120 SF |
| Min. Divisible | 1,500 SF | Parking Ratio | 6/1,000 SF |
| Property Type | Retail | Construction Status | Proposed |
| Property Subtype | Storefront |
| Total Space Available | 11,620 SF |
| Min. Divisible | 1,500 SF |
| Property Type | Retail |
| Property Subtype | Storefront |
| Gross Leasable Area | 15,120 SF |
| Parking Ratio | 6/1,000 SF |
| Construction Status | Proposed |
About the Property
Located in a dynamic growth corridor featuring an expansive planned development across McCarty @ Rattler Including: •Sports park complex •Mixed residential communities •Office & retail spaces •Multiple lifestyle amenities •Established single and multi-family housing within ±3-5mile radius •Strong demographic patterns supporting retail success
- Banking
- Corner Lot
- Dedicated Turn Lane
- Freeway Visibility
- Pylon Sign
- Restaurant
- Signage
- Signalized Intersection
- Tenant Controlled HVAC
- Drive Thru
- Wheelchair Accessible
1 of 3
Videos
Matterport 3D Exterior
Matterport 3D Tour
Photos
Street View
Street
Map
