Your email has been sent.
Prime Downtown Berkeley Retail Space 2277 Shattuck Ave 2,538 - 8,335 SF of Retail Space Available in Berkeley, CA 94704



Highlights
- Single-tenant identity in a multi-level building – 1 block from UC Berkeley, BART, and Target
- Over 460 new residential units in a 4-block radius
- 2 restrooms
- High foot traffic daily, several new developments within 1/4 mile radius
- Beautiful details: Terrazzo floor at interior entrance, tile work surrounding 3 mezzanine level windows
- Easy walk to live theater, music, and sports venues
Space Availability (3)
Display Rental Rate as
- Space
- Size
- Term
- Rental Rate
- Rent Type
| Space | Size | Term | Rental Rate | Rent Type | ||
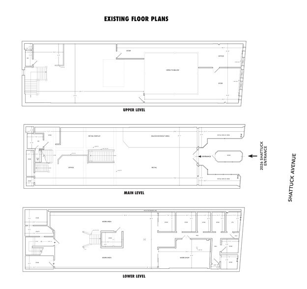
| Basement | 2,997 SF | Negotiable | Upon Request Upon Request Upon Request Upon Request | Triple Net (NNN) | ||
| 1st Floor | 2,800 SF | Negotiable | Upon Request Upon Request Upon Request Upon Request | Negotiable | ||
| Mezzanine | 2,538 SF | Negotiable | Upon Request Upon Request Upon Request Upon Request | Negotiable |
Basement
- Call Broker for lease rate - ± 2,800 RSF ground floor (with BONUS SPACE of ± 2,538 RSF mezzanine and ± 2,997 RSF basement) - Ceiling heights vary by floor: ground floor is ±10 feet height; mezzanine and basement ceiling heights are approximately 7+ feet - Berkeley Historic Landmark: Hezlett’s Silk Store Building - Existing restroom on the main level, plus a non-compliant restroom on the mezzanine level - 2 blocks to Downtown Berkeley BART station with ± 27,000 daily ridership entries and exits - High-foot traffic every day - Downtown Berkeley has ± 22,812 residents within a half mile - Over 1,400 new housing units recently completed – several within a quarter mile - Join other nearby retail, food, and service companies including: Target, CVS, UPS, Sliver Pizzeria, Gather, Ippudo, Pegasus Books, Comal, Jupiter, Angeline’s Louisiana Kitchen, and Eureka! - Easy walk to live theater, music, and sports venues
- Lease rate does not include utilities, property expenses or building services
- Located in-line with other retail
- Partially Demolished Space
- Can be combined with additional space(s) for up to 8,335 SF of adjacent space
- Private Restrooms
- High Ceilings
1st Floor
- Call Broker for lease rate - ± 2,800 RSF ground floor (with BONUS SPACE of ± 2,538 RSF mezzanine and ± 2,997 RSF basement) - Ceiling heights vary by floor: ground floor is ±10 feet height; mezzanine and basement ceiling heights are approximately 7+ feet - Berkeley Historic Landmark: Hezlett’s Silk Store Building - Existing restroom on the main level, plus a non-compliant restroom on the mezzanine level - 2 blocks to Downtown Berkeley BART station with ± 27,000 daily ridership entries and exits - High-foot traffic every day - Downtown Berkeley has ± 22,812 residents within a half mile - Over 1,400 new housing units recently completed – several within a quarter mile - Join other nearby retail, food, and service companies including: Target, CVS, UPS, Sliver Pizzeria, Gather, Ippudo, Pegasus Books, Comal, Jupiter, Angeline’s Louisiana Kitchen, and Eureka! - Easy walk to live theater, music, and sports venues
- Can be combined with additional space(s) for up to 8,335 SF of adjacent space
- Fits 7 - 23 People
Mezzanine
- Call Broker for lease rate - ± 2,800 RSF ground floor (with BONUS SPACE of ± 2,538 RSF mezzanine and ± 2,997 RSF basement) - Ceiling heights vary by floor: ground floor is ±10 feet height; mezzanine and basement ceiling heights are approximately 7+ feet - Berkeley Historic Landmark: Hezlett’s Silk Store Building - Existing restroom on the main level, plus a non-compliant restroom on the mezzanine level - 2 blocks to Downtown Berkeley BART station with ± 27,000 daily ridership entries and exits - High-foot traffic every day - Downtown Berkeley has ± 22,812 residents within a half mile - Over 1,400 new housing units recently completed – several within a quarter mile - Join other nearby retail, food, and service companies including: Target, CVS, UPS, Sliver Pizzeria, Gather, Ippudo, Pegasus Books, Comal, Jupiter, Angeline’s Louisiana Kitchen, Peet’s Coffee, and Eureka! - Easy walk to live theater, music, and sports venues
- Can be combined with additional space(s) for up to 8,335 SF of adjacent space
- Fits 7 - 21 People
Rent Types
The rent amount and type that the tenant (lessee) will be responsible to pay to the landlord (lessor) throughout the lease term is negotiated prior to both parties signing a lease agreement. The rent type will vary depending upon the services provided. For example, triple net rents are typically lower than full service rents due to additional expenses the tenant is required to pay in addition to the base rent. Contact the listing broker for a full understanding of any associated costs or additional expenses for each rent type.
1. Full Service: A rental rate that includes normal building standard services as provided by the landlord within a base year rental.
2. Double Net (NN): Tenant pays for only two of the building expenses; the landlord and tenant determine the specific expenses prior to signing the lease agreement.
3. Triple Net (NNN): A lease in which the tenant is responsible for all expenses associated with their proportional share of occupancy of the building.
4. Modified Gross: Modified Gross is a general type of lease rate where typically the tenant will be responsible for their proportional share of one or more of the expenses. The landlord will pay the remaining expenses. See the below list of common Modified Gross rental rate structures: 4. Plus All Utilities: A type of Modified Gross Lease where the tenant is responsible for their proportional share of utilities in addition to the rent. 4. Plus Cleaning: A type of Modified Gross Lease where the tenant is responsible for their proportional share of cleaning in addition to the rent. 4. Plus Electric: A type of Modified Gross Lease where the tenant is responsible for their proportional share of the electrical cost in addition to the rent. 4. Plus Electric & Cleaning: A type of Modified Gross Lease where the tenant is responsible for their proportional share of the electrical and cleaning cost in addition to the rent. 4. Plus Utilities and Char: A type of Modified Gross Lease where the tenant is responsible for their proportional share of the utilities and cleaning cost in addition to the rent. 4. Industrial Gross: A type of Modified Gross lease where the tenant pays one or more of the expenses in addition to the rent. The landlord and tenant determine these prior to signing the lease agreement.
5. Tenant Electric: The landlord pays for all services and the tenant is responsible for their usage of lights and electrical outlets in the space they occupy.
6. Negotiable or Upon Request: Used when the leasing contact does not provide the rent or service type.
7. TBD: To be determined; used for buildings for which no rent or service type is known, commonly utilized when the buildings are not yet built.
Property Facts
| Total Space Available | 8,335 SF | Gross Leasable Area | 8,335 SF |
| Property Type | Retail | Year Built/Renovated | 1920/1996 |
| Property Subtype | Storefront |
| Total Space Available | 8,335 SF |
| Property Type | Retail |
| Property Subtype | Storefront |
| Gross Leasable Area | 8,335 SF |
| Year Built/Renovated | 1920/1996 |
About the Property
Single-tenant identity in a multi-level building in high-traffic core of Downtown Berkeley. Prime location – one block from UC Berkeley and BART. ± 2,800 RSF ground floor. Call Broker for lease rate. BONUS SPACE INCLUDES: ± 2,538 RSF mezzanine ± 2,997 RSF basement PROPERTY FEATURES - Street frontage adorned with tile work surrounding 3 mezzanine level windows and beautiful Terrazzo floor at interior entrance - Ceiling heights vary by floor. Ground floor is ± 10 feet height; mezzanine and basement ceiling heights are approximately 7+ feet - Existing restroom on the main level, plus a non-compliant restroom on the mezzanine level - Well-suited for many uses - Designated a Landmark by the City of Berkeley in 2008 LOCATION - On busy Shattuck Avenue, in the heart of Downtown Berkeley - High foot traffic every day - Traffic count on Shattuck Avenue (at Kittredge Street) is 18,498 - Downtown Berkeley has ±22,812 residents within a half mile - Over 1,400 new housing units recently completed – several within a quarter mile - 200 start-up businesses operating in Berkeley, over half of them in Downtown - Join other nearby retail, food and service companies including: Target, CVS, UPS, Sliver Pizzeria, Gather, Ippudo, Pegasus Books, Comal, Jupiter, Angeline’s Louisiana Kitchen, and Eureka! - Easy walk to live theater, music, and sports venues
- Bus Line
- Metro/Subway
- Mezzanine
- Signage
- Skylights
Nearby Major Retailers
Presented by
Prime Downtown Berkeley Retail Space | 2277 Shattuck Ave
Hmm, there seems to have been an error sending your message. Please try again.
Thanks! Your message was sent.









