Your email has been sent.
Class A Offices Available 2026 2297 Montauk Hwy 1,889 - 9,093 SF of 4-Star Office/Medical Space Available in Sagaponack, NY 11962



All Available Spaces(3)
Display Rental Rate as
- Space
- Size
- Term
- Rental Rate
- Space Use
- Condition
- Available
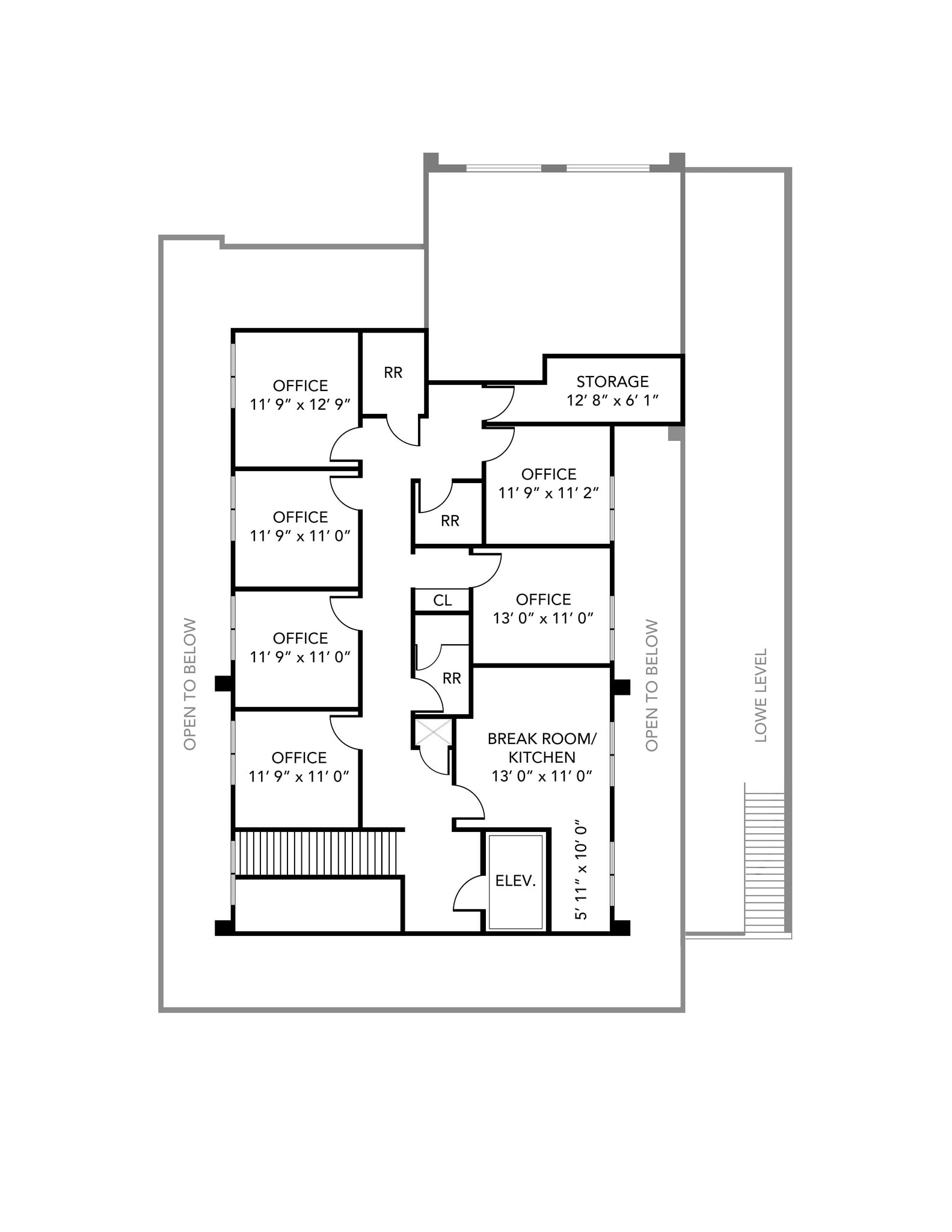
Presenting a remarkable commercial property location, ideal for both medical and general commercial use, available for lease in the prestigious area of Bridgehampton, New York. This proposed 5,491-square-foot new development commercial building at 2297 Montauk Highway presents a unique opportunity for your medical or general commercial purposes. Located in a prime development area, it offers an ideal canvas to create or expand your desired space. Space Configuration With 3,602 of proposed square feet on the ground floor, 1,889 square feet on the second floor, and an additional 3,602 square feet of windowed storage space on the lower level, this adaptable space will be well-suited for various business purposes, from medical practices to general office uses, allowing you to customize it to your exact needs. 28 dedicated parking spaces provide your staff and clientele with the convenience of hassle-free parking, making their visits to your business a seamless experience. Location Strategically positioned between Montauk Highway and Church Lane, this property provides a high-visibility location and easy access for both pedestrians and motorists. It's an advantageous spot for establishing or expanding your presence in the thriving community of Bridgehampton. For leasing inquiries please do not hesitate to contact us.
- Can be combined with additional space(s) for up to 9,093 SF of adjacent space
Presenting a remarkable commercial property location, ideal for both medical and general commercial use, available for lease in the prestigious area of Bridgehampton, New York. This proposed 5,491 square foot new development commercial building at 2297 Montauk Highway presents a unique opportunity for your medical or general commercial purposes. Located in a prime development area, it offers an ideal canvas to create or expand your desired space. Space Configuration With 3,602 of proposed square feet on the ground floor, 1,889 square feet on the second floor, and an additional 3,602 square feet of windowed storage space on the lower level, this adaptable space will be well-suited for various business purposes, from medical practices to general office uses, allowing you to customize it to your exact needs.. 28 dedicated parking spaces provide your staff and clientele with the convenience of hassle-free parking, making their visits to your business a seamless experience. Location Strategically positioned between Montauk Highway and Church Lane, this property provides a high-visibility location and easy access for both pedestrians and motorists. It's an advantageous spot for establishing or expanding your presence in the thriving community of Bridgehampton. For leasing inquiries please do not hesitate to contact us.
- Can be combined with additional space(s) for up to 9,093 SF of adjacent space
Presenting a remarkable commercial property location, ideal for both medical and general commercial use, available for lease in the prestigious area of Bridgehampton, New York. This proposed 5,491 square foot new development commercial building at 2297 Montauk Highway presents a unique opportunity for your medical or general commercial purposes. Located in a prime development area, it offers an ideal canvas to create or expand your desired space. Space Configuration With 3,602 of proposed square feet on the ground floor, 1,889 square feet on the second floor, and an additional 3,602 square feet of windowed storage space on the lower level, this adaptable space will be well-suited for various business purposes, from medical practices to general office uses, allowing you to customize it to your exact needs. 28 dedicated parking spaces provide your staff and clientele with the convenience of hassle-free parking, making their visits to your business a seamless experience. Location Strategically positioned between Montauk Highway and Church Lane, this property provides a high-visibility location and easy access for both pedestrians and motorists. It's an advantageous spot for establishing or expanding your presence in the thriving community of Bridgehampton. For leasing inquiries please do not hesitate to contact us.
- Can be combined with additional space(s) for up to 9,093 SF of adjacent space
| Space | Size | Term | Rental Rate | Space Use | Condition | Available |
| Lower Level | 3,602 SF | 5-10 Years | Upon Request Upon Request Upon Request Upon Request | Office/Medical | Spec Suite | 2027-03-01 |
| 1st Floor | 3,602 SF | 5-10 Years | Upon Request Upon Request Upon Request Upon Request | Office/Medical | Spec Suite | 2027-03-01 |
| 2nd Floor | 1,889 SF | 5-10 Years | Upon Request Upon Request Upon Request Upon Request | Office/Medical | Spec Suite | 2027-03-01 |
Lower Level
| Size |
| 3,602 SF |
| Term |
| 5-10 Years |
| Rental Rate |
| Upon Request Upon Request Upon Request Upon Request |
| Space Use |
| Office/Medical |
| Condition |
| Spec Suite |
| Available |
| 2027-03-01 |
1st Floor
| Size |
| 3,602 SF |
| Term |
| 5-10 Years |
| Rental Rate |
| Upon Request Upon Request Upon Request Upon Request |
| Space Use |
| Office/Medical |
| Condition |
| Spec Suite |
| Available |
| 2027-03-01 |
2nd Floor
| Size |
| 1,889 SF |
| Term |
| 5-10 Years |
| Rental Rate |
| Upon Request Upon Request Upon Request Upon Request |
| Space Use |
| Office/Medical |
| Condition |
| Spec Suite |
| Available |
| 2027-03-01 |
Lower Level
| Size | 3,602 SF |
| Term | 5-10 Years |
| Rental Rate | Upon Request |
| Space Use | Office/Medical |
| Condition | Spec Suite |
| Available | 2027-03-01 |
Presenting a remarkable commercial property location, ideal for both medical and general commercial use, available for lease in the prestigious area of Bridgehampton, New York. This proposed 5,491-square-foot new development commercial building at 2297 Montauk Highway presents a unique opportunity for your medical or general commercial purposes. Located in a prime development area, it offers an ideal canvas to create or expand your desired space. Space Configuration With 3,602 of proposed square feet on the ground floor, 1,889 square feet on the second floor, and an additional 3,602 square feet of windowed storage space on the lower level, this adaptable space will be well-suited for various business purposes, from medical practices to general office uses, allowing you to customize it to your exact needs. 28 dedicated parking spaces provide your staff and clientele with the convenience of hassle-free parking, making their visits to your business a seamless experience. Location Strategically positioned between Montauk Highway and Church Lane, this property provides a high-visibility location and easy access for both pedestrians and motorists. It's an advantageous spot for establishing or expanding your presence in the thriving community of Bridgehampton. For leasing inquiries please do not hesitate to contact us.
- Can be combined with additional space(s) for up to 9,093 SF of adjacent space
1st Floor
| Size | 3,602 SF |
| Term | 5-10 Years |
| Rental Rate | Upon Request |
| Space Use | Office/Medical |
| Condition | Spec Suite |
| Available | 2027-03-01 |
Presenting a remarkable commercial property location, ideal for both medical and general commercial use, available for lease in the prestigious area of Bridgehampton, New York. This proposed 5,491 square foot new development commercial building at 2297 Montauk Highway presents a unique opportunity for your medical or general commercial purposes. Located in a prime development area, it offers an ideal canvas to create or expand your desired space. Space Configuration With 3,602 of proposed square feet on the ground floor, 1,889 square feet on the second floor, and an additional 3,602 square feet of windowed storage space on the lower level, this adaptable space will be well-suited for various business purposes, from medical practices to general office uses, allowing you to customize it to your exact needs.. 28 dedicated parking spaces provide your staff and clientele with the convenience of hassle-free parking, making their visits to your business a seamless experience. Location Strategically positioned between Montauk Highway and Church Lane, this property provides a high-visibility location and easy access for both pedestrians and motorists. It's an advantageous spot for establishing or expanding your presence in the thriving community of Bridgehampton. For leasing inquiries please do not hesitate to contact us.
- Can be combined with additional space(s) for up to 9,093 SF of adjacent space
2nd Floor
| Size | 1,889 SF |
| Term | 5-10 Years |
| Rental Rate | Upon Request |
| Space Use | Office/Medical |
| Condition | Spec Suite |
| Available | 2027-03-01 |
Presenting a remarkable commercial property location, ideal for both medical and general commercial use, available for lease in the prestigious area of Bridgehampton, New York. This proposed 5,491 square foot new development commercial building at 2297 Montauk Highway presents a unique opportunity for your medical or general commercial purposes. Located in a prime development area, it offers an ideal canvas to create or expand your desired space. Space Configuration With 3,602 of proposed square feet on the ground floor, 1,889 square feet on the second floor, and an additional 3,602 square feet of windowed storage space on the lower level, this adaptable space will be well-suited for various business purposes, from medical practices to general office uses, allowing you to customize it to your exact needs. 28 dedicated parking spaces provide your staff and clientele with the convenience of hassle-free parking, making their visits to your business a seamless experience. Location Strategically positioned between Montauk Highway and Church Lane, this property provides a high-visibility location and easy access for both pedestrians and motorists. It's an advantageous spot for establishing or expanding your presence in the thriving community of Bridgehampton. For leasing inquiries please do not hesitate to contact us.
- Can be combined with additional space(s) for up to 9,093 SF of adjacent space
Property Overview
Explore the finest luxury Commercial / Medical Office opportunity at 2297 Montauk Highway, Bridgehampton. Constructed by The Farrell Companies, one of the premier builders in the Hamptons. Strategically located on Montauk Highway and Church Lane, this property provides a high-visibility location and easy access for both pedestrians and motorists. In the heart of Bridgehampton with ample parking for convenience This sophisticated new development is slated for completion in Q1 2026.
- Air Conditioning
Property Facts
Presented by
Class A Offices Available 2026 | 2297 Montauk Hwy
Hmm, there seems to have been an error sending your message. Please try again.
Thanks! Your message was sent.







