Log In/Sign Up
Your email has been sent.
2300-12 2nd St st
Philadelphia, PA 19133
2300–12 N 2nd St · Land For Sale
·
0.35 AC


Investment Highlights
- Assembled CMX-2.5 Site | Seven contiguous parcels offering scale and flexible mixed-use development potential.
- Illustrative Unit Mix | Conceptual plans depict a mix of studio, one-bedroom, and two-bedroom units, subject to approvals.
- High-Growth Submarket | Surrounded by active development and sustained neighborhood investment.
- Conceptual Mid-Rise Density with Upside | Illustrative plans depict ~43 units; zoning may allow up to 80 units with bonuses, subject to approval.
- Prime North 2nd Street Location | Infill site connecting Fishtown, Northern Liberties, and Port Richmond with strong transit access.
- Potential Tax Advantages | Opportunity Zone designation may provide capital gains tax deferral and long-term tax benefits.
Executive Summary
SCOPE Commercial Real Estate Services, LLC (“SCOPE”) is pleased to present a unique land development opportunity at 2300–12 N. 2nd Street, consisting of seven (7) contiguous parcels assembled along North 2nd Street in Philadelphia’s rapidly evolving Lower Kensington/Fishtown submarket. The site is zoned CMX-2.5, allowing for a broad range of by-right commercial and mixed-use development options, subject to zoning, design, and City approvals.
The property is currently improved with an existing warehouse structure. Buyers are encouraged to perform independent due diligence regarding site conditions and redevelopment considerations.
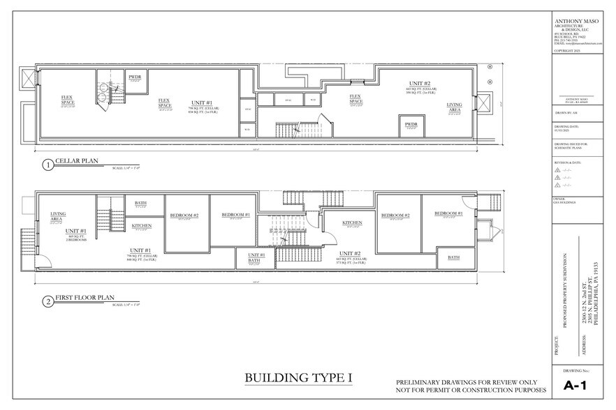
Preliminary conceptual architectural plans illustrate the potential for a five-story multifamily development with a cellar level, depicting up to 43 residential units (subject to final design, zoning compliance, and permitting). The illustrative unit mix includes studio, one-bedroom, and two-bedroom layouts, with total bedroom counts and cellar configurations subject to further review and approval by the City of Philadelphia. Conceptual site plans depict multiple development configurations, including both a contiguous building layout and a multi-building scheme, subject to final design and approvals. With applicable zoning bonuses, the CMX-2.5 designation may allow for increased residential density beyond the illustrative concepts, subject to zoning compliance and City approvals.
Cellar-level areas are shown as flexible space in the conceptual plans, with final use, habitability, and bedroom counts to be determined through the design and approval process, including any required Civic Design Review or other City agency approvals. The assembled parcels allow for efficient site planning, vertical construction, and a cohesive building footprint that would be
difficult to replicate through individual parcel acquisition.
Notably, the property is located within a federally designated Opportunity Zone, which may provide qualifying investors with the ability to defer and potentially reduce capital gains taxes through long-term investment, subject to eligibility and compliance with applicable regulations.
Strategically located along North 2nd Street, the property offers convenient access to major transportation corridors connecting Center City, Northern Liberties, Fishtown, and Port Richmond. The site is well served by public transit and provides quick access to I-95 and other major arterials. With favorable zoning, assembled land, and conceptual development studies already completed, 2300–12 N. 2nd Street presents a compelling opportunity for developers to pursue a ground-up multifamily or mixed-use project in one of Philadelphia’s most active growth corridors.
The property is currently improved with an existing warehouse structure. Buyers are encouraged to perform independent due diligence regarding site conditions and redevelopment considerations.
Preliminary conceptual architectural plans illustrate the potential for a five-story multifamily development with a cellar level, depicting up to 43 residential units (subject to final design, zoning compliance, and permitting). The illustrative unit mix includes studio, one-bedroom, and two-bedroom layouts, with total bedroom counts and cellar configurations subject to further review and approval by the City of Philadelphia. Conceptual site plans depict multiple development configurations, including both a contiguous building layout and a multi-building scheme, subject to final design and approvals. With applicable zoning bonuses, the CMX-2.5 designation may allow for increased residential density beyond the illustrative concepts, subject to zoning compliance and City approvals.
Cellar-level areas are shown as flexible space in the conceptual plans, with final use, habitability, and bedroom counts to be determined through the design and approval process, including any required Civic Design Review or other City agency approvals. The assembled parcels allow for efficient site planning, vertical construction, and a cohesive building footprint that would be
difficult to replicate through individual parcel acquisition.
Notably, the property is located within a federally designated Opportunity Zone, which may provide qualifying investors with the ability to defer and potentially reduce capital gains taxes through long-term investment, subject to eligibility and compliance with applicable regulations.
Strategically located along North 2nd Street, the property offers convenient access to major transportation corridors connecting Center City, Northern Liberties, Fishtown, and Port Richmond. The site is well served by public transit and provides quick access to I-95 and other major arterials. With favorable zoning, assembled land, and conceptual development studies already completed, 2300–12 N. 2nd Street presents a compelling opportunity for developers to pursue a ground-up multifamily or mixed-use project in one of Philadelphia’s most active growth corridors.
Property Facts
| Sale Type | Investment | Proposed Use | Commercial |
| No. Lots | 1 | Total Lot Size | 0.35 AC |
| Property Type | Land | Opportunity Zone |
Yes
|
| Property Subtype | Residential | ||
| Zoning | CMX-2.5 - Commercial Mixed Use | ||
| Sale Type | Investment |
| No. Lots | 1 |
| Property Type | Land |
| Property Subtype | Residential |
| Proposed Use | Commercial |
| Total Lot Size | 0.35 AC |
| Opportunity Zone |
Yes |
| Zoning | CMX-2.5 - Commercial Mixed Use |
1 Lot Available
Lot
| Price | $2,175,200 CAD | Lot Size | 0.35 AC |
| Price Per AC | $6,289,104.75 CAD |
| Price | $2,175,200 CAD |
| Price Per AC | $6,289,104.75 CAD |
| Lot Size | 0.35 AC |
Unique land development opportunity consisting of seven (7) contiguous parcels assembled along North 2nd Street in Philadelphia’s rapidly evolving Lower Kensington Fishtown submarket. Zoned CMX-2.5 for broad range of development options.
Property Taxes
| Parcel Numbers | Improvements Assessment | $0 CAD | |
| Land Assessment | $253,193 CAD | Total Assessment | $253,193 CAD |
Property Taxes
Parcel Numbers
Land Assessment
$253,193 CAD
Improvements Assessment
$0 CAD
Total Assessment
$253,193 CAD
1 of 13
Videos
Matterport 3D Exterior
Matterport 3D Tour
Photos
Street View
Street
Map
