Your email has been sent.
Highlights
- New air-conditioning system and LED light panels for energy efficiency.
- No CAM fees and a minimum two-year lease term.
- Flexible office or retail space with recent improvements including paint and carpet.
- Excellent location with easy access to I-75 and I-275.
Features
All Available Space(1)
Display Rental Rate as
- Space
- Size
- Term
- Rental Rate
- Space Use
- Build-Out
- Available
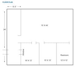
The unit features approximately 1,400 SF of space with recent upgrades, including new paint, carpet, LED lighting, and a new air-conditioning system. The floor plan includes multiple rooms and one restroom, providing a functional setup for office or retail operations.
- Listed rate may not include certain utilities, building services and property expenses
- Private Restrooms
- Easy access and visibility
- Central Air Conditioning
- Open space with new carpet installed
| Space | Size | Term | Rental Rate | Space Use | Build-Out | Available |
| 1st Floor, Ste A14 | 1,400 SF | 2 Years | $11.21 CAD/SF/YR $0.93 CAD/SF/MO $15,694 CAD/YR $1,308 CAD/MO | Office/Retail | - | Now |
1st Floor, Ste A14
| Size |
| 1,400 SF |
| Term |
| 2 Years |
| Rental Rate |
| $11.21 CAD/SF/YR $0.93 CAD/SF/MO $15,694 CAD/YR $1,308 CAD/MO |
| Space Use |
| Office/Retail |
| Build-Out |
| - |
| Available |
| Now |
1st Floor, Ste A14
| Size | 1,400 SF |
| Term | 2 Years |
| Rental Rate | $11.21 CAD/SF/YR |
| Space Use | Office/Retail |
| Build-Out | - |
| Available | Now |
The unit features approximately 1,400 SF of space with recent upgrades, including new paint, carpet, LED lighting, and a new air-conditioning system. The floor plan includes multiple rooms and one restroom, providing a functional setup for office or retail operations.
- Listed rate may not include certain utilities, building services and property expenses
- Central Air Conditioning
- Private Restrooms
- Open space with new carpet installed
- Easy access and visibility
Property Overview
The property is located on East Kemper Road in Sharonville, Ohio, within proximity to major transportation routes including Interstate 75 and Interstate 275. The surrounding area includes a mix of commercial and light industrial uses. The site offers a single-story structure with interior improvements and on-site parking.
Warehouse Facility Facts
Select Tenants
- Floor
- Tenant Name
- Industry
- 1st
- Target World
- Arts, Entertainment, and Recreation
Presented by
2300 E Kemper Rd
Hmm, there seems to have been an error sending your message. Please try again.
Thanks! Your message was sent.






