Log In/Sign Up
Your email has been sent.
2300 Parkwood Dr 4,664 SF Office Building Brunswick, GA 31520 $1,699,375 CAD ($364.36 CAD/SF)



Investment Highlights
- Location! Rare commercial building located within view of 150 + bed regional hospital
- Large expansion to building in 2021
- Modern commercial building adaptable to several uses, including medical office, childcare, eldercare, or educational facility.
Executive Summary
Rare commercial building located within view of 150 + bed regional hospital. Significantly expanded/ updated in 2021. Easily adapted to medical office, childcare, eldercare, or educational facility.
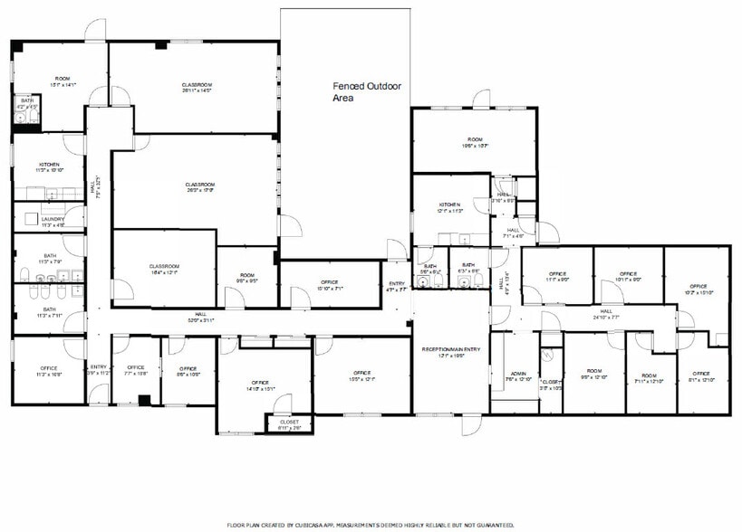
This approximately 5,300 SF commercial building is well located within view of the Southeast Georgia Health System main campus in Brunswick. The building occupies a corner lot at Parkwood Drive and E. Park Avenue. Major expansion and renovation occurred in 2021, resulting in a modern and attractive structure. The building includes multiple offices, work areas, reception, two kitchens, laundry, five baths, classrooms, storage, and a fenced outdoor area. There are 30 parking spaces, and entrances from both streets. The building has multiple entry/exit points and is handicapped accessible. It is easily adapted to medical office, child-care, elder-care, or general office. Property is also for LEASE at $8,400 per month. Ask broker for details.
This approximately 5,300 SF commercial building is well located within view of the Southeast Georgia Health System main campus in Brunswick. The building occupies a corner lot at Parkwood Drive and E. Park Avenue. Major expansion and renovation occurred in 2021, resulting in a modern and attractive structure. The building includes multiple offices, work areas, reception, two kitchens, laundry, five baths, classrooms, storage, and a fenced outdoor area. There are 30 parking spaces, and entrances from both streets. The building has multiple entry/exit points and is handicapped accessible. It is easily adapted to medical office, child-care, elder-care, or general office. Property is also for LEASE at $8,400 per month. Ask broker for details.
Property Facts
Sale Type
Investment or Owner User
Property Type
Office
Property Subtype
Building Size
4,664 SF
Building Class
C
Year Built/Renovated
1952/2021
Price
$1,699,375 CAD
Price Per SF
$364.36 CAD
Tenancy
Single
Building Height
1 Story
Typical Floor Size
4,664 SF
Building FAR
0.18
Lot Size
0.60 AC
Zoning
C2 - Commercial
1 1
Fairly walkable
50/100
Moderately drivable
70/100
Fairly bikeable
50/100
Property Taxes
| Parcel Numbers | Improvements Assessment | $152,524 CAD | |
| Land Assessment | $115,487 CAD | Total Assessment | $268,011 CAD |
Property Taxes
Parcel Numbers
Land Assessment
$115,487 CAD
Improvements Assessment
$152,524 CAD
Total Assessment
$268,011 CAD
1 of 15
Videos
Matterport 3D Exterior
Matterport 3D Tour
Photos
Street View
Street
Map
1 of 1
Presented by
2300 Parkwood Dr
Already a member? Log In
Hmm, there seems to have been an error sending your message. Please try again.
Thanks! Your message was sent.
