Your email has been sent.
Tremont Professional Center 2300 W Sample Rd 100 - 15,119 SF of Space Available in Pompano Beach, FL 33069



Highlights
- easy access from Coral Springs/Parkland, Boca & West Boca, Fort Lauderdale & Pompano Beach.
- HVAC service 24 hours 7 days.
- Abundant Free Parking
- Signage Available
All Available Spaces(8)
Display Rental Rate as
- Space
- Size
- Term
- Rental Rate
- Space Use
- Build-Out
- Available
$750- $1000 per month for a single office Rate Includes operating expenses, electric, and janitorial. Abundant Parking. New Ownership. Onsite Management. New modern ceiling grids, LED lighting, and flooring options.
- Fully Built-Out as Standard Office
- Central Air Conditioning
- Frontage on Sample Road
- Mostly Open Floor Plan Layout
- Highly visible location
- Close proximity to major roadways
Move In condition. New Modern Finishes. Rate includes electric, operating expenses, and janitorial.
- Listed rate may not include certain utilities, building services and property expenses
- 2 Private Offices
- Central Air Conditioning
- Frontage on Sample Road
- Fully Built-Out as Professional Services Office
- Space is in Excellent Condition
- Highly visible location
- Close proximity to major roadways
Will build to suit. Corner unit. New modern ceiling grids, LED Lighting, and flooring options. Rate includes electric, janitorial, and operating expenses.
- Listed rate may not include certain utilities, building services and property expenses
- Mostly Open Floor Plan Layout
- Highly visible location
- Close proximity to major roadways
- Fully Built-Out as Standard Office
- Central Air Conditioning
- Frontage on Sample Road
Will build to suit - 5 year lease required. Rate includes electric and light janitorial. Tenant controlled HVAC runs 24/7.
- Listed rate may not include certain utilities, building services and property expenses
- Mostly Open Floor Plan Layout
- Fully Built-Out as Standard Office
- Central Air Conditioning
24/7 HVAC. Abundant parking. Updated finishes. New AC units.
- Listed rate may not include certain utilities, building services and property expenses
- Mostly Open Floor Plan Layout
- Space is in Excellent Condition
- Highly visible location
- Close proximity to major roadways
- Fully Built-Out as Standard Office
- 6 Private Offices
- Central Air Conditioning
- Frontage on Sample Road
Abundant Parking. New Ownership. Onsite ownership, leasing, and management. New modern ceiling grid, LED lighting, and finishes. Rate includes electric, janitorial, and operating expenses.
- Listed rate may not include certain utilities, building services and property expenses
- Mostly Open Floor Plan Layout
- Central Air Conditioning
- Frontage on Sample Road
- Fully Built-Out as Standard Office
- 4 Private Offices
- Highly visible location
- Close proximity to major roadways
Rent includes electric, janitorial, and operating expenses. Currently built out as call center. Landlord will build to suit.
- Listed rate may not include certain utilities, building services and property expenses
- Mostly Open Floor Plan Layout
- Highly visible location
- Close proximity to major roadways
- Fully Built-Out as Standard Office
- Central Air Conditioning
- Frontage on Sample Road
Owner will build to suit with modern finishes. Rent includes electric, janitorial, operating expenses.
- Listed rate may not include certain utilities, building services and property expenses
- Mostly Open Floor Plan Layout
- Highly visible location
- Close proximity to major roadways
- Fully Built-Out as Standard Office
- Central Air Conditioning
- Frontage on Sample Road
| Space | Size | Term | Rental Rate | Space Use | Build-Out | Available |
| 2nd Floor, Ste 210 | 100-1,178 SF | 3-5 Years | Upon Request Upon Request Upon Request Upon Request | Office/Medical | Full Build-Out | 90 Days |
| 2nd Floor, Ste 212 | 730 SF | 5 Years | $40.93 CAD/SF/YR $3.41 CAD/SF/MO $29,877 CAD/YR $2,490 CAD/MO | Office | Full Build-Out | 30 Days |
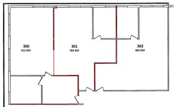
| 3rd Floor, Ste 300 - 301 | 1,726-2,854 SF | 3 Years | $38.20 CAD/SF/YR $3.18 CAD/SF/MO $109,019 CAD/YR $9,085 CAD/MO | Office/Medical | Full Build-Out | 30 Days |
| 3rd Floor, Ste 302 | 1,128-2,854 SF | 3 Years | $38.20 CAD/SF/YR $3.18 CAD/SF/MO $109,019 CAD/YR $9,085 CAD/MO | Office/Medical | Full Build-Out | Now |
| 3rd Floor, Ste 306-307 | 1,450 SF | 5 Years | $38.20 CAD/SF/YR $3.18 CAD/SF/MO $55,388 CAD/YR $4,616 CAD/MO | Office | Full Build-Out | 30 Days |
| 3rd Floor, Ste 308 | 1,004 SF | 3-5 Years | $38.20 CAD/SF/YR $3.18 CAD/SF/MO $38,352 CAD/YR $3,196 CAD/MO | Office/Medical | Full Build-Out | Now |
| 3rd Floor, Ste 314 | 700-2,524 SF | 5 Years | $38.20 CAD/SF/YR $3.18 CAD/SF/MO $96,414 CAD/YR $8,034 CAD/MO | Office | Full Build-Out | Now |
| 3rd Floor, Ste 315 | 1,825-2,525 SF | 5 Years | $38.20 CAD/SF/YR $3.18 CAD/SF/MO $96,452 CAD/YR $8,038 CAD/MO | Office | Full Build-Out | Now |
2nd Floor, Ste 210
| Size |
| 100-1,178 SF |
| Term |
| 3-5 Years |
| Rental Rate |
| Upon Request Upon Request Upon Request Upon Request |
| Space Use |
| Office/Medical |
| Build-Out |
| Full Build-Out |
| Available |
| 90 Days |
2nd Floor, Ste 212
| Size |
| 730 SF |
| Term |
| 5 Years |
| Rental Rate |
| $40.93 CAD/SF/YR $3.41 CAD/SF/MO $29,877 CAD/YR $2,490 CAD/MO |
| Space Use |
| Office |
| Build-Out |
| Full Build-Out |
| Available |
| 30 Days |
3rd Floor, Ste 300 - 301
| Size |
| 1,726-2,854 SF |
| Term |
| 3 Years |
| Rental Rate |
| $38.20 CAD/SF/YR $3.18 CAD/SF/MO $109,019 CAD/YR $9,085 CAD/MO |
| Space Use |
| Office/Medical |
| Build-Out |
| Full Build-Out |
| Available |
| 30 Days |
3rd Floor, Ste 302
| Size |
| 1,128-2,854 SF |
| Term |
| 3 Years |
| Rental Rate |
| $38.20 CAD/SF/YR $3.18 CAD/SF/MO $109,019 CAD/YR $9,085 CAD/MO |
| Space Use |
| Office/Medical |
| Build-Out |
| Full Build-Out |
| Available |
| Now |
3rd Floor, Ste 306-307
| Size |
| 1,450 SF |
| Term |
| 5 Years |
| Rental Rate |
| $38.20 CAD/SF/YR $3.18 CAD/SF/MO $55,388 CAD/YR $4,616 CAD/MO |
| Space Use |
| Office |
| Build-Out |
| Full Build-Out |
| Available |
| 30 Days |
3rd Floor, Ste 308
| Size |
| 1,004 SF |
| Term |
| 3-5 Years |
| Rental Rate |
| $38.20 CAD/SF/YR $3.18 CAD/SF/MO $38,352 CAD/YR $3,196 CAD/MO |
| Space Use |
| Office/Medical |
| Build-Out |
| Full Build-Out |
| Available |
| Now |
3rd Floor, Ste 314
| Size |
| 700-2,524 SF |
| Term |
| 5 Years |
| Rental Rate |
| $38.20 CAD/SF/YR $3.18 CAD/SF/MO $96,414 CAD/YR $8,034 CAD/MO |
| Space Use |
| Office |
| Build-Out |
| Full Build-Out |
| Available |
| Now |
3rd Floor, Ste 315
| Size |
| 1,825-2,525 SF |
| Term |
| 5 Years |
| Rental Rate |
| $38.20 CAD/SF/YR $3.18 CAD/SF/MO $96,452 CAD/YR $8,038 CAD/MO |
| Space Use |
| Office |
| Build-Out |
| Full Build-Out |
| Available |
| Now |
2nd Floor, Ste 210
| Size | 100-1,178 SF |
| Term | 3-5 Years |
| Rental Rate | Upon Request |
| Space Use | Office/Medical |
| Build-Out | Full Build-Out |
| Available | 90 Days |
$750- $1000 per month for a single office Rate Includes operating expenses, electric, and janitorial. Abundant Parking. New Ownership. Onsite Management. New modern ceiling grids, LED lighting, and flooring options.
- Fully Built-Out as Standard Office
- Mostly Open Floor Plan Layout
- Central Air Conditioning
- Highly visible location
- Frontage on Sample Road
- Close proximity to major roadways
2nd Floor, Ste 212
| Size | 730 SF |
| Term | 5 Years |
| Rental Rate | $40.93 CAD/SF/YR |
| Space Use | Office |
| Build-Out | Full Build-Out |
| Available | 30 Days |
Move In condition. New Modern Finishes. Rate includes electric, operating expenses, and janitorial.
- Listed rate may not include certain utilities, building services and property expenses
- Fully Built-Out as Professional Services Office
- 2 Private Offices
- Space is in Excellent Condition
- Central Air Conditioning
- Highly visible location
- Frontage on Sample Road
- Close proximity to major roadways
3rd Floor, Ste 300 - 301
| Size | 1,726-2,854 SF |
| Term | 3 Years |
| Rental Rate | $38.20 CAD/SF/YR |
| Space Use | Office/Medical |
| Build-Out | Full Build-Out |
| Available | 30 Days |
Will build to suit. Corner unit. New modern ceiling grids, LED Lighting, and flooring options. Rate includes electric, janitorial, and operating expenses.
- Listed rate may not include certain utilities, building services and property expenses
- Fully Built-Out as Standard Office
- Mostly Open Floor Plan Layout
- Central Air Conditioning
- Highly visible location
- Frontage on Sample Road
- Close proximity to major roadways
3rd Floor, Ste 302
| Size | 1,128-2,854 SF |
| Term | 3 Years |
| Rental Rate | $38.20 CAD/SF/YR |
| Space Use | Office/Medical |
| Build-Out | Full Build-Out |
| Available | Now |
Will build to suit - 5 year lease required. Rate includes electric and light janitorial. Tenant controlled HVAC runs 24/7.
- Listed rate may not include certain utilities, building services and property expenses
- Fully Built-Out as Standard Office
- Mostly Open Floor Plan Layout
- Central Air Conditioning
3rd Floor, Ste 306-307
| Size | 1,450 SF |
| Term | 5 Years |
| Rental Rate | $38.20 CAD/SF/YR |
| Space Use | Office |
| Build-Out | Full Build-Out |
| Available | 30 Days |
24/7 HVAC. Abundant parking. Updated finishes. New AC units.
- Listed rate may not include certain utilities, building services and property expenses
- Fully Built-Out as Standard Office
- Mostly Open Floor Plan Layout
- 6 Private Offices
- Space is in Excellent Condition
- Central Air Conditioning
- Highly visible location
- Frontage on Sample Road
- Close proximity to major roadways
3rd Floor, Ste 308
| Size | 1,004 SF |
| Term | 3-5 Years |
| Rental Rate | $38.20 CAD/SF/YR |
| Space Use | Office/Medical |
| Build-Out | Full Build-Out |
| Available | Now |
Abundant Parking. New Ownership. Onsite ownership, leasing, and management. New modern ceiling grid, LED lighting, and finishes. Rate includes electric, janitorial, and operating expenses.
- Listed rate may not include certain utilities, building services and property expenses
- Fully Built-Out as Standard Office
- Mostly Open Floor Plan Layout
- 4 Private Offices
- Central Air Conditioning
- Highly visible location
- Frontage on Sample Road
- Close proximity to major roadways
3rd Floor, Ste 314
| Size | 700-2,524 SF |
| Term | 5 Years |
| Rental Rate | $38.20 CAD/SF/YR |
| Space Use | Office |
| Build-Out | Full Build-Out |
| Available | Now |
Rent includes electric, janitorial, and operating expenses. Currently built out as call center. Landlord will build to suit.
- Listed rate may not include certain utilities, building services and property expenses
- Fully Built-Out as Standard Office
- Mostly Open Floor Plan Layout
- Central Air Conditioning
- Highly visible location
- Frontage on Sample Road
- Close proximity to major roadways
3rd Floor, Ste 315
| Size | 1,825-2,525 SF |
| Term | 5 Years |
| Rental Rate | $38.20 CAD/SF/YR |
| Space Use | Office |
| Build-Out | Full Build-Out |
| Available | Now |
Owner will build to suit with modern finishes. Rent includes electric, janitorial, operating expenses.
- Listed rate may not include certain utilities, building services and property expenses
- Fully Built-Out as Standard Office
- Mostly Open Floor Plan Layout
- Central Air Conditioning
- Highly visible location
- Frontage on Sample Road
- Close proximity to major roadways
Property Overview
Rate includes operating expenses, electric, 24/7 tenant controlled HVAC, HVAC maintenance repairs and replacement, and Janitorial. Exceptional access close to the Florida Turnpike, Sawgrass Expressway, and I-95. Minutes to Broward Health North located at Sample Rd and I-95. Close to tri-rail station at Sample Rd and I-95. Abundant free Parking. New Ownership. Onsite leasing & management. Signage available.
- Atrium
- Bus Line
- Signage
Property Facts
Select Tenants
- Floor
- Tenant Name
- Industry
- 3rd
- Assurance Van Lines
- Transportation and Warehousing
- 2nd
- CRE Asset Advisors
- Real Estate
- 3rd
- D & M Freedom Legacy
- Finance and Insurance
- 1st
- Department of Veteran Affairs
- Public Administration
- 3rd
- Innovative Prosthetics
- Health Care and Social Assistance
- 2nd
- Quality Family Care Llc
- Health Care and Social Assistance
- 2nd
- RDM Book Keeping
- Finance and Insurance
- 1st
- Renaul Care Associates
- Health Care and Social Assistance
- 3rd
- TCET Holdings
- Health Care and Social Assistance
- 3rd
- We Will Transport It
- Transportation and Warehousing
Presented by
Tremont Professional Center | 2300 W Sample Rd
Hmm, there seems to have been an error sending your message. Please try again.
Thanks! Your message was sent.










