Your email has been sent.
Highlights
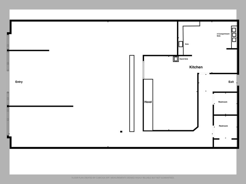
- Second-generation restaurant/cafe space
- Approx. 2,324 SF with efficient existing layout
- Located in a highly desirable, high-demand neighborhood
- Hood/grease trap and key infrastructure in place
Space Availability (1)
Display Rental Rate as
- Space
- Size
- Term
- Rental Rate
- Rent Type
| Space | Size | Term | Rental Rate | Rent Type | ||
| 1st Floor, Ste C | 2,324 SF | 3-5 Years | $32.97 CAD/SF/YR $2.75 CAD/SF/MO $76,621 CAD/YR $6,385 CAD/MO | Triple Net (NNN) |
1st Floor, Ste C
- Lease rate does not include utilities, property expenses or building services
- Fully Built-Out as a Restaurant or Café Space
- Located in-line with other retail
- Central Air Conditioning
- Drop Ceilings
Rent Types
The rent amount and type that the tenant (lessee) will be responsible to pay to the landlord (lessor) throughout the lease term is negotiated prior to both parties signing a lease agreement. The rent type will vary depending upon the services provided. For example, triple net rents are typically lower than full service rents due to additional expenses the tenant is required to pay in addition to the base rent. Contact the listing broker for a full understanding of any associated costs or additional expenses for each rent type.
1. Full Service: A rental rate that includes normal building standard services as provided by the landlord within a base year rental.
2. Double Net (NN): Tenant pays for only two of the building expenses; the landlord and tenant determine the specific expenses prior to signing the lease agreement.
3. Triple Net (NNN): A lease in which the tenant is responsible for all expenses associated with their proportional share of occupancy of the building.
4. Modified Gross: Modified Gross is a general type of lease rate where typically the tenant will be responsible for their proportional share of one or more of the expenses. The landlord will pay the remaining expenses. See the below list of common Modified Gross rental rate structures: 4. Plus All Utilities: A type of Modified Gross Lease where the tenant is responsible for their proportional share of utilities in addition to the rent. 4. Plus Cleaning: A type of Modified Gross Lease where the tenant is responsible for their proportional share of cleaning in addition to the rent. 4. Plus Electric: A type of Modified Gross Lease where the tenant is responsible for their proportional share of the electrical cost in addition to the rent. 4. Plus Electric & Cleaning: A type of Modified Gross Lease where the tenant is responsible for their proportional share of the electrical and cleaning cost in addition to the rent. 4. Plus Utilities and Char: A type of Modified Gross Lease where the tenant is responsible for their proportional share of the utilities and cleaning cost in addition to the rent. 4. Industrial Gross: A type of Modified Gross lease where the tenant pays one or more of the expenses in addition to the rent. The landlord and tenant determine these prior to signing the lease agreement.
5. Tenant Electric: The landlord pays for all services and the tenant is responsible for their usage of lights and electrical outlets in the space they occupy.
6. Negotiable or Upon Request: Used when the leasing contact does not provide the rent or service type.
7. TBD: To be determined; used for buildings for which no rent or service type is known, commonly utilized when the buildings are not yet built.
Select Tenants at 23020 Highland Knolls, Katy, TX 77494
- Tenant
- Description
- US Locations
- Reach
- Cinco Fit
- Tanning Salon
- 1
- -
- Domino’s
- Pizza
- 9,062
- International
- Polished Nails
- Health & Beauty Aids
- 1
- Local
- The Little Gym
- Fitness
- 463
- International
| Tenant | Description | US Locations | Reach |
| Cinco Fit | Tanning Salon | 1 | - |
| Domino’s | Pizza | 9,062 | International |
| Polished Nails | Health & Beauty Aids | 1 | Local |
| The Little Gym | Fitness | 463 | International |
Property Facts
| Total Space Available | 2,324 SF | Gross Leasable Area | 15,145 SF |
| Property Type | Retail | Year Built | 2005 |
| Property Subtype | Storefront | Parking Ratio | 6.6/1,000 SF |
| Total Space Available | 2,324 SF |
| Property Type | Retail |
| Property Subtype | Storefront |
| Gross Leasable Area | 15,145 SF |
| Year Built | 2005 |
| Parking Ratio | 6.6/1,000 SF |
About the Property
Now available: a second-generation restaurant/café opportunity in Cinco Ranch area, most sought-after retail neighborhoods, surrounded by strong residential density, destination dining, and high-performing local retailers. The space offers an ideal layout for a variety of food-and-beverage concepts, with existing restaurant infrastructure in place to help reduce build-out time and upfront costs. Featuring approximately 2,324] SF, the premises includes service counter, kitchen layout, and restrooms, with excellent visibility and strong pedestrian activity along Highland Knolls Dr/Peek intersection. Perfect for cafe, bakery, bistro, fast-casual, juice bar, dessert, or specialty beverage concepts (subject to approvals). **Turnkey potential** with existing hood and grease interceptor.
- Air Conditioning
Nearby Major Retailers
Presented by
23020 Highland Knolls
Hmm, there seems to have been an error sending your message. Please try again.
Thanks! Your message was sent.



