Your email has been sent.
23140 Moakley St 2,310 SF of Office/Medical Space Available in Leonardtown, MD 20650



Highlights
- Located next to St Mary's County Hospital
- Located next to St Mary's Board of Education
- Heart of Leonardtown
All Available Space(1)
Display Rental Rate as
- Space
- Size
- Term
- Rental Rate
- Space Use
- Build-Out
- Available
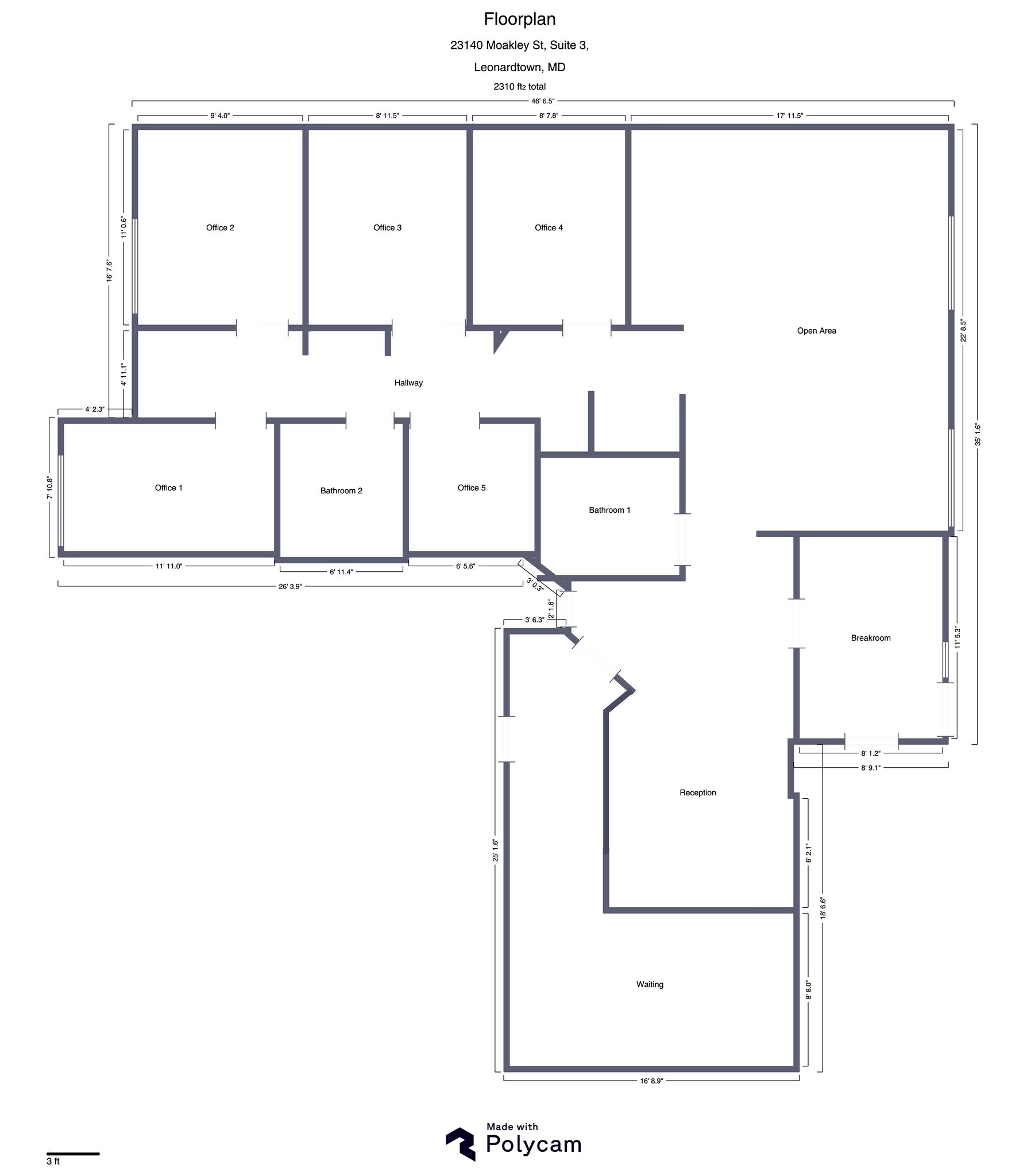
Approximately 2,310 SF medical/dental suite located in an established medical office building in Leonardtown, MD. The space includes a reception area, patient waiting room, two restrooms, breakroom, and five private offices or treatment rooms equipped with sinks. A large open treatment area offers flexibility and can be reconfigured to accommodate additional private rooms. One room is currently configured as a processing room but can be repurposed as needed. The lease is structured as a modified gross lease, with property taxes and CAM included and subject to annual escalations. Water, sewer, and trash are included (subject to normal usage), with tenant responsible for electric, internet, and other utilities. Floor plan available for review.
- Listed rate may not include certain utilities, building services and property expenses
- Mostly Open Floor Plan Layout
- 5 Private Offices
- 3 Workstations
- Elevator Access
- Plug & Play
- Open-Plan
- Hospital Nearby
- Medical Office
- Fully Built-Out as Standard Medical Space
- Fits 20 - 40 People
- 1 Conference Room
- Central Air and Heating
- Private Restrooms
- Natural Light
- Smoke Detector
- Sinks In Offices
| Space | Size | Term | Rental Rate | Space Use | Build-Out | Available |
| 1st Floor, Ste 3 | 2,310 SF | 5-10 Years | $33.56 CAD/SF/YR $2.80 CAD/SF/MO $77,527 CAD/YR $6,461 CAD/MO | Office/Medical | Full Build-Out | Now |
1st Floor, Ste 3
| Size |
| 2,310 SF |
| Term |
| 5-10 Years |
| Rental Rate |
| $33.56 CAD/SF/YR $2.80 CAD/SF/MO $77,527 CAD/YR $6,461 CAD/MO |
| Space Use |
| Office/Medical |
| Build-Out |
| Full Build-Out |
| Available |
| Now |
1st Floor, Ste 3
| Size | 2,310 SF |
| Term | 5-10 Years |
| Rental Rate | $33.56 CAD/SF/YR |
| Space Use | Office/Medical |
| Build-Out | Full Build-Out |
| Available | Now |
Approximately 2,310 SF medical/dental suite located in an established medical office building in Leonardtown, MD. The space includes a reception area, patient waiting room, two restrooms, breakroom, and five private offices or treatment rooms equipped with sinks. A large open treatment area offers flexibility and can be reconfigured to accommodate additional private rooms. One room is currently configured as a processing room but can be repurposed as needed. The lease is structured as a modified gross lease, with property taxes and CAM included and subject to annual escalations. Water, sewer, and trash are included (subject to normal usage), with tenant responsible for electric, internet, and other utilities. Floor plan available for review.
- Listed rate may not include certain utilities, building services and property expenses
- Fully Built-Out as Standard Medical Space
- Mostly Open Floor Plan Layout
- Fits 20 - 40 People
- 5 Private Offices
- 1 Conference Room
- 3 Workstations
- Central Air and Heating
- Elevator Access
- Private Restrooms
- Plug & Play
- Natural Light
- Open-Plan
- Smoke Detector
- Hospital Nearby
- Sinks In Offices
- Medical Office
Property Overview
Located in the heart of Leonardtown, directly across from St. Mary’s County Hospital and the St. Mary’s County Board of Education, this 2,310 SF medical office suite offers an excellent opportunity for medical, dental, or professional users. The space features a reception area, patient waiting room, two restrooms, break room, and a functional layout with five private offices or treatment rooms equipped with sinks, along with a large open treatment area. Ideal for a variety of uses including dental, orthodontics, dermatology, med spa, or wellness services, the suite benefits from strong proximity to the hospital and surrounding medical providers. The lease is structured as a modified gross lease, with property taxes and CAM included and subject to annual escalations. Water, sewer, and trash are included (subject to normal usage), with tenant responsible for electric, internet, and other utilities. Showings are available upon request.
- Signage
- Central Heating
- High Ceilings
- Natural Light
- Partitioned Offices
- Recessed Lighting
- Drop Ceiling
- Air Conditioning
Property Facts
Select Tenants
- Floor
- Tenant Name
- Industry
- 2nd
- Breton Bay Dentistry
- Health Care and Social Assistance
- 1st
- Dr. Joyce Neal, M.D.
- Health Care and Social Assistance
- 2nd
- Hope & Healing Therapy & Wellness Center
- Health Care and Social Assistance
- 1st
- MedStar Health
- Health Care and Social Assistance
- 1st
- St. Mary's Health Center of Greater Baden
- Health Care and Social Assistance
Presented by
Bessie NA Landholdings
23140 Moakley St
Hmm, there seems to have been an error sending your message. Please try again.
Thanks! Your message was sent.


