Log In/Sign Up
Your email has been sent.
2317 Buddy Owens Blvd - 23rd & 3 Mile Rd. (Buddy Owens) 1.47 Acres of Commercial Land Offered at $880,360 CAD in McAllen, TX 78504


Executive Summary
Great commercial property. Highly visible corner. Ready for construction with finished parking and utilities.
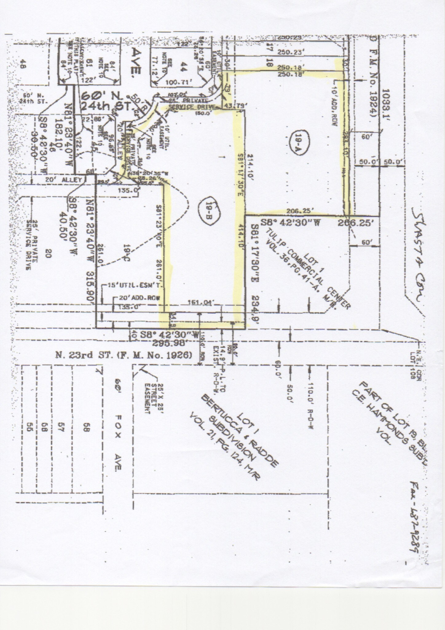
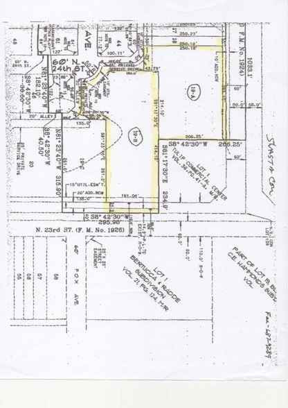
Southwest corner of 23rd and Buddy Owens between Trenton and Nolana
Southwest corner of 23rd and Buddy Owens between Trenton and Nolana
Property Facts
| Price | $880,360 CAD | Property Subtype | Commercial |
| Sale Type | Investment | Proposed Use | |
| No. Lots | 1 | Total Lot Size | 1.47 AC |
| Property Type | Land | Year Built | 2004 |
| Zoning | CO | ||
| Price | $880,360 CAD |
| Sale Type | Investment |
| No. Lots | 1 |
| Property Type | Land |
| Property Subtype | Commercial |
| Proposed Use | |
| Total Lot Size | 1.47 AC |
| Year Built | 2004 |
| Zoning | CO |
1 Lot Available
Lot 19-A
| Price | $880,360 CAD | Lot Size | 1.47 AC |
| Price Per AC | $600,038.91 CAD |
| Price | $880,360 CAD |
| Price Per AC | $600,038.91 CAD |
| Lot Size | 1.47 AC |
Two fully developed lots including parking paving, Parking lighting, landscape, All utilities
1 1
Moderately walkable
60/100
Exceptionally drivable
100/100
Moderately bikeable
60/100
Property Taxes
| Parcel Number | S3020-02-000-019A-00 | Improvements Assessment | $98,724 CAD |
| Land Assessment | $461,837 CAD | Total Assessment | $560,560 CAD |
Property Taxes
Parcel Number
S3020-02-000-019A-00
Land Assessment
$461,837 CAD
Improvements Assessment
$98,724 CAD
Total Assessment
$560,560 CAD
1 of 3
Videos
Matterport 3D Exterior
Matterport 3D Tour
Photos
Street View
Street
Map
1 of 1
Presented by
Titus Development
2317 Buddy Owens Blvd - 23rd & 3 Mile Rd. (Buddy Owens)
Already a member? Log In
Hmm, there seems to have been an error sending your message. Please try again.
Thanks! Your message was sent.
