Your email has been sent.
Features
All Available Space(1)
Display Rental Rate as
- Space
- Size
- Term
- Rental Rate
- Space Use
- Condition
- Available
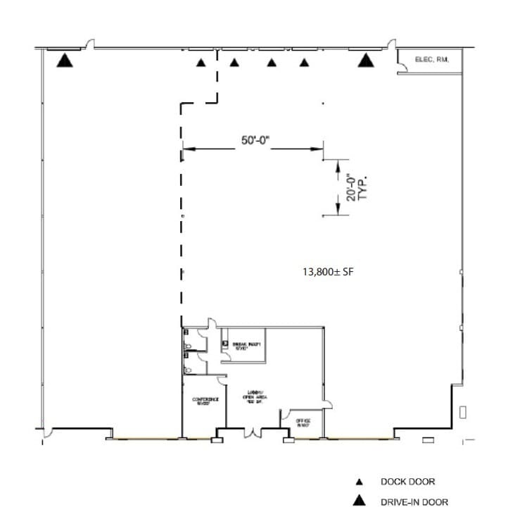
Available for sublease is a versatile industrial space ranging from approximately 13,800 to 21,000 square feet, with flexible options to sublease the entire unit or a portion. The end unit features 4 dock-high doors, 2 grade-level (drive-in) doors, and includes approximately 2,000 square feet of office space, a breakroom, and 2 restrooms. The 13,800± SF portion includes 3 dock doors, 1 drive-in door, 1 restroom, and dedicated office space. The facility is sprinklered at a rate of .375/2,000 GPM and offers robust electrical infrastructure with 800 amps at 277/240 volts. The space is offered at a sublease rate of $1.35 per square foot, industrial gross (I.G.), with the lease expiration date set for November 30, 2029. Ideal for distribution, light manufacturing, or warehouse use, this functional end unit provides efficient loading, office amenities, and a strategic layout to support a range of industrial operations.
- Sublease space available from current tenant
- Includes 2,000 SF of dedicated office space
- 4 Loading Docks
- Listed rate may not include certain utilities, building services and property expenses
- 2 Drive Ins
- Space can be divisible or leased together
| Space | Size | Term | Rental Rate | Space Use | Condition | Available |
| 1st Floor | 13,800-21,000 SF | Nov 2029 | $21.65 CAD/SF/YR $1.80 CAD/SF/MO $454,647 CAD/YR $37,887 CAD/MO | Industrial | Full Build-Out | Now |
1st Floor
| Size |
| 13,800-21,000 SF |
| Term |
| Nov 2029 |
| Rental Rate |
| $21.65 CAD/SF/YR $1.80 CAD/SF/MO $454,647 CAD/YR $37,887 CAD/MO |
| Space Use |
| Industrial |
| Condition |
| Full Build-Out |
| Available |
| Now |
1st Floor
| Size | 13,800-21,000 SF |
| Term | Nov 2029 |
| Rental Rate | $21.65 CAD/SF/YR |
| Space Use | Industrial |
| Condition | Full Build-Out |
| Available | Now |
Available for sublease is a versatile industrial space ranging from approximately 13,800 to 21,000 square feet, with flexible options to sublease the entire unit or a portion. The end unit features 4 dock-high doors, 2 grade-level (drive-in) doors, and includes approximately 2,000 square feet of office space, a breakroom, and 2 restrooms. The 13,800± SF portion includes 3 dock doors, 1 drive-in door, 1 restroom, and dedicated office space. The facility is sprinklered at a rate of .375/2,000 GPM and offers robust electrical infrastructure with 800 amps at 277/240 volts. The space is offered at a sublease rate of $1.35 per square foot, industrial gross (I.G.), with the lease expiration date set for November 30, 2029. Ideal for distribution, light manufacturing, or warehouse use, this functional end unit provides efficient loading, office amenities, and a strategic layout to support a range of industrial operations.
- Sublease space available from current tenant
- Listed rate may not include certain utilities, building services and property expenses
- Includes 2,000 SF of dedicated office space
- 2 Drive Ins
- 4 Loading Docks
- Space can be divisible or leased together
Manufacturing Facility Facts
Select Tenants
- Floor
- Tenant Name
- Industry
- 1st
- BoConcept
- Retailer
Presented by
2340-2380 W Winton Ave
Hmm, there seems to have been an error sending your message. Please try again.
Thanks! Your message was sent.






