Log In/Sign Up
Your email has been sent.
Features
Clear Height
18’
Drive In Bays
7
Standard Parking Spaces
243
All Available Space(1)
Display Rental Rate as
- Space
- Size
- Term
- Rental Rate
- Space Use
- Build-Out
- Available
- Sublease space available from current tenant
- Central Air and Heating
- 2 Drive Ins
| Space | Size | Term | Rental Rate | Space Use | Build-Out | Available |
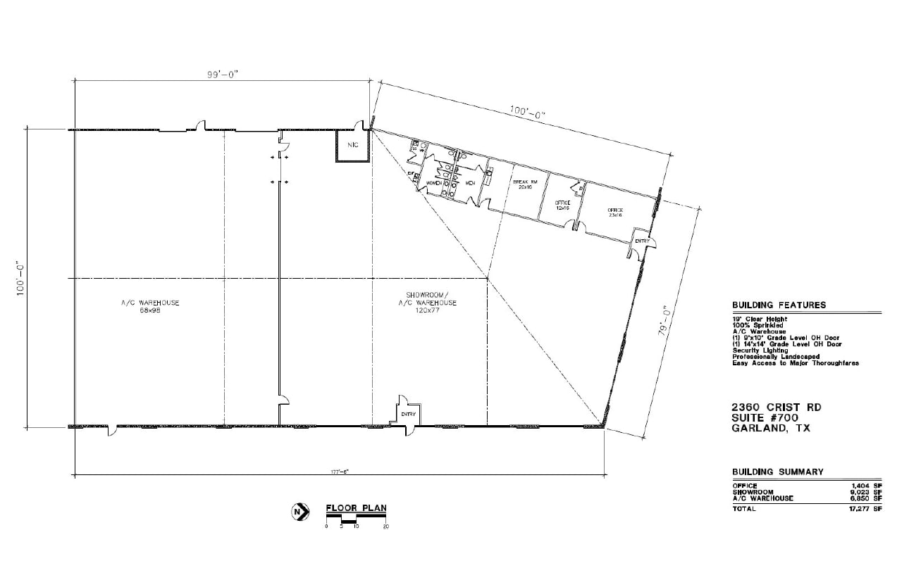
| 1st Floor - 700B | 17,277 SF | Apr 2029 | Upon Request Upon Request Upon Request Upon Request | Flex | Partial Build-Out | Now |
1st Floor - 700B
| Size |
| 17,277 SF |
| Term |
| Apr 2029 |
| Rental Rate |
| Upon Request Upon Request Upon Request Upon Request |
| Space Use |
| Flex |
| Build-Out |
| Partial Build-Out |
| Available |
| Now |
1 of 1
Videos
Matterport 3D Exterior
Matterport 3D Tour
Photos
Street View
Street
Map
1st Floor - 700B
| Size | 17,277 SF |
| Term | Apr 2029 |
| Rental Rate | Upon Request |
| Space Use | Flex |
| Build-Out | Partial Build-Out |
| Available | Now |
- Sublease space available from current tenant
- 2 Drive Ins
- Central Air and Heating
Property Facts
Building Size
74,312 SF
Lot Size
7.32 AC
Year Built
2008
Construction
Masonry
Sprinkler System
ESFR
Zoning
Z109 - Commerical
Select Tenants
- Floor
- Tenant Name
- Industry
- 1st
- CrossFit
- Arts, Entertainment, and Recreation
Fairly walkable
40/100
Exceptionally drivable
100/100
Limited public transit
20/100
Somewhat bikeable
30/100
1 of 5
Videos
Matterport 3D Exterior
Matterport 3D Tour
Photos
Street View
Street
Map
Presented by
Building B | 2360 Crist Rd
Already a member? Log In
Hmm, there seems to have been an error sending your message. Please try again.
Thanks! Your message was sent.






