Log In/Sign Up
Your email has been sent.
Deer Valley West I 23619 N 35th Dr 27,352 SF of Industrial Space Available in Glendale, AZ 85310



FEATURES
Clear Height
20’
Drive In Bays
2
Exterior Dock Doors
2
Levelers
2
Standard Parking Spaces
52
ALL AVAILABLE SPACE(1)
Display Rental Rate as
- SPACE
- SIZE
- TERM
- RENTAL RATE
- SPACE USE
- CONDITION
- AVAILABLE
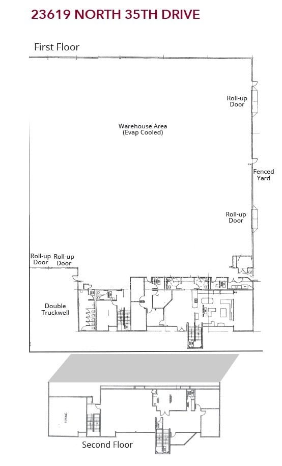
±27,352 SF Building available sitting on a ±59,998 SF Lot sporting 2 docks, 2 grade level doors, 20' clear height, and 800A/3PH/277-480V Power. The property is Zoned CP/BP Phoenix and includes Fire Sprinklers and ±4,778 SF of Office.
- Lease rate does not include utilities, property expenses or building services
- 2 Drive Ins
- 2 Loading Docks
- ±27,352 SF Sitting on a ±59,998 SF Lot
- 800A/3PH/277-480V electric
- Includes 4,778 SF of dedicated office space
- Space is in Excellent Condition
- Private Restrooms
- 2 docks & 2 grade level doors
- Clear Height: 20’
| Space | Size | Term | Rental Rate | Space Use | Condition | Available |
| 1st Floor | 27,352 SF | Negotiable | $20.75 CAD/SF/YR $1.73 CAD/SF/MO $567,573 CAD/YR $47,298 CAD/MO | Industrial | Partial Build-Out | Now |
1st Floor
| Size |
| 27,352 SF |
| Term |
| Negotiable |
| Rental Rate |
| $20.75 CAD/SF/YR $1.73 CAD/SF/MO $567,573 CAD/YR $47,298 CAD/MO |
| Space Use |
| Industrial |
| Condition |
| Partial Build-Out |
| Available |
| Now |
1 of 9
VIDEOS
MATTERPORT 3D EXTERIOR
MATTERPORT 3D TOUR
PHOTOS
STREET VIEW
STREET
MAP
1st Floor
| Size | 27,352 SF |
| Term | Negotiable |
| Rental Rate | $20.75 CAD/SF/YR |
| Space Use | Industrial |
| Condition | Partial Build-Out |
| Available | Now |
±27,352 SF Building available sitting on a ±59,998 SF Lot sporting 2 docks, 2 grade level doors, 20' clear height, and 800A/3PH/277-480V Power. The property is Zoned CP/BP Phoenix and includes Fire Sprinklers and ±4,778 SF of Office.
- Lease rate does not include utilities, property expenses or building services
- Includes 4,778 SF of dedicated office space
- 2 Drive Ins
- Space is in Excellent Condition
- 2 Loading Docks
- Private Restrooms
- ±27,352 SF Sitting on a ±59,998 SF Lot
- 2 docks & 2 grade level doors
- 800A/3PH/277-480V electric
- Clear Height: 20’
WAREHOUSE FACILITY FACTS
Building Size
27,352 SF
Lot Size
1.38 AC
Year Built/Renovated
1991/2010
Construction
Masonry
Power Supply
Amps: 800 Volts: 277-480 Phase: 3
Zoning
CP/BP - Business Park
SELECT TENANTS
- FLOOR
- TENANT NAME
- INDUSTRY
- 1st
- Goodall Wood Creations
- Manufacturing
1 1
1 of 13
VIDEOS
MATTERPORT 3D EXTERIOR
MATTERPORT 3D TOUR
PHOTOS
STREET VIEW
STREET
MAP
1 of 1
Presented by
Deer Valley West I | 23619 N 35th Dr
Already a member? Log In
Hmm, there seems to have been an error sending your message. Please try again.
Thanks! Your message was sent.



