Your email has been sent.
SUBLEASE HIGHLIGHTS
- High-image site with excellent visibility and professional curb appeal.
- Minutes from I-880 and Hwy 92, streamlining regional distribution and logistics.
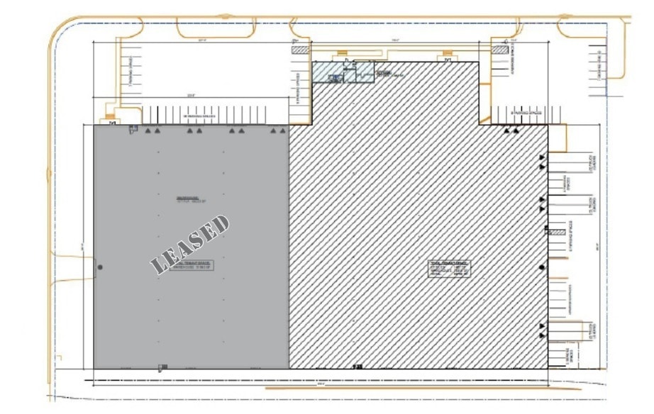
- 80,000± SF available, divisible to 40,000± SF for flexible occupancy.
- Call listing brokers for more information.
FEATURES
ALL AVAILABLE SPACE(1)
Display Rental Rate as
- SPACE
- SIZE
- TERM
- RENTAL RATE
- SPACE USE
- CONDITION
- AVAILABLE
This high-image industrial facility offers 8 docks, 4 rail doors, and one drive-in door, ideal for logistics and distribution operations. With 26'–28' clear heights, heavy power, and ESFR sprinklers, the building is well-equipped for modern industrial needs. Located on a prominent corner with excellent visibility, it provides convenient access to I-880 and Highway 92, enhancing transportation efficiency.
- Sublease space available from current tenant
- Includes 1,467 SF of dedicated office space
- Space is in Excellent Condition
- Private Restrooms
- Port of Oakland: 17.2 Miles
- Call listing brokers for more information
- Listed rate may not include certain utilities, building services and property expenses
- 1 Drive Bay
- 8 Loading Docks
- Close Proximity to I-880 & Hwy 92
- SFO Airport: 20 Miles
| Space | Size | Term | Rental Rate | Space Use | Condition | Available |
| 1st Floor - 2376 | 40,000-80,000 SF | Sep 2026 | $18.18 CAD/SF/YR $1.52 CAD/SF/MO $1,454,439 CAD/YR $121,203 CAD/MO | Industrial | Full Build-Out | Now |
1st Floor - 2376
| Size |
| 40,000-80,000 SF |
| Term |
| Sep 2026 |
| Rental Rate |
| $18.18 CAD/SF/YR $1.52 CAD/SF/MO $1,454,439 CAD/YR $121,203 CAD/MO |
| Space Use |
| Industrial |
| Condition |
| Full Build-Out |
| Available |
| Now |
1st Floor - 2376
| Size | 40,000-80,000 SF |
| Term | Sep 2026 |
| Rental Rate | $18.18 CAD/SF/YR |
| Space Use | Industrial |
| Condition | Full Build-Out |
| Available | Now |
This high-image industrial facility offers 8 docks, 4 rail doors, and one drive-in door, ideal for logistics and distribution operations. With 26'–28' clear heights, heavy power, and ESFR sprinklers, the building is well-equipped for modern industrial needs. Located on a prominent corner with excellent visibility, it provides convenient access to I-880 and Highway 92, enhancing transportation efficiency.
- Sublease space available from current tenant
- Listed rate may not include certain utilities, building services and property expenses
- Includes 1,467 SF of dedicated office space
- 1 Drive Bay
- Space is in Excellent Condition
- 8 Loading Docks
- Private Restrooms
- Close Proximity to I-880 & Hwy 92
- Port of Oakland: 17.2 Miles
- SFO Airport: 20 Miles
- Call listing brokers for more information
PROPERTY OVERVIEW
Discover an exceptional opportunity to lease up to 80,000± square feet of overflow or dead storage warehouse space, divisible to 40,000± SF, in a high-image corner location. This modern facility features robust infrastructure, including heavy power, ESFR sprinklers, and multiple loading options, making it ideal for logistics, distribution, or industrial users. Benefit from immediate availability, competitive sublease rates, and proximity to major transportation corridors (I-880 & Hwy 92), ensuring seamless access throughout the Bay Area.
DISTRIBUTION FACILITY FACTS
Presented by
2376 Davis Ave
Hmm, there seems to have been an error sending your message. Please try again.
Thanks! Your message was sent.







