Your email has been sent.
Oak Ridge Business Center 2425 La Mirada Dr 29,475 SF of Industrial Space Available in Vista, CA 92081



Features
All Available Space(1)
Display Rental Rate as
- Space
- Size
- Term
- Rental Rate
- Space Use
- Condition
- Available
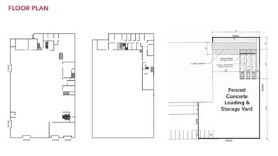
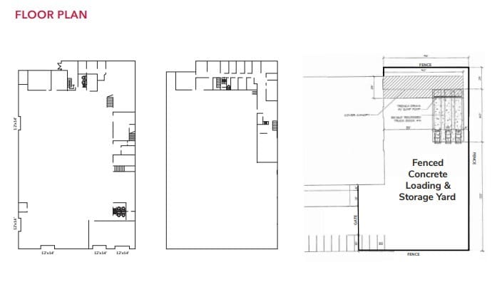
29,475 SF Freestanding, fully-sprinklered manufacturing/distribution building on 1.71 acres 6,725 SF Office with approximately 1,600 SF convertible into warehouse mezzanine storage 24’ Clear height All concrete large, secure, fenced yard, loading area and parking lot Highly functional covered, sprinklered, exterior loading dock with 3 dock high truck positions provides bonus shipping/receiving/staging area 5 Grade level doors 1,600 Amps, 120/208 volts, 3-phase power Cummins/Ford 2012 85kW back-up generator 55 Parking stalls (expandable) with additional street parking Great North County location in the Oakridge Business Center Off Palomar Airport Rd. in close proximity to Highway 78 and Interstate 5
- Lease rate does not include utilities, property expenses or building services
- 3 Loading Docks
- Includes 6,725 SF of dedicated office space
- Central Air Conditioning
| Space | Size | Term | Rental Rate | Space Use | Condition | Available |
| 1st Floor | 29,475 SF | Negotiable | $21.36 CAD/SF/YR $1.78 CAD/SF/MO $629,512 CAD/YR $52,459 CAD/MO | Industrial | Partial Build-Out | 60 Days |
1st Floor
| Size |
| 29,475 SF |
| Term |
| Negotiable |
| Rental Rate |
| $21.36 CAD/SF/YR $1.78 CAD/SF/MO $629,512 CAD/YR $52,459 CAD/MO |
| Space Use |
| Industrial |
| Condition |
| Partial Build-Out |
| Available |
| 60 Days |
1st Floor
| Size | 29,475 SF |
| Term | Negotiable |
| Rental Rate | $21.36 CAD/SF/YR |
| Space Use | Industrial |
| Condition | Partial Build-Out |
| Available | 60 Days |
29,475 SF Freestanding, fully-sprinklered manufacturing/distribution building on 1.71 acres 6,725 SF Office with approximately 1,600 SF convertible into warehouse mezzanine storage 24’ Clear height All concrete large, secure, fenced yard, loading area and parking lot Highly functional covered, sprinklered, exterior loading dock with 3 dock high truck positions provides bonus shipping/receiving/staging area 5 Grade level doors 1,600 Amps, 120/208 volts, 3-phase power Cummins/Ford 2012 85kW back-up generator 55 Parking stalls (expandable) with additional street parking Great North County location in the Oakridge Business Center Off Palomar Airport Rd. in close proximity to Highway 78 and Interstate 5
- Lease rate does not include utilities, property expenses or building services
- Includes 6,725 SF of dedicated office space
- 3 Loading Docks
- Central Air Conditioning
Manufacturing Facility Facts
Presented by
Oak Ridge Business Center | 2425 La Mirada Dr
Hmm, there seems to have been an error sending your message. Please try again.
Thanks! Your message was sent.


