Log In/Sign Up
Your email has been sent.
2425 Lafayette Rd 4,977 SF 18% Leased Office Building Portsmouth, NH 03801 $1,303,856 CAD ($261.98 CAD/SF)



Investment Highlights
- Incredible Location on Lafayette / US-1
- Vacant at closing - ready to renovate or use immediately
- 4 Condos could be kept separate or reconfigured
Executive Summary
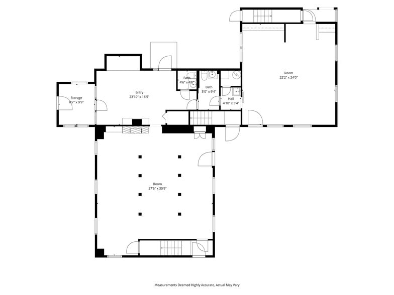
Call or Text Travis @ 603-812-8263 for more info! Don't miss out on this new price on a great mixed use opportunity! Located across the street from Starbucks, Vida Cantina, McKinnon's and the rest of the businesses and apartment buildings at Portsmouth Green. Currently deeded as 4 individual condos, the seller owns all 4 units and is selling together, so the current setup and usage can change, or the association could be dissolved. Gateway mixed-use zoning is very flexible and allows for a multitude of uses, including Live/Work units, professional office, retail, and more See Zoning Ordinance for all approved and conditional uses. Currently vacant and ready for your business, investment, and vision. See attached floor plans to see how you could use the spaces as-is, or change the configuration to suit your needs.
Property Facts
Sale Type
Investment or Owner User
Property Type
Office
Property Subtype
Building Size
4,977 SF
Building Class
C
Year Built
1985
Price
$1,303,856 CAD
Price Per SF
$261.98 CAD
Percent Leased
18%
Building Height
2 Stories
Typical Floor Size
2,822 SF
Building FAR
0.44
Lot Size
0.26 AC
Zoning
G1 - Mixed Use Gateway 1 Zoning - https://files.portsmouthnh.gov/files/planning/ZoningOrd-250505+ADOPTED.pdf
Parking
10 Spaces (2.01 Spaces per 1,000 SF Leased)
Major Tenants Click Here to Access
- Tenant
- Industry
- SF Occupied
- Rent/SF
- Lease Type
- Lease End
- Abby's Cab
- Transportation and Warehousing
- -
-
$9.99
-
Lorem Ipsum
-
Jan 0000
| Tenant | Industry | SF Occupied | Rent/SF | Lease Type | Lease End | |
| Abby's Cab | Transportation and Warehousing | - | $9.99 | Lorem Ipsum | Jan 0000 |
1 1
Fairly walkable
40/100
Exceptionally drivable
100/100
Somewhat bikeable
30/100
Property Taxes
| Parcel Number | PRSM-000272-000008-000001 | Improvements Assessment | $430,272 CAD |
| Land Assessment | $0 CAD | Total Assessment | $430,272 CAD |
Property Taxes
Parcel Number
PRSM-000272-000008-000001
Land Assessment
$0 CAD
Improvements Assessment
$430,272 CAD
Total Assessment
$430,272 CAD
1 of 26
Videos
Matterport 3D Exterior
Matterport 3D Tour
Photos
Street View
Street
Map
1 of 1
Presented by
2425 Lafayette Rd
Already a member? Log In
Hmm, there seems to have been an error sending your message. Please try again.
Thanks! Your message was sent.

