Your email has been sent.
Highlights
- Newly renovated office building with entire second floor available for lease.
- Full-service lease at $2.50 per SF/month.
- Walkable to Torrance Crossroads and a short drive to Del Amo Fashion Center.
- Suites range from 1,414 to 3,527 SF, offering flexible configurations.
- Located on a quiet cul-de-sac near Crenshaw Boulevard with easy access to I-405 and PCH.
- Immediate availability for professional and creative office users.
All Available Spaces(2)
Display Rental Rate as
- Space
- Size
- Term
- Rental Rate
- Space Use
- Build-Out
- Available
2430 Amsler Street offers a newly renovated office environment in a prime Torrance location, ideal for businesses seeking a professional setting with excellent accessibility. The property features the entire second floor available for lease, with suites ranging from 1,414 to 3,527 square feet. The building is situated on a quiet cul-de-sac just off Crenshaw Boulevard, providing a balance of privacy and convenience. Tenants will enjoy proximity to Torrance Crossroads, Del Amo Fashion Center, and a variety of retail and dining options, creating a vibrant and convenient work environment. The property’s location offers easy access to major transportation routes, including the I-405 and Pacific Coast Highway, ensuring seamless connectivity throughout the South Bay and Greater Los Angeles area. With a full-service lease structure and modern upgrades, this property is well-suited for professional service firms, creative offices, or regional business operations. Immediate availability allows businesses to establish their presence quickly in one of Torrance’s most desirable office submarkets
- Rate includes utilities, building services and property expenses
- Open Floor Plan Layout
- Immediate availability
- Located on a quiet cul-de-sac
- Suites range from 1,414 to 3,527 SF
- Fully Built-Out as Standard Office
- Can be combined with additional space(s) for up to 3,527 SF of adjacent space
- Walkable to Torrance Crossroads
- Full-service lease at $2.50
- Newly renovated office
2430 Amsler Street offers a newly renovated office environment in a prime Torrance location, ideal for businesses seeking a professional setting with excellent accessibility. The property features the entire second floor available for lease, with suites ranging from 1,414 to 3,527 square feet. The building is situated on a quiet cul-de-sac just off Crenshaw Boulevard, providing a balance of privacy and convenience. Tenants will enjoy proximity to Torrance Crossroads, Del Amo Fashion Center, and a variety of retail and dining options, creating a vibrant and convenient work environment. The property’s location offers easy access to major transportation routes, including the I-405 and Pacific Coast Highway, ensuring seamless connectivity throughout the South Bay and Greater Los Angeles area. With a full-service lease structure and modern upgrades, this property is well-suited for professional service firms, creative offices, or regional business operations. Immediate availability allows businesses to establish their presence quickly in one of Torrance’s most desirable office submarkets.
- Rate includes utilities, building services and property expenses
- Open Floor Plan Layout
- Newly renovated office
- Full-service lease at $2.50
- Walkable to Torrance Crossroads
- Fully Built-Out as Standard Office
- Can be combined with additional space(s) for up to 3,527 SF of adjacent space
- Suites range from 1,414 to 3,527 SF
- Located on a quiet cul-de-sac
- Immediate availability
| Space | Size | Term | Rental Rate | Space Use | Build-Out | Available |
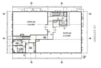
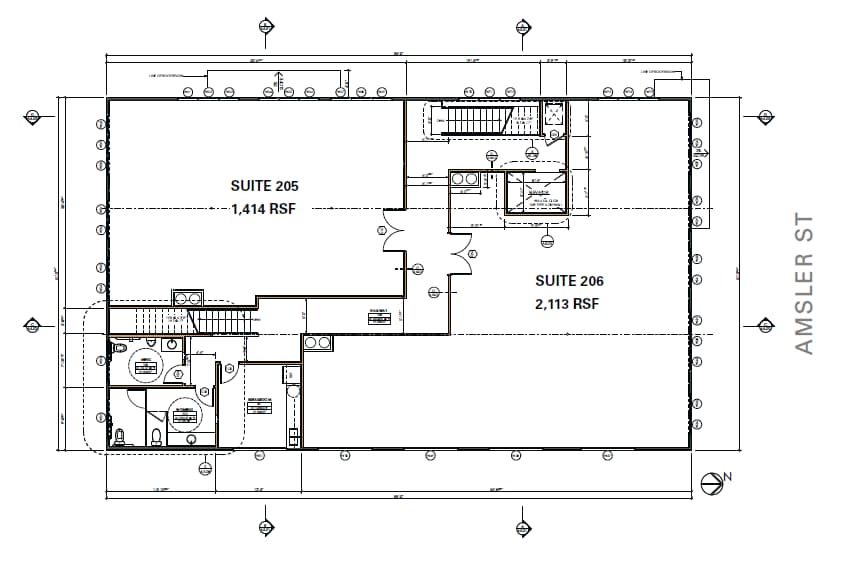
| 2nd Floor, Ste 205 | 1,414 SF | Negotiable | $41.05 CAD/SF/YR $3.42 CAD/SF/MO $58,052 CAD/YR $4,838 CAD/MO | Office | Full Build-Out | Now |
| 2nd Floor, Ste 206 | 2,113 SF | Negotiable | $41.05 CAD/SF/YR $3.42 CAD/SF/MO $86,749 CAD/YR $7,229 CAD/MO | Office | Full Build-Out | Now |
2nd Floor, Ste 205
| Size |
| 1,414 SF |
| Term |
| Negotiable |
| Rental Rate |
| $41.05 CAD/SF/YR $3.42 CAD/SF/MO $58,052 CAD/YR $4,838 CAD/MO |
| Space Use |
| Office |
| Build-Out |
| Full Build-Out |
| Available |
| Now |
2nd Floor, Ste 206
| Size |
| 2,113 SF |
| Term |
| Negotiable |
| Rental Rate |
| $41.05 CAD/SF/YR $3.42 CAD/SF/MO $86,749 CAD/YR $7,229 CAD/MO |
| Space Use |
| Office |
| Build-Out |
| Full Build-Out |
| Available |
| Now |
2nd Floor, Ste 205
| Size | 1,414 SF |
| Term | Negotiable |
| Rental Rate | $41.05 CAD/SF/YR |
| Space Use | Office |
| Build-Out | Full Build-Out |
| Available | Now |
2430 Amsler Street offers a newly renovated office environment in a prime Torrance location, ideal for businesses seeking a professional setting with excellent accessibility. The property features the entire second floor available for lease, with suites ranging from 1,414 to 3,527 square feet. The building is situated on a quiet cul-de-sac just off Crenshaw Boulevard, providing a balance of privacy and convenience. Tenants will enjoy proximity to Torrance Crossroads, Del Amo Fashion Center, and a variety of retail and dining options, creating a vibrant and convenient work environment. The property’s location offers easy access to major transportation routes, including the I-405 and Pacific Coast Highway, ensuring seamless connectivity throughout the South Bay and Greater Los Angeles area. With a full-service lease structure and modern upgrades, this property is well-suited for professional service firms, creative offices, or regional business operations. Immediate availability allows businesses to establish their presence quickly in one of Torrance’s most desirable office submarkets
- Rate includes utilities, building services and property expenses
- Fully Built-Out as Standard Office
- Open Floor Plan Layout
- Can be combined with additional space(s) for up to 3,527 SF of adjacent space
- Immediate availability
- Walkable to Torrance Crossroads
- Located on a quiet cul-de-sac
- Full-service lease at $2.50
- Suites range from 1,414 to 3,527 SF
- Newly renovated office
2nd Floor, Ste 206
| Size | 2,113 SF |
| Term | Negotiable |
| Rental Rate | $41.05 CAD/SF/YR |
| Space Use | Office |
| Build-Out | Full Build-Out |
| Available | Now |
2430 Amsler Street offers a newly renovated office environment in a prime Torrance location, ideal for businesses seeking a professional setting with excellent accessibility. The property features the entire second floor available for lease, with suites ranging from 1,414 to 3,527 square feet. The building is situated on a quiet cul-de-sac just off Crenshaw Boulevard, providing a balance of privacy and convenience. Tenants will enjoy proximity to Torrance Crossroads, Del Amo Fashion Center, and a variety of retail and dining options, creating a vibrant and convenient work environment. The property’s location offers easy access to major transportation routes, including the I-405 and Pacific Coast Highway, ensuring seamless connectivity throughout the South Bay and Greater Los Angeles area. With a full-service lease structure and modern upgrades, this property is well-suited for professional service firms, creative offices, or regional business operations. Immediate availability allows businesses to establish their presence quickly in one of Torrance’s most desirable office submarkets.
- Rate includes utilities, building services and property expenses
- Fully Built-Out as Standard Office
- Open Floor Plan Layout
- Can be combined with additional space(s) for up to 3,527 SF of adjacent space
- Newly renovated office
- Suites range from 1,414 to 3,527 SF
- Full-service lease at $2.50
- Located on a quiet cul-de-sac
- Walkable to Torrance Crossroads
- Immediate availability
Property Overview
The newly renovated office property is located near the intersection of Crenshaw Blvd and Amsler Street in a very rapidly developing commercial area of the City of Torrance, CA. The property is on a less traveled street from busy Crenshaw Boulevard (a major commercial artery). Many amenities are withing walking distance including McDonald’s, Chick-fil-A, Aldi. Directly across the street is the Torrance Crossroads Shopping Center such as IHOP, In-N-Out Burger, Crumbl Cookies, Wingstop, L&L Hawaiian Barbecue, Jamba Juice, Ginza Sushi, Gen Korean BBQ House, Jersey Mike’s Subs, Vons, Sam’s Club, Petco, HomeGoods, and CorePower Yoga.
- Fenced Lot
Property Facts
Presented by
2430 Amsler St
Hmm, there seems to have been an error sending your message. Please try again.
Thanks! Your message was sent.





