Your email has been sent.
Highlights
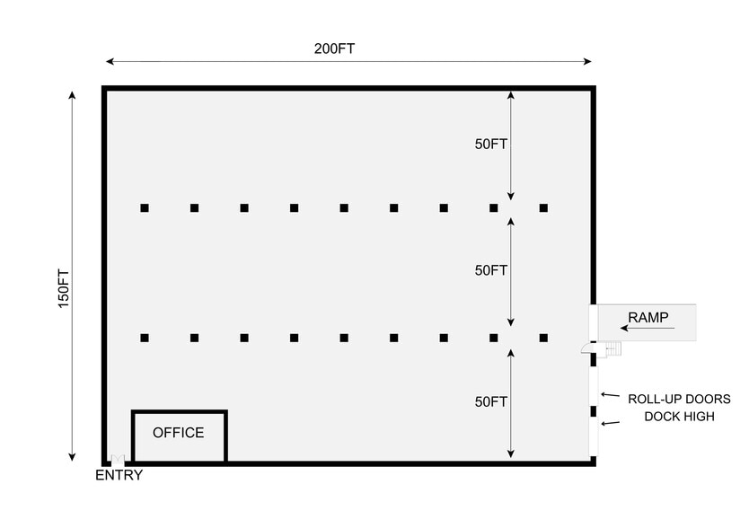
- 2 dock-high doors
- Approx. 30 parking spaces
- Ideal for distribution, logistics, or manufacturing
- 1 loading dock with ramp
- IND-2 / IND-3 zoning
Features
All Available Space(1)
Display Rental Rate as
- Space
- Size
- Term
- Rental Rate
- Space Use
- Build-Out
- Available
- Lease rate does not include certain property expenses
- 3 Loading Docks
| Space | Size | Term | Rental Rate | Space Use | Build-Out | Available |
| 1st Floor | 10,000-30,000 SF | 5 Years | $16.37 CAD/SF/YR $1.36 CAD/SF/MO $491,126 CAD/YR $40,927 CAD/MO | Industrial | - | Now |
1st Floor
| Size |
| 10,000-30,000 SF |
| Term |
| 5 Years |
| Rental Rate |
| $16.37 CAD/SF/YR $1.36 CAD/SF/MO $491,126 CAD/YR $40,927 CAD/MO |
| Space Use |
| Industrial |
| Build-Out |
| - |
| Available |
| Now |
1st Floor
| Size | 10,000-30,000 SF |
| Term | 5 Years |
| Rental Rate | $16.37 CAD/SF/YR |
| Space Use | Industrial |
| Build-Out | - |
| Available | Now |
- Lease rate does not include certain property expenses
- 3 Loading Docks
Property Overview
Now offering up to 30,000 sf of contiguous industrial warehouse space for lease, divisible by minimum 10,000 sf. The facility features 17-foot clear ceilings, extensive power (Two services: 1200 AMP / 277 / 480V 3-Phase and 80), and multiple dock-high loading options to accommodate various operational needs. Loading configurations include two 10' x 12' dock-high doors and an additional 9' x 9' dock door with ramp in the central portion of the building. The space is located well in Orlando’s industrial corridor near the Taft District. Located just off Exchange Drive and Sand Lake Road, the property provides excellent connectivity to major highways, transportation corridors, and surrounding industrial hubs, making it ideal for logistics-focused users or businesses requiring flexible loading and warehousing infrastructure. The warehouse space has access to ~ 40+ parking spaces with private use to the southern driveway of the building (see images). This is a strong leasing opportunity for users seeking well-located space with functional layout and immediate access to Central Florida’s commercial infrastructure. Contact the listing agent for further details or to schedule a tour.
Warehouse Facility Facts
Presented by
2441 Viscount Row
Hmm, there seems to have been an error sending your message. Please try again.
Thanks! Your message was sent.





