Log In/Sign Up
Your email has been sent.
Highlights
- 10 minutes west of US-10 and I-75 interchange.
- 3 miles East of Dow Chemical on Salzburg.
Features
Clear Height
32’
Drive In Bays
3
Standard Parking Spaces
50
All Available Space(1)
Display Rental Rate as
- Space
- Size
- Term
- Rental Rate
- Space Use
- Condition
- Available
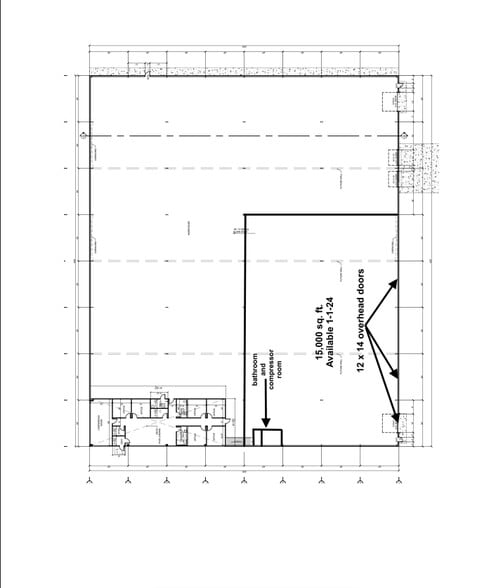
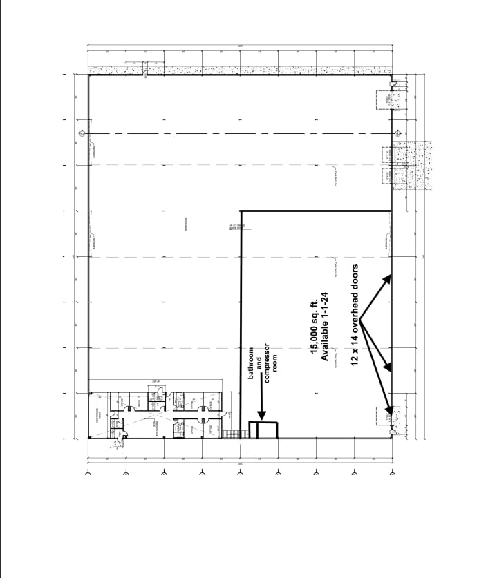
Shop with compressor room.
- Lease rate does not include utilities, property expenses or building services
- Reception Area
- Security System
- Central Air and Heating
- Private Restrooms
- Yard
| Space | Size | Term | Rental Rate | Space Use | Condition | Available |
| 1st Floor | 15,000 SF | Negotiable | $10.25 CAD/SF/YR $0.85 CAD/SF/MO $153,793 CAD/YR $12,816 CAD/MO | Industrial | Full Build-Out | Now |
1st Floor
| Size |
| 15,000 SF |
| Term |
| Negotiable |
| Rental Rate |
| $10.25 CAD/SF/YR $0.85 CAD/SF/MO $153,793 CAD/YR $12,816 CAD/MO |
| Space Use |
| Industrial |
| Condition |
| Full Build-Out |
| Available |
| Now |
1st Floor
| Size | 15,000 SF |
| Term | Negotiable |
| Rental Rate | $10.25 CAD/SF/YR |
| Space Use | Industrial |
| Condition | Full Build-Out |
| Available | Now |
Shop with compressor room.
- Lease rate does not include utilities, property expenses or building services
- Central Air and Heating
- Reception Area
- Private Restrooms
- Security System
- Yard
Property Overview
Great Industrial park location, 1 mile south of US-10 and M-47 interchange.
Distribution Facility Facts
Building Size
48,000 SF
Lot Size
39.70 AC
Year Built
2017
Power Supply
Volts: 480 Phase: 3
Zoning
Industrial - Industrial Zoned District
1 of 3
Videos
Matterport 3D Exterior
Matterport 3D Tour
Photos
Street View
Street
Map
Presented by
2443 Salzburg Rd
Already a member? Log In
Hmm, there seems to have been an error sending your message. Please try again.
Thanks! Your message was sent.



