Your email has been sent.
Some information has been automatically translated.
Investment Highlights
- Localisation stratégique et dynamique
- Bien desservi par plusieurs lignes de métro, de bus et la Gare du Nord
- A proximité des quartiers animés de République et Gare de l'Est
- Espaces extérieurs privatifs
Executive Summary
This standalone period building features a private street entrance, providing excellent visibility and independence for businesses. Access is secured with a digital code, ensuring the safety of occupants. The building is heated via a centralised hot water system, maintaining a comfortable temperature throughout the year. This property combines the charm of a historic structure with practical features, creating a pleasant working environment. The property is located in the 10th arrondissement of Paris. It enjoys a strategic and vibrant location, close to the bustling areas of République and Gare de l'Est. This district is well-connected by several metro and bus lines, as well as Gare du Nord, offering easy access to all of Paris and key business hubs. Surrounded by shops, restaurants, and services, this location provides a dynamic and convenient working environment for businesses seeking accessibility and visibility.
8 Units Available
| Unit Size | 258 SF | Sale Type | Owner User |
| Condo Use | Office |
| Unit Size | 258 SF |
| Condo Use | Office |
| Sale Type | Owner User |
Description
Situé au 247 rue du Faubourg Saint-Martin, dans le 10e arrondissement de Paris, cet ensemble de bureaux est proposé à la location en plusieurs niveaux, avec une organisation plug & play idéale pour un utilisateur unique recherchant des espaces opérationnels immédiatement exploitables. L’ensemble se répartit sur plusieurs étages, du sous-sol au 3e étage, et bénéficie d’une double adresse avec le 6 bis rue Chaudron.
Entièrement rénovés avec des matériaux de qualité, les bureaux allient élégance industrielle et confort moderne : belle hauteur sous plafond (4 m), climatisation réversible, pavés de verre éclairant le sous-sol, verrière coupe-feu avec système de désenfumage, et espaces extérieurs privatifs (patio d’environ 10 m² au rez-de-chaussée et terrasse de 8 m² au 2e étage).
Les locaux sont calmes, climatisés, et disposent d’un câblage informatique de catégorie 6, de la fibre optique, d’un ascenseur, d’un double accès privatif, et d’un espace archives en sous-sol (env. 14 m²). Le bail est de type 3-6-9 ans avec fiscalité TVA, indexation ILAT, et paiement trimestriel d’avance. La taxe foncière est de 17,26 €/m²/an. Honoraires à la charge du preneur.
Sale Notes
A la vente des surfaces de bureaux entièrement rénovés avec des matériaux haut de gamme de style industriel .Ces bureaux offrent un cadre de travail exceptionnel grâce à un environnement alliant confort, design et fonctionnalité.
Intérieur
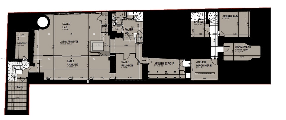
Plan
Plan
Plan
Plan
Intérieur
Intérieur
Intérieur
Intérieur
Intérieur
Intérieur
| Unit Size | 2,238 SF | Sale Type | Owner User |
| Condo Use | Office |
| Unit Size | 2,238 SF |
| Condo Use | Office |
| Sale Type | Owner User |
Description
Situé au 247 rue du Faubourg Saint-Martin, dans le 10e arrondissement de Paris, cet ensemble de bureaux est proposé à la location en plusieurs niveaux, avec une organisation plug & play idéale pour un utilisateur unique recherchant des espaces opérationnels immédiatement exploitables. L’ensemble se répartit sur plusieurs étages, du sous-sol au 3e étage, et bénéficie d’une double adresse avec le 6 bis rue Chaudron.
Entièrement rénovés avec des matériaux de qualité, les bureaux allient élégance industrielle et confort moderne : belle hauteur sous plafond (4 m), climatisation réversible, pavés de verre éclairant le sous-sol, verrière coupe-feu avec système de désenfumage, et espaces extérieurs privatifs (patio d’environ 10 m² au rez-de-chaussée et terrasse de 8 m² au 2e étage).
Les locaux sont calmes, climatisés, et disposent d’un câblage informatique de catégorie 6, de la fibre optique, d’un ascenseur, d’un double accès privatif, et d’un espace archives en sous-sol (env. 14 m²). Le bail est de type 3-6-9 ans avec fiscalité TVA, indexation ILAT, et paiement trimestriel d’avance. La taxe foncière est de 17,26 €/m²/an. Honoraires à la charge du preneur.
Sale Notes
A la vente des surfaces de bureaux entièrement rénovés avec des matériaux haut de gamme de style industriel .Ces bureaux offrent un cadre de travail exceptionnel grâce à un environnement alliant confort, design et fonctionnalité.
Intérieur
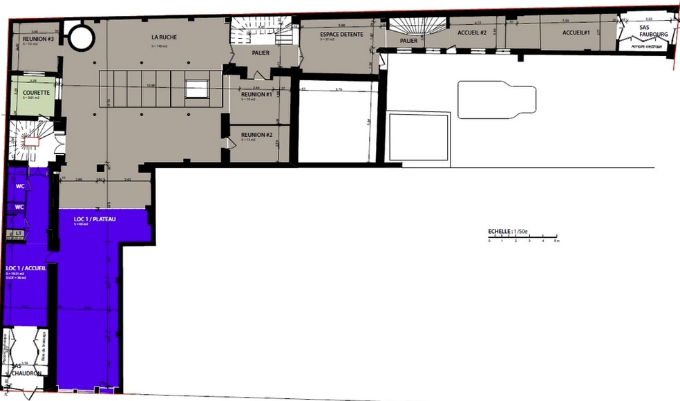
Plan
Plan
Plan
Plan
Intérieur
Intérieur
Intérieur
Intérieur
Intérieur
Intérieur
| Unit Size | 1,582 SF | Sale Type | Owner User |
| Condo Use | Office |
| Unit Size | 1,582 SF |
| Condo Use | Office |
| Sale Type | Owner User |
Description
Situé au 247 rue du Faubourg Saint-Martin, dans le 10e arrondissement de Paris, cet ensemble de bureaux est proposé à la location en plusieurs niveaux, avec une organisation plug & play idéale pour un utilisateur unique recherchant des espaces opérationnels immédiatement exploitables. L’ensemble se répartit sur plusieurs étages, du sous-sol au 3e étage, et bénéficie d’une double adresse avec le 6 bis rue Chaudron.
Entièrement rénovés avec des matériaux de qualité, les bureaux allient élégance industrielle et confort moderne : belle hauteur sous plafond (4 m), climatisation réversible, pavés de verre éclairant le sous-sol, verrière coupe-feu avec système de désenfumage, et espaces extérieurs privatifs (patio d’environ 10 m² au rez-de-chaussée et terrasse de 8 m² au 2e étage).
Les locaux sont calmes, climatisés, et disposent d’un câblage informatique de catégorie 6, de la fibre optique, d’un ascenseur, d’un double accès privatif, et d’un espace archives en sous-sol (env. 14 m²). Le bail est de type 3-6-9 ans avec fiscalité TVA, indexation ILAT, et paiement trimestriel d’avance. La taxe foncière est de 17,26 €/m²/an. Honoraires à la charge du preneur.
Sale Notes
A la vente des surfaces de bureaux entièrement rénovés avec des matériaux haut de gamme de style industriel .Ces bureaux offrent un cadre de travail exceptionnel grâce à un environnement alliant confort, design et fonctionnalité.
Intérieur
Plan
Plan
Plan
Plan
Intérieur
Intérieur
Intérieur
Intérieur
Intérieur
Intérieur
| Unit Size | 2,077 SF | Sale Type | Owner User |
| Condo Use | Office |
| Unit Size | 2,077 SF |
| Condo Use | Office |
| Sale Type | Owner User |
Description
Situé au 247 rue du Faubourg Saint-Martin, dans le 10e arrondissement de Paris, cet ensemble de bureaux est proposé à la location en plusieurs niveaux, avec une organisation plug & play idéale pour un utilisateur unique recherchant des espaces opérationnels immédiatement exploitables. L’ensemble se répartit sur plusieurs étages, du sous-sol au 3e étage, et bénéficie d’une double adresse avec le 6 bis rue Chaudron.
Entièrement rénovés avec des matériaux de qualité, les bureaux allient élégance industrielle et confort moderne : belle hauteur sous plafond (4 m), climatisation réversible, pavés de verre éclairant le sous-sol, verrière coupe-feu avec système de désenfumage, et espaces extérieurs privatifs (patio d’environ 10 m² au rez-de-chaussée et terrasse de 8 m² au 2e étage).
Les locaux sont calmes, climatisés, et disposent d’un câblage informatique de catégorie 6, de la fibre optique, d’un ascenseur, d’un double accès privatif, et d’un espace archives en sous-sol (env. 14 m²). Le bail est de type 3-6-9 ans avec fiscalité TVA, indexation ILAT, et paiement trimestriel d’avance. La taxe foncière est de 17,26 €/m²/an. Honoraires à la charge du preneur.
Sale Notes
A la vente des surfaces de bureaux entièrement rénovés avec des matériaux haut de gamme de style industriel .Ces bureaux offrent un cadre de travail exceptionnel grâce à un environnement alliant confort, design et fonctionnalité.
Intérieur
Plan
Plan
Plan
Plan
Intérieur
Intérieur
Intérieur
Intérieur
Intérieur
Intérieur
| Unit Size | 548 SF | Sale Type | Owner User |
| Condo Use | Office |
| Unit Size | 548 SF |
| Condo Use | Office |
| Sale Type | Owner User |
Description
Situé au 247 rue du Faubourg Saint-Martin, dans le 10e arrondissement de Paris, cet ensemble de bureaux est proposé à la location en plusieurs niveaux, avec une organisation plug & play idéale pour un utilisateur unique recherchant des espaces opérationnels immédiatement exploitables. L’ensemble se répartit sur plusieurs étages, du sous-sol au 3e étage, et bénéficie d’une double adresse avec le 6 bis rue Chaudron.
Entièrement rénovés avec des matériaux de qualité, les bureaux allient élégance industrielle et confort moderne : belle hauteur sous plafond (4 m), climatisation réversible, pavés de verre éclairant le sous-sol, verrière coupe-feu avec système de désenfumage, et espaces extérieurs privatifs (patio d’environ 10 m² au rez-de-chaussée et terrasse de 8 m² au 2e étage).
Les locaux sont calmes, climatisés, et disposent d’un câblage informatique de catégorie 6, de la fibre optique, d’un ascenseur, d’un double accès privatif, et d’un espace archives en sous-sol (env. 14 m²). Le bail est de type 3-6-9 ans avec fiscalité TVA, indexation ILAT, et paiement trimestriel d’avance. La taxe foncière est de 17,26 €/m²/an. Honoraires à la charge du preneur.
Sale Notes
A la vente des surfaces de bureaux entièrement rénovés avec des matériaux haut de gamme de style industriel .Ces bureaux offrent un cadre de travail exceptionnel grâce à un environnement alliant confort, design et fonctionnalité.
Intérieur
Plan
Plan
Plan
Plan
Intérieur
Intérieur
Intérieur
Intérieur
Intérieur
Intérieur
| Unit Size | 1,872 SF | Sale Type | Owner User |
| Condo Use | Office |
| Unit Size | 1,872 SF |
| Condo Use | Office |
| Sale Type | Owner User |
Description
Situé au 247 rue du Faubourg Saint-Martin, dans le 10e arrondissement de Paris, cet ensemble de bureaux est proposé à la location en plusieurs niveaux, avec une organisation plug & play idéale pour un utilisateur unique recherchant des espaces opérationnels immédiatement exploitables. L’ensemble se répartit sur plusieurs étages, du sous-sol au 3e étage, et bénéficie d’une double adresse avec le 6 bis rue Chaudron.
Entièrement rénovés avec des matériaux de qualité, les bureaux allient élégance industrielle et confort moderne : belle hauteur sous plafond (4 m), climatisation réversible, pavés de verre éclairant le sous-sol, verrière coupe-feu avec système de désenfumage, et espaces extérieurs privatifs (patio d’environ 10 m² au rez-de-chaussée et terrasse de 8 m² au 2e étage).
Les locaux sont calmes, climatisés, et disposent d’un câblage informatique de catégorie 6, de la fibre optique, d’un ascenseur, d’un double accès privatif, et d’un espace archives en sous-sol (env. 14 m²). Le bail est de type 3-6-9 ans avec fiscalité TVA, indexation ILAT, et paiement trimestriel d’avance. La taxe foncière est de 17,26 €/m²/an. Honoraires à la charge du preneur.
Sale Notes
A la vente des surfaces de bureaux entièrement rénovés avec des matériaux haut de gamme de style industriel .Ces bureaux offrent un cadre de travail exceptionnel grâce à un environnement alliant confort, design et fonctionnalité.
Intérieur
Plan
Plan
Plan
Plan
Intérieur
Intérieur
Intérieur
Intérieur
Intérieur
Intérieur
| Unit Size | 484 SF | Sale Type | Owner User |
| Condo Use | Office |
| Unit Size | 484 SF |
| Condo Use | Office |
| Sale Type | Owner User |
Description
Situé au 247 rue du Faubourg Saint-Martin, dans le 10e arrondissement de Paris, cet ensemble de bureaux est proposé à la location en plusieurs niveaux, avec une organisation plug & play idéale pour un utilisateur unique recherchant des espaces opérationnels immédiatement exploitables. L’ensemble se répartit sur plusieurs étages, du sous-sol au 3e étage, et bénéficie d’une double adresse avec le 6 bis rue Chaudron.
Entièrement rénovés avec des matériaux de qualité, les bureaux allient élégance industrielle et confort moderne : belle hauteur sous plafond (4 m), climatisation réversible, pavés de verre éclairant le sous-sol, verrière coupe-feu avec système de désenfumage, et espaces extérieurs privatifs (patio d’environ 10 m² au rez-de-chaussée et terrasse de 8 m² au 2e étage).
Les locaux sont calmes, climatisés, et disposent d’un câblage informatique de catégorie 6, de la fibre optique, d’un ascenseur, d’un double accès privatif, et d’un espace archives en sous-sol (env. 14 m²). Le bail est de type 3-6-9 ans avec fiscalité TVA, indexation ILAT, et paiement trimestriel d’avance. La taxe foncière est de 17,26 €/m²/an. Honoraires à la charge du preneur.
Sale Notes
A la vente des surfaces de bureaux entièrement rénovés avec des matériaux haut de gamme de style industriel .Ces bureaux offrent un cadre de travail exceptionnel grâce à un environnement alliant confort, design et fonctionnalité.
Intérieur
Plan
Plan
Plan
Plan
Intérieur
Intérieur
Intérieur
Intérieur
Intérieur
Intérieur
| Unit Size | 215 SF | Sale Type | Owner User |
| Condo Use | Office |
| Unit Size | 215 SF |
| Condo Use | Office |
| Sale Type | Owner User |
Description
Situé au 247 rue du Faubourg Saint-Martin, dans le 10e arrondissement de Paris, cet ensemble de bureaux est proposé à la location en plusieurs niveaux, avec une organisation plug & play idéale pour un utilisateur unique recherchant des espaces opérationnels immédiatement exploitables. L’ensemble se répartit sur plusieurs étages, du sous-sol au 3e étage, et bénéficie d’une double adresse avec le 6 bis rue Chaudron.
Entièrement rénovés avec des matériaux de qualité, les bureaux allient élégance industrielle et confort moderne : belle hauteur sous plafond (4 m), climatisation réversible, pavés de verre éclairant le sous-sol, verrière coupe-feu avec système de désenfumage, et espaces extérieurs privatifs (patio d’environ 10 m² au rez-de-chaussée et terrasse de 8 m² au 2e étage).
Les locaux sont calmes, climatisés, et disposent d’un câblage informatique de catégorie 6, de la fibre optique, d’un ascenseur, d’un double accès privatif, et d’un espace archives en sous-sol (env. 14 m²). Le bail est de type 3-6-9 ans avec fiscalité TVA, indexation ILAT, et paiement trimestriel d’avance. La taxe foncière est de 17,26 €/m²/an. Honoraires à la charge du preneur.
Sale Notes
A la vente des surfaces de bureaux entièrement rénovés avec des matériaux haut de gamme de style industriel .Ces bureaux offrent un cadre de travail exceptionnel grâce à un environnement alliant confort, design et fonctionnalité.
Intérieur
Plan
Plan
Plan
Plan
Intérieur
Intérieur
Intérieur
Intérieur
Intérieur
Intérieur
Property Facts
| Total Building Size | 46,425 SF | Typical Floor Size | 6,275 SF |
| Property Type | Multifamily | Year Built | 1890 |
| Property Subtype | Apartment | Tenancy | Single |
| Building Class | C | Lot Size | 0.15 AC |
| Floors | 7 |
| Total Building Size | 46,425 SF |
| Property Type | Multifamily |
| Property Subtype | Apartment |
| Building Class | C |
| Floors | 7 |
| Typical Floor Size | 6,275 SF |
| Year Built | 1890 |
| Tenancy | Single |
| Lot Size | 0.15 AC |
Amenities
Site Amenities
- Controlled Access
- Security System
- Wheelchair Accessible
- Vintage Building
- Storage Space
- Elevator
- Fiber Optic Internet
Unit Mix Information
| Description | No. Units | Avg. Rent/Mo | SF |
|---|---|---|---|
| Studios | 25 | - | - |
Presented by
247 Rue Du Faubourg Saint-Martin
Hmm, there seems to have been an error sending your message. Please try again.
Thanks! Your message was sent.




