Your email has been sent.
Investment Highlights
- INDUSTRIAL LAND FOR SALE
- Excellent visibility
- Opportunity to acquire adjacent land parcel
Executive Summary
Property Facts
| Price | $2,050,650 CAD | Property Subtype | Commercial |
| Sale Type | Investment or Owner User | Proposed Use | Industrial |
| No. Lots | 1 | Total Lot Size | 1.11 AC |
| Property Type | Land | Opportunity Zone |
Yes
|
| Zoning | I-G - General Industrial | ||
| Price | $2,050,650 CAD |
| Sale Type | Investment or Owner User |
| No. Lots | 1 |
| Property Type | Land |
| Property Subtype | Commercial |
| Proposed Use | Industrial |
| Total Lot Size | 1.11 AC |
| Opportunity Zone |
Yes |
| Zoning | I-G - General Industrial |
1 Lot Available
Lot
| Price | $2,050,650 CAD | Lot Size | 1.11 AC |
| Price Per AC | $1,847,432.43 CAD |
| Price | $2,050,650 CAD |
| Price Per AC | $1,847,432.43 CAD |
| Lot Size | 1.11 AC |
APNs: 193-410-050 & 100 LAND SIZE: 1.30± ACRES (57,063± SF) ZONED: I-G (General Industrial City of Stockton)
Description
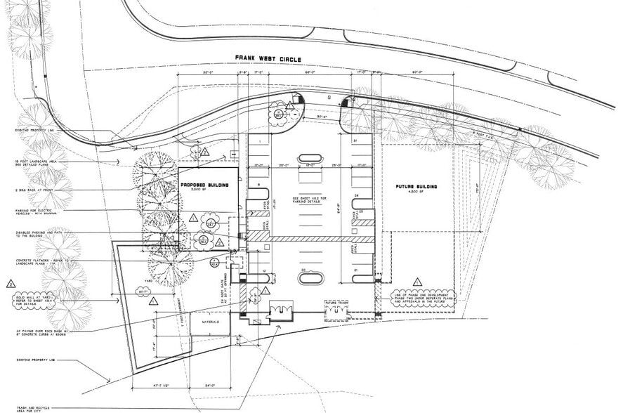
Immediate access to Interstate 5 via French Camp Road / Arch/Sperry interchange • Opportunity to acquire adjacent land parcel through separate ownership (0.52± acres) 193-440-060 for a total of 1.82± acres • Excellent visibility along heavily traveled French Camp Road / Arch/Sperry interchange • Located in “Opportunity Zone” • All utilities/city services to site • Corporate neighbors include Honda, Teichert Construction, WL Butler, Applied Industrial Technologies • Located in Grupe Business Park • Includes tentatively approved site plan for up to 8,000± SF of buildings
Property Taxes
| Parcel Number | 193-410-05 | Improvements Assessment | $0 CAD |
| Land Assessment | $564,096 CAD | Total Assessment | $564,096 CAD |
Property Taxes
Presented by
248 Frank West Cir
Hmm, there seems to have been an error sending your message. Please try again.
Thanks! Your message was sent.



