Log In/Sign Up
Your email has been sent.
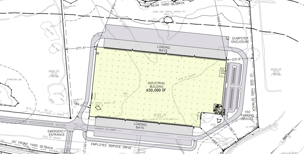
Build-to-Suit Customizations Available 248 Stickles Pond Rd 650,000 SF 4-Star Industrial Building Andover, NJ 07821 For Sale



INVESTMENT HIGHLIGHTS
- Prime 68-Acre Industrial Site – Approved for over 650,000 square feet of Class A warehouse space with additional potential for future development.
- Turnkey or Customized Delivery – Features 50-foot ceiling heights, 130 loading docks, and 3,000+ amps of power with flexible conceptual plans.
- Close to Major Logistics Hubs – Situated only 48 miles to Newark Airport, 50 miles to the Port of Newark, and 93 miles to the Port of Philadelphia.
- NJ PILOT Program Savings – Capitalize on estimated tax savings that exceed $40 million over 30 years, boosting ROI in a pro-development township.
- Strategic Access to Major Markets – Just 1,000 feet from Highway 206, 9 miles from I-80, and within easy access to NYC and Pennsylvania metros.
- Ready for Rapid Development – Partially cleared land, secured approvals, and completed assessments ensure a streamlined construction process.
EXECUTIVE SUMMARY
248 Stickles Pond Road presents an exceptional industrial development opportunity on 68 prime acres just outside of the Highland area in pro-development Newton, New Jersey. There are approved plans for a Class A warehouse building totaling over 650,000 square feet, plus additional space for future development. The site benefits from the NJ PILOT Program, offering an estimated $40+ million in tax savings over 30 years.
With land partially cleared, township approvals secured, environmental and preliminary engineering assessments completed, and a streamlined entitlement process, the development is primed for rapid development and strong ROI. Plans for 248 Stickles Pond Road feature a 50-foot ceiling clear height, 130 loading dock positions, and over 3,000 amps of electric power. The development can be delivered turnkey or customized to suit exacting needs, with alternate conceptual plans available for maximum flexibility.
Strategically situated just 1,000 feet from Highway 206 and nine miles from Interstate 80, the site ensures hassle-free access to major metropolitan markets, such as New York City and Allentown, Pennsylvania. Key logistics hubs are only moments away, including the Newark International Airport (48 miles), the Port of Newark (50 miles), and the Port of Philadelphia (93 miles). Operating businesses can serve 38 million customers within a two-hour drive and access 40% of the U.S. population within a day.
Available for purchase with optional build-to-suit and leaseback opportunities, this is a rare opportunity to secure a high-performing industrial asset within reach of the New York City metropolitan area.
With land partially cleared, township approvals secured, environmental and preliminary engineering assessments completed, and a streamlined entitlement process, the development is primed for rapid development and strong ROI. Plans for 248 Stickles Pond Road feature a 50-foot ceiling clear height, 130 loading dock positions, and over 3,000 amps of electric power. The development can be delivered turnkey or customized to suit exacting needs, with alternate conceptual plans available for maximum flexibility.
Strategically situated just 1,000 feet from Highway 206 and nine miles from Interstate 80, the site ensures hassle-free access to major metropolitan markets, such as New York City and Allentown, Pennsylvania. Key logistics hubs are only moments away, including the Newark International Airport (48 miles), the Port of Newark (50 miles), and the Port of Philadelphia (93 miles). Operating businesses can serve 38 million customers within a two-hour drive and access 40% of the U.S. population within a day.
Available for purchase with optional build-to-suit and leaseback opportunities, this is a rare opportunity to secure a high-performing industrial asset within reach of the New York City metropolitan area.
PROPERTY FACTS
1 1
1 of 5
VIDEOS
MATTERPORT 3D EXTERIOR
MATTERPORT 3D TOUR
PHOTOS
STREET VIEW
STREET
MAP
1 of 1
Presented by
Build-to-Suit Customizations Available | 248 Stickles Pond Rd
Already a member? Log In
Hmm, there seems to have been an error sending your message. Please try again.
Thanks! Your message was sent.
