Your email has been sent.
Some information has been automatically translated.
HIGHLIGHTS
- Bâtiment de bureaux très bon standing
- Facilement accessible
- Localisation stratégique & dynamique
ALL AVAILABLE SPACES(11)
Display Rental Rate as
- SPACE
- SIZE
- TERM
-
RENTAL RATE
- SPACE USE
- CONDITION
- AVAILABLE
Cet espace de bureaux offre un cadre de travail fonctionnel, confortable et facilement adaptable aux usages professionnels. Il se compose de surfaces lumineuses bénéficiant d’une double exposition, permettant une organisation fluide entre open-space, bureaux cloisonnés et salles de réunion. L’aménagement existant assure une bonne modularité et s’adapte aussi bien à des équipes opérationnelles qu’à des fonctions de direction ou de réception. L’espace est équipé d’un câblage informatique en place, facilitant une installation rapide, ainsi que de solutions d’éclairage adaptées aux environnements tertiaires. Le confort thermique est assuré par un système de climatisation et de chauffage performant. Une cuisine aménagée est intégrée à l’espace, complétée par des sanitaires privatifs en nombre et une douche. L’ensemble bénéficie d’une hauteur sous plafond confortable et d’un bon niveau de prestations, garantissant un environnement de travail agréable au quotidien.
-
Rental Charges: $13.50 CAD/SF/YR $1.13 CAD/SF/MO $70,492 CAD/YR $5,874 CAD/MO
- Fully Built-Out as Standard Retail Space
- Private Restrooms
- Corner Space
- Smoke Detector
- Hauteur sous plafond : 2,5m
- Security Deposit: 3 months of rent
- Space is in Excellent Condition
- Security System
- Finished Ceilings: 8’2”
- Cet espace est un ShowRoom
- Espace situé au Sous Sol
Cet espace de bureaux offre un cadre de travail fonctionnel, confortable et facilement adaptable aux usages professionnels. Il se compose de surfaces lumineuses bénéficiant d’une double exposition, permettant une organisation fluide entre open-space, bureaux cloisonnés et salles de réunion. L’aménagement existant assure une bonne modularité et s’adapte aussi bien à des équipes opérationnelles qu’à des fonctions de direction ou de réception. L’espace est équipé d’un câblage informatique en place, facilitant une installation rapide, ainsi que de solutions d’éclairage adaptées aux environnements tertiaires. Le confort thermique est assuré par un système de climatisation et de chauffage performant. Une cuisine aménagée est intégrée à l’espace, complétée par des sanitaires privatifs en nombre et une douche. L’ensemble bénéficie d’une hauteur sous plafond confortable et d’un bon niveau de prestations, garantissant un environnement de travail agréable au quotidien.
-
Rental Charges: $13.50 CAD/SF/YR $1.13 CAD/SF/MO $57,265 CAD/YR $4,772 CAD/MO
- Fully Built-Out as Standard Office
- Fits 11 - 33 People
- 1 Conference Room
- Space is in Excellent Condition
- Security System
- Secure Storage
- Open-Plan
- Espaces modulables et lumineux
- Cuisine aménagée et sanitaires privatifs
- Security Deposit: 3 months of rent
- Mostly Open Floor Plan Layout
- Partitioned Offices
- Finished Ceilings: 8’2”
- Private Restrooms
- Drop Ceilings
- Recessed Lighting
- Smoke Detector
- Climatisation, éclairage et câblage existants
Espaces d'archives
-
Rental Charges: $13.50 CAD/SF/YR $1.13 CAD/SF/MO $5,814 CAD/YR $484.48 CAD/MO
- Fully Built-Out as Standard Office
- Fits 2 - 4 People
- Finished Ceilings: 8’2”
- Smoke Detector
- Security Deposit: 3 months of rent
- Mostly Open Floor Plan Layout
- 1 Conference Room
- Space is in Excellent Condition
- Archives
Cet espace est un espace d'archives
- Security Deposit: 3 months of rent
- 1 Drive Bay
- Finished Ceilings: 8’2”
- Space is in Excellent Condition
- Secure Storage
- Archives
Cet espace est un showroom.
-
Rental Charges: $13.50 CAD/SF/YR $1.13 CAD/SF/MO $60,172 CAD/YR $5,014 CAD/MO
- Fully Built-Out as Standard Retail Space
- Finished Ceilings: 8’2”
- Showroom
- Security Deposit: 3 months of rent
- Space is in Excellent Condition
- Smoke Detector
Cet espace de bureaux offre un cadre de travail fonctionnel, confortable et facilement adaptable aux usages professionnels. Il se compose de surfaces lumineuses bénéficiant d’une double exposition, permettant une organisation fluide entre open-space, bureaux cloisonnés et salles de réunion. L’aménagement existant assure une bonne modularité et s’adapte aussi bien à des équipes opérationnelles qu’à des fonctions de direction ou de réception. L’espace est équipé d’un câblage informatique en place, facilitant une installation rapide, ainsi que de solutions d’éclairage adaptées aux environnements tertiaires. Le confort thermique est assuré par un système de climatisation et de chauffage performant. Une cuisine aménagée est intégrée à l’espace, complétée par des sanitaires privatifs en nombre et une douche. L’ensemble bénéficie d’une hauteur sous plafond confortable et d’un bon niveau de prestations, garantissant un environnement de travail agréable au quotidien.
-
Rental Charges: $13.50 CAD/SF/YR $1.13 CAD/SF/MO $138,367 CAD/YR $11,531 CAD/MO
- Fully Built-Out as Standard Office
- Fits 26 - 80 People
- 1 Conference Room
- Space is in Excellent Condition
- Private Restrooms
- Smoke Detector
- Climatisation, éclairage et câblage existants
- Security Deposit: 3 months of rent
- Mostly Open Floor Plan Layout
- Partitioned Offices
- Finished Ceilings: 8’2”
- Central Air Conditioning
- Open-Plan
- Cuisine aménagée et sanitaires privatifs
- Espaces modulables et lumineux
Cet espace de bureaux offre un cadre de travail fonctionnel, confortable et facilement adaptable aux usages professionnels. Il se compose de surfaces lumineuses bénéficiant d’une double exposition, permettant une organisation fluide entre open-space, bureaux cloisonnés et salles de réunion. L’aménagement existant assure une bonne modularité et s’adapte aussi bien à des équipes opérationnelles qu’à des fonctions de direction ou de réception. L’espace est équipé d’un câblage informatique en place, facilitant une installation rapide, ainsi que de solutions d’éclairage adaptées aux environnements tertiaires. Le confort thermique est assuré par un système de climatisation et de chauffage performant. Une cuisine aménagée est intégrée à l’espace, complétée par des sanitaires privatifs en nombre et une douche. L’ensemble bénéficie d’une hauteur sous plafond confortable et d’un bon niveau de prestations, garantissant un environnement de travail agréable au quotidien.
-
Rental Charges: $13.50 CAD/SF/YR $1.13 CAD/SF/MO $138,658 CAD/YR $11,555 CAD/MO
- Fully Built-Out as Standard Office
- Fits 26 - 80 People
- Finished Ceilings: 8’2”
- Central Air Conditioning
- Open-Plan
- Cuisine aménagée et sanitaires privatifs
- Espaces modulables et lumineux
- Security Deposit: 3 months of rent
- Mostly Open Floor Plan Layout
- Partitioned Offices
- Space is in Excellent Condition
- Private Restrooms
- Smoke Detector
- Climatisation, éclairage et câblage existants
Cet espace de bureaux offre un cadre de travail fonctionnel, confortable et facilement adaptable aux usages professionnels. Il se compose de surfaces lumineuses bénéficiant d’une double exposition, permettant une organisation fluide entre open-space, bureaux cloisonnés et salles de réunion. L’aménagement existant assure une bonne modularité et s’adapte aussi bien à des équipes opérationnelles qu’à des fonctions de direction ou de réception. L’espace est équipé d’un câblage informatique en place, facilitant une installation rapide, ainsi que de solutions d’éclairage adaptées aux environnements tertiaires. Le confort thermique est assuré par un système de climatisation et de chauffage performant. Une cuisine aménagée est intégrée à l’espace, complétée par des sanitaires privatifs en nombre et une douche. L’ensemble bénéficie d’une hauteur sous plafond confortable et d’un bon niveau de prestations, garantissant un environnement de travail agréable au quotidien.
-
Rental Charges: $13.50 CAD/SF/YR $1.13 CAD/SF/MO $159,733 CAD/YR $13,311 CAD/MO
- Fully Built-Out as Standard Office
- Fits 30 - 92 People
- 1 Conference Room
- Space is in Excellent Condition
- Private Restrooms
- Smoke Detector
- Climatisation, éclairage et câblage existants
- Security Deposit: 3 months of rent
- Mostly Open Floor Plan Layout
- Partitioned Offices
- Finished Ceilings: 8’2”
- Central Air Conditioning
- Open-Plan
- Cuisine aménagée et sanitaires privatifs
- Espaces modulables et lumineux
Cet espace de bureaux offre un cadre de travail fonctionnel, confortable et facilement adaptable aux usages professionnels. Il se compose de surfaces lumineuses bénéficiant d’une double exposition, permettant une organisation fluide entre open-space, bureaux cloisonnés et salles de réunion. L’aménagement existant assure une bonne modularité et s’adapte aussi bien à des équipes opérationnelles qu’à des fonctions de direction ou de réception. L’espace est équipé d’un câblage informatique en place, facilitant une installation rapide, ainsi que de solutions d’éclairage adaptées aux environnements tertiaires. Le confort thermique est assuré par un système de climatisation et de chauffage performant. Une cuisine aménagée est intégrée à l’espace, complétée par des sanitaires privatifs en nombre et une douche. L’ensemble bénéficie d’une hauteur sous plafond confortable et d’un bon niveau de prestations, garantissant un environnement de travail agréable au quotidien.
-
Rental Charges: $13.50 CAD/SF/YR $1.13 CAD/SF/MO $219,469 CAD/YR $18,289 CAD/MO
- Fully Built-Out as Standard Office
- Fits 41 - 126 People
- 1 Conference Room
- Space is in Excellent Condition
- Private Restrooms
- Open-Plan
- Climatisation, éclairage et câblage existants
- Security Deposit: 3 months of rent
- Mostly Open Floor Plan Layout
- Partitioned Offices
- Finished Ceilings: 8’2”
- Central Air Conditioning
- Security System
- Cuisine aménagée et sanitaires privatifs
- Espaces modulables et lumineux
Cet espace de bureaux offre un cadre de travail fonctionnel, confortable et facilement adaptable aux usages professionnels. Il se compose de surfaces lumineuses bénéficiant d’une double exposition, permettant une organisation fluide entre open-space, bureaux cloisonnés et salles de réunion. L’aménagement existant assure une bonne modularité et s’adapte aussi bien à des équipes opérationnelles qu’à des fonctions de direction ou de réception. L’espace est équipé d’un câblage informatique en place, facilitant une installation rapide, ainsi que de solutions d’éclairage adaptées aux environnements tertiaires. Le confort thermique est assuré par un système de climatisation et de chauffage performant. Une cuisine aménagée est intégrée à l’espace, complétée par des sanitaires privatifs en nombre et une douche. L’ensemble bénéficie d’une hauteur sous plafond confortable et d’un bon niveau de prestations, garantissant un environnement de travail agréable au quotidien.
-
Rental Charges: $13.50 CAD/SF/YR $1.13 CAD/SF/MO $93,747 CAD/YR $7,812 CAD/MO
- Fully Built-Out as Standard Office
- Fits 18 - 54 People
- 1 Conference Room
- Space is in Excellent Condition
- Private Restrooms
- Drop Ceilings
- Smoke Detector
- Climatisation, éclairage et câblage existants
- Security Deposit: 3 months of rent
- Mostly Open Floor Plan Layout
- Partitioned Offices
- Finished Ceilings: 8’2”
- Central Air Conditioning
- Security System
- Open-Plan
- Cuisine aménagée et sanitaires privatifs
- Espaces modulables et lumineux
Cet espace de bureaux offre un cadre de travail fonctionnel, confortable et facilement adaptable aux usages professionnels. Il se compose de surfaces lumineuses bénéficiant d’une double exposition, permettant une organisation fluide entre open-space, bureaux cloisonnés et salles de réunion. L’aménagement existant assure une bonne modularité et s’adapte aussi bien à des équipes opérationnelles qu’à des fonctions de direction ou de réception. L’espace est équipé d’un câblage informatique en place, facilitant une installation rapide, ainsi que de solutions d’éclairage adaptées aux environnements tertiaires. Le confort thermique est assuré par un système de climatisation et de chauffage performant. Une cuisine aménagée est intégrée à l’espace, complétée par des sanitaires privatifs en nombre et une douche. L’ensemble bénéficie d’une hauteur sous plafond confortable et d’un bon niveau de prestations, garantissant un environnement de travail agréable au quotidien.
-
Rental Charges: $0.14 CAD/SF/YR $0.01 CAD/SF/MO $145.34 CAD/YR $12.11 CAD/MO
- Fully Built-Out as Standard Office
- Fits 3 - 9 People
- 1 Conference Room
- Space is in Excellent Condition
- Security System
- Open-Plan
- Cuisine aménagée et sanitaires privatifs
- Espaces modulables et lumineux
- Security Deposit: 3 months of rent
- Mostly Open Floor Plan Layout
- Partitioned Offices
- Finished Ceilings: 8’2”
- Private Restrooms
- Drop Ceilings
- Smoke Detector
- Climatisation, éclairage et câblage existants
| Space | Size | Term | Rental Rate | Space Use | Condition | Available |
| Basement, Ste Showroom | 5,220 SF | 3/6/9 | $129.71 CAD/SF/YR HT-HC $10.81 CAD/SF/MO HT-HC $677,150 CAD/YR HT-HC $56,429 CAD/MO HT-HC | Retail | Full Build-Out | Now |
| Ground | 4,241 SF | 3/6/9 | $129.71 CAD/SF/YR HT-HC $10.81 CAD/SF/MO HT-HC $550,097 CAD/YR HT-HC $45,841 CAD/MO HT-HC | Office | Full Build-Out | Now |
| Ground, Ste Archives | 431 SF | 3/6/9 | $129.71 CAD/SF/YR HT-HC $10.81 CAD/SF/MO HT-HC $55,847 CAD/YR HT-HC $4,654 CAD/MO HT-HC | Office | Full Build-Out | Now |
| Ground - Archives | 1,087 SF | 3/6/9 | $129.71 CAD/SF/YR HT-HC $10.81 CAD/SF/MO HT-HC $141,015 CAD/YR HT-HC $11,751 CAD/MO HT-HC | Flex | Full Build-Out | Now |
| Ground, Ste ShowRoom | 4,456 SF | 3/6/9 | $129.71 CAD/SF/YR HT-HC $10.81 CAD/SF/MO HT-HC $578,021 CAD/YR HT-HC $48,168 CAD/MO HT-HC | Retail | Full Build-Out | Now |
| 1st Floor | 10,247 SF | 3/6/9 | $129.71 CAD/SF/YR HT-HC $10.81 CAD/SF/MO HT-HC $1,329,170 CAD/YR HT-HC $110,764 CAD/MO HT-HC | Office | Full Build-Out | Now |
| 2nd Floor | 10,269 SF | 3/6/9 | $129.71 CAD/SF/YR HT-HC $10.81 CAD/SF/MO HT-HC $1,331,962 CAD/YR HT-HC $110,997 CAD/MO HT-HC | Office | Full Build-Out | Now |
| 3rd Floor | 11,830 SF | 3/6/9 | $129.71 CAD/SF/YR HT-HC $10.81 CAD/SF/MO HT-HC $1,534,409 CAD/YR HT-HC $127,867 CAD/MO HT-HC | Office | Full Build-Out | Now |
| 4th Floor | 16,254 SF | 3/6/9 | $129.71 CAD/SF/YR HT-HC $10.81 CAD/SF/MO HT-HC $2,108,242 CAD/YR HT-HC $175,687 CAD/MO HT-HC | Office | Full Build-Out | Now |
| 5th Floor | 6,943 SF | 3/6/9 | $129.71 CAD/SF/YR HT-HC $10.81 CAD/SF/MO HT-HC $900,540 CAD/YR HT-HC $75,045 CAD/MO HT-HC | Office | Full Build-Out | Now |
| 6th Floor | 1,076 SF | 3/6/9 | $129.71 CAD/SF/YR HT-HC $10.81 CAD/SF/MO HT-HC $139,619 CAD/YR HT-HC $11,635 CAD/MO HT-HC | Office | Full Build-Out | Now |
Basement, Ste Showroom
| Size |
| 5,220 SF |
| Term |
| 3/6/9 |
|
Rental Rate
|
| $129.71 CAD/SF/YR HT-HC $10.81 CAD/SF/MO HT-HC $677,150 CAD/YR HT-HC $56,429 CAD/MO HT-HC |
| Space Use |
| Retail |
| Condition |
| Full Build-Out |
| Available |
| Now |
Ground
| Size |
| 4,241 SF |
| Term |
| 3/6/9 |
|
Rental Rate
|
| $129.71 CAD/SF/YR HT-HC $10.81 CAD/SF/MO HT-HC $550,097 CAD/YR HT-HC $45,841 CAD/MO HT-HC |
| Space Use |
| Office |
| Condition |
| Full Build-Out |
| Available |
| Now |
Ground, Ste Archives
| Size |
| 431 SF |
| Term |
| 3/6/9 |
|
Rental Rate
|
| $129.71 CAD/SF/YR HT-HC $10.81 CAD/SF/MO HT-HC $55,847 CAD/YR HT-HC $4,654 CAD/MO HT-HC |
| Space Use |
| Office |
| Condition |
| Full Build-Out |
| Available |
| Now |
Ground - Archives
| Size |
| 1,087 SF |
| Term |
| 3/6/9 |
|
Rental Rate
|
| $129.71 CAD/SF/YR HT-HC $10.81 CAD/SF/MO HT-HC $141,015 CAD/YR HT-HC $11,751 CAD/MO HT-HC |
| Space Use |
| Flex |
| Condition |
| Full Build-Out |
| Available |
| Now |
Ground, Ste ShowRoom
| Size |
| 4,456 SF |
| Term |
| 3/6/9 |
|
Rental Rate
|
| $129.71 CAD/SF/YR HT-HC $10.81 CAD/SF/MO HT-HC $578,021 CAD/YR HT-HC $48,168 CAD/MO HT-HC |
| Space Use |
| Retail |
| Condition |
| Full Build-Out |
| Available |
| Now |
1st Floor
| Size |
| 10,247 SF |
| Term |
| 3/6/9 |
|
Rental Rate
|
| $129.71 CAD/SF/YR HT-HC $10.81 CAD/SF/MO HT-HC $1,329,170 CAD/YR HT-HC $110,764 CAD/MO HT-HC |
| Space Use |
| Office |
| Condition |
| Full Build-Out |
| Available |
| Now |
2nd Floor
| Size |
| 10,269 SF |
| Term |
| 3/6/9 |
|
Rental Rate
|
| $129.71 CAD/SF/YR HT-HC $10.81 CAD/SF/MO HT-HC $1,331,962 CAD/YR HT-HC $110,997 CAD/MO HT-HC |
| Space Use |
| Office |
| Condition |
| Full Build-Out |
| Available |
| Now |
3rd Floor
| Size |
| 11,830 SF |
| Term |
| 3/6/9 |
|
Rental Rate
|
| $129.71 CAD/SF/YR HT-HC $10.81 CAD/SF/MO HT-HC $1,534,409 CAD/YR HT-HC $127,867 CAD/MO HT-HC |
| Space Use |
| Office |
| Condition |
| Full Build-Out |
| Available |
| Now |
4th Floor
| Size |
| 16,254 SF |
| Term |
| 3/6/9 |
|
Rental Rate
|
| $129.71 CAD/SF/YR HT-HC $10.81 CAD/SF/MO HT-HC $2,108,242 CAD/YR HT-HC $175,687 CAD/MO HT-HC |
| Space Use |
| Office |
| Condition |
| Full Build-Out |
| Available |
| Now |
5th Floor
| Size |
| 6,943 SF |
| Term |
| 3/6/9 |
|
Rental Rate
|
| $129.71 CAD/SF/YR HT-HC $10.81 CAD/SF/MO HT-HC $900,540 CAD/YR HT-HC $75,045 CAD/MO HT-HC |
| Space Use |
| Office |
| Condition |
| Full Build-Out |
| Available |
| Now |
6th Floor
| Size |
| 1,076 SF |
| Term |
| 3/6/9 |
|
Rental Rate
|
| $129.71 CAD/SF/YR HT-HC $10.81 CAD/SF/MO HT-HC $139,619 CAD/YR HT-HC $11,635 CAD/MO HT-HC |
| Space Use |
| Office |
| Condition |
| Full Build-Out |
| Available |
| Now |
Basement, Ste Showroom
| Size | 5,220 SF |
| Term | 3/6/9 |
|
Rental Rate
|
$129.71 CAD/SF/YR HT-HC |
| Space Use | Retail |
| Condition | Full Build-Out |
| Available | Now |
Cet espace de bureaux offre un cadre de travail fonctionnel, confortable et facilement adaptable aux usages professionnels. Il se compose de surfaces lumineuses bénéficiant d’une double exposition, permettant une organisation fluide entre open-space, bureaux cloisonnés et salles de réunion. L’aménagement existant assure une bonne modularité et s’adapte aussi bien à des équipes opérationnelles qu’à des fonctions de direction ou de réception. L’espace est équipé d’un câblage informatique en place, facilitant une installation rapide, ainsi que de solutions d’éclairage adaptées aux environnements tertiaires. Le confort thermique est assuré par un système de climatisation et de chauffage performant. Une cuisine aménagée est intégrée à l’espace, complétée par des sanitaires privatifs en nombre et une douche. L’ensemble bénéficie d’une hauteur sous plafond confortable et d’un bon niveau de prestations, garantissant un environnement de travail agréable au quotidien.
-
Rental Charges: $13.50 CAD/SF/YR $1.13 CAD/SF/MO $70,492 CAD/YR $5,874 CAD/MO
- Security Deposit: 3 months of rent
- Fully Built-Out as Standard Retail Space
- Space is in Excellent Condition
- Private Restrooms
- Security System
- Corner Space
- Finished Ceilings: 8’2”
- Smoke Detector
- Cet espace est un ShowRoom
- Hauteur sous plafond : 2,5m
- Espace situé au Sous Sol
Ground
| Size | 4,241 SF |
| Term | 3/6/9 |
|
Rental Rate
|
$129.71 CAD/SF/YR HT-HC |
| Space Use | Office |
| Condition | Full Build-Out |
| Available | Now |
Cet espace de bureaux offre un cadre de travail fonctionnel, confortable et facilement adaptable aux usages professionnels. Il se compose de surfaces lumineuses bénéficiant d’une double exposition, permettant une organisation fluide entre open-space, bureaux cloisonnés et salles de réunion. L’aménagement existant assure une bonne modularité et s’adapte aussi bien à des équipes opérationnelles qu’à des fonctions de direction ou de réception. L’espace est équipé d’un câblage informatique en place, facilitant une installation rapide, ainsi que de solutions d’éclairage adaptées aux environnements tertiaires. Le confort thermique est assuré par un système de climatisation et de chauffage performant. Une cuisine aménagée est intégrée à l’espace, complétée par des sanitaires privatifs en nombre et une douche. L’ensemble bénéficie d’une hauteur sous plafond confortable et d’un bon niveau de prestations, garantissant un environnement de travail agréable au quotidien.
-
Rental Charges: $13.50 CAD/SF/YR $1.13 CAD/SF/MO $57,265 CAD/YR $4,772 CAD/MO
- Security Deposit: 3 months of rent
- Fully Built-Out as Standard Office
- Mostly Open Floor Plan Layout
- Fits 11 - 33 People
- Partitioned Offices
- 1 Conference Room
- Finished Ceilings: 8’2”
- Space is in Excellent Condition
- Private Restrooms
- Security System
- Drop Ceilings
- Secure Storage
- Recessed Lighting
- Open-Plan
- Smoke Detector
- Espaces modulables et lumineux
- Climatisation, éclairage et câblage existants
- Cuisine aménagée et sanitaires privatifs
Ground, Ste Archives
| Size | 431 SF |
| Term | 3/6/9 |
|
Rental Rate
|
$129.71 CAD/SF/YR HT-HC |
| Space Use | Office |
| Condition | Full Build-Out |
| Available | Now |
Espaces d'archives
-
Rental Charges: $13.50 CAD/SF/YR $1.13 CAD/SF/MO $5,814 CAD/YR $484.48 CAD/MO
- Security Deposit: 3 months of rent
- Fully Built-Out as Standard Office
- Mostly Open Floor Plan Layout
- Fits 2 - 4 People
- 1 Conference Room
- Finished Ceilings: 8’2”
- Space is in Excellent Condition
- Smoke Detector
- Archives
Ground - Archives
| Size | 1,087 SF |
| Term | 3/6/9 |
|
Rental Rate
|
$129.71 CAD/SF/YR HT-HC |
| Space Use | Flex |
| Condition | Full Build-Out |
| Available | Now |
Cet espace est un espace d'archives
- Security Deposit: 3 months of rent
- Space is in Excellent Condition
- 1 Drive Bay
- Secure Storage
- Finished Ceilings: 8’2”
- Archives
Ground, Ste ShowRoom
| Size | 4,456 SF |
| Term | 3/6/9 |
|
Rental Rate
|
$129.71 CAD/SF/YR HT-HC |
| Space Use | Retail |
| Condition | Full Build-Out |
| Available | Now |
Cet espace est un showroom.
-
Rental Charges: $13.50 CAD/SF/YR $1.13 CAD/SF/MO $60,172 CAD/YR $5,014 CAD/MO
- Security Deposit: 3 months of rent
- Fully Built-Out as Standard Retail Space
- Space is in Excellent Condition
- Finished Ceilings: 8’2”
- Smoke Detector
- Showroom
1st Floor
| Size | 10,247 SF |
| Term | 3/6/9 |
|
Rental Rate
|
$129.71 CAD/SF/YR HT-HC |
| Space Use | Office |
| Condition | Full Build-Out |
| Available | Now |
Cet espace de bureaux offre un cadre de travail fonctionnel, confortable et facilement adaptable aux usages professionnels. Il se compose de surfaces lumineuses bénéficiant d’une double exposition, permettant une organisation fluide entre open-space, bureaux cloisonnés et salles de réunion. L’aménagement existant assure une bonne modularité et s’adapte aussi bien à des équipes opérationnelles qu’à des fonctions de direction ou de réception. L’espace est équipé d’un câblage informatique en place, facilitant une installation rapide, ainsi que de solutions d’éclairage adaptées aux environnements tertiaires. Le confort thermique est assuré par un système de climatisation et de chauffage performant. Une cuisine aménagée est intégrée à l’espace, complétée par des sanitaires privatifs en nombre et une douche. L’ensemble bénéficie d’une hauteur sous plafond confortable et d’un bon niveau de prestations, garantissant un environnement de travail agréable au quotidien.
-
Rental Charges: $13.50 CAD/SF/YR $1.13 CAD/SF/MO $138,367 CAD/YR $11,531 CAD/MO
- Security Deposit: 3 months of rent
- Fully Built-Out as Standard Office
- Mostly Open Floor Plan Layout
- Fits 26 - 80 People
- Partitioned Offices
- 1 Conference Room
- Finished Ceilings: 8’2”
- Space is in Excellent Condition
- Central Air Conditioning
- Private Restrooms
- Open-Plan
- Smoke Detector
- Cuisine aménagée et sanitaires privatifs
- Climatisation, éclairage et câblage existants
- Espaces modulables et lumineux
2nd Floor
| Size | 10,269 SF |
| Term | 3/6/9 |
|
Rental Rate
|
$129.71 CAD/SF/YR HT-HC |
| Space Use | Office |
| Condition | Full Build-Out |
| Available | Now |
Cet espace de bureaux offre un cadre de travail fonctionnel, confortable et facilement adaptable aux usages professionnels. Il se compose de surfaces lumineuses bénéficiant d’une double exposition, permettant une organisation fluide entre open-space, bureaux cloisonnés et salles de réunion. L’aménagement existant assure une bonne modularité et s’adapte aussi bien à des équipes opérationnelles qu’à des fonctions de direction ou de réception. L’espace est équipé d’un câblage informatique en place, facilitant une installation rapide, ainsi que de solutions d’éclairage adaptées aux environnements tertiaires. Le confort thermique est assuré par un système de climatisation et de chauffage performant. Une cuisine aménagée est intégrée à l’espace, complétée par des sanitaires privatifs en nombre et une douche. L’ensemble bénéficie d’une hauteur sous plafond confortable et d’un bon niveau de prestations, garantissant un environnement de travail agréable au quotidien.
-
Rental Charges: $13.50 CAD/SF/YR $1.13 CAD/SF/MO $138,658 CAD/YR $11,555 CAD/MO
- Security Deposit: 3 months of rent
- Fully Built-Out as Standard Office
- Mostly Open Floor Plan Layout
- Fits 26 - 80 People
- Partitioned Offices
- Finished Ceilings: 8’2”
- Space is in Excellent Condition
- Central Air Conditioning
- Private Restrooms
- Open-Plan
- Smoke Detector
- Cuisine aménagée et sanitaires privatifs
- Climatisation, éclairage et câblage existants
- Espaces modulables et lumineux
3rd Floor
| Size | 11,830 SF |
| Term | 3/6/9 |
|
Rental Rate
|
$129.71 CAD/SF/YR HT-HC |
| Space Use | Office |
| Condition | Full Build-Out |
| Available | Now |
Cet espace de bureaux offre un cadre de travail fonctionnel, confortable et facilement adaptable aux usages professionnels. Il se compose de surfaces lumineuses bénéficiant d’une double exposition, permettant une organisation fluide entre open-space, bureaux cloisonnés et salles de réunion. L’aménagement existant assure une bonne modularité et s’adapte aussi bien à des équipes opérationnelles qu’à des fonctions de direction ou de réception. L’espace est équipé d’un câblage informatique en place, facilitant une installation rapide, ainsi que de solutions d’éclairage adaptées aux environnements tertiaires. Le confort thermique est assuré par un système de climatisation et de chauffage performant. Une cuisine aménagée est intégrée à l’espace, complétée par des sanitaires privatifs en nombre et une douche. L’ensemble bénéficie d’une hauteur sous plafond confortable et d’un bon niveau de prestations, garantissant un environnement de travail agréable au quotidien.
-
Rental Charges: $13.50 CAD/SF/YR $1.13 CAD/SF/MO $159,733 CAD/YR $13,311 CAD/MO
- Security Deposit: 3 months of rent
- Fully Built-Out as Standard Office
- Mostly Open Floor Plan Layout
- Fits 30 - 92 People
- Partitioned Offices
- 1 Conference Room
- Finished Ceilings: 8’2”
- Space is in Excellent Condition
- Central Air Conditioning
- Private Restrooms
- Open-Plan
- Smoke Detector
- Cuisine aménagée et sanitaires privatifs
- Climatisation, éclairage et câblage existants
- Espaces modulables et lumineux
4th Floor
| Size | 16,254 SF |
| Term | 3/6/9 |
|
Rental Rate
|
$129.71 CAD/SF/YR HT-HC |
| Space Use | Office |
| Condition | Full Build-Out |
| Available | Now |
Cet espace de bureaux offre un cadre de travail fonctionnel, confortable et facilement adaptable aux usages professionnels. Il se compose de surfaces lumineuses bénéficiant d’une double exposition, permettant une organisation fluide entre open-space, bureaux cloisonnés et salles de réunion. L’aménagement existant assure une bonne modularité et s’adapte aussi bien à des équipes opérationnelles qu’à des fonctions de direction ou de réception. L’espace est équipé d’un câblage informatique en place, facilitant une installation rapide, ainsi que de solutions d’éclairage adaptées aux environnements tertiaires. Le confort thermique est assuré par un système de climatisation et de chauffage performant. Une cuisine aménagée est intégrée à l’espace, complétée par des sanitaires privatifs en nombre et une douche. L’ensemble bénéficie d’une hauteur sous plafond confortable et d’un bon niveau de prestations, garantissant un environnement de travail agréable au quotidien.
-
Rental Charges: $13.50 CAD/SF/YR $1.13 CAD/SF/MO $219,469 CAD/YR $18,289 CAD/MO
- Security Deposit: 3 months of rent
- Fully Built-Out as Standard Office
- Mostly Open Floor Plan Layout
- Fits 41 - 126 People
- Partitioned Offices
- 1 Conference Room
- Finished Ceilings: 8’2”
- Space is in Excellent Condition
- Central Air Conditioning
- Private Restrooms
- Security System
- Open-Plan
- Cuisine aménagée et sanitaires privatifs
- Climatisation, éclairage et câblage existants
- Espaces modulables et lumineux
5th Floor
| Size | 6,943 SF |
| Term | 3/6/9 |
|
Rental Rate
|
$129.71 CAD/SF/YR HT-HC |
| Space Use | Office |
| Condition | Full Build-Out |
| Available | Now |
Cet espace de bureaux offre un cadre de travail fonctionnel, confortable et facilement adaptable aux usages professionnels. Il se compose de surfaces lumineuses bénéficiant d’une double exposition, permettant une organisation fluide entre open-space, bureaux cloisonnés et salles de réunion. L’aménagement existant assure une bonne modularité et s’adapte aussi bien à des équipes opérationnelles qu’à des fonctions de direction ou de réception. L’espace est équipé d’un câblage informatique en place, facilitant une installation rapide, ainsi que de solutions d’éclairage adaptées aux environnements tertiaires. Le confort thermique est assuré par un système de climatisation et de chauffage performant. Une cuisine aménagée est intégrée à l’espace, complétée par des sanitaires privatifs en nombre et une douche. L’ensemble bénéficie d’une hauteur sous plafond confortable et d’un bon niveau de prestations, garantissant un environnement de travail agréable au quotidien.
-
Rental Charges: $13.50 CAD/SF/YR $1.13 CAD/SF/MO $93,747 CAD/YR $7,812 CAD/MO
- Security Deposit: 3 months of rent
- Fully Built-Out as Standard Office
- Mostly Open Floor Plan Layout
- Fits 18 - 54 People
- Partitioned Offices
- 1 Conference Room
- Finished Ceilings: 8’2”
- Space is in Excellent Condition
- Central Air Conditioning
- Private Restrooms
- Security System
- Drop Ceilings
- Open-Plan
- Smoke Detector
- Cuisine aménagée et sanitaires privatifs
- Climatisation, éclairage et câblage existants
- Espaces modulables et lumineux
6th Floor
| Size | 1,076 SF |
| Term | 3/6/9 |
|
Rental Rate
|
$129.71 CAD/SF/YR HT-HC |
| Space Use | Office |
| Condition | Full Build-Out |
| Available | Now |
Cet espace de bureaux offre un cadre de travail fonctionnel, confortable et facilement adaptable aux usages professionnels. Il se compose de surfaces lumineuses bénéficiant d’une double exposition, permettant une organisation fluide entre open-space, bureaux cloisonnés et salles de réunion. L’aménagement existant assure une bonne modularité et s’adapte aussi bien à des équipes opérationnelles qu’à des fonctions de direction ou de réception. L’espace est équipé d’un câblage informatique en place, facilitant une installation rapide, ainsi que de solutions d’éclairage adaptées aux environnements tertiaires. Le confort thermique est assuré par un système de climatisation et de chauffage performant. Une cuisine aménagée est intégrée à l’espace, complétée par des sanitaires privatifs en nombre et une douche. L’ensemble bénéficie d’une hauteur sous plafond confortable et d’un bon niveau de prestations, garantissant un environnement de travail agréable au quotidien.
-
Rental Charges: $0.14 CAD/SF/YR $0.01 CAD/SF/MO $145.34 CAD/YR $12.11 CAD/MO
- Security Deposit: 3 months of rent
- Fully Built-Out as Standard Office
- Mostly Open Floor Plan Layout
- Fits 3 - 9 People
- Partitioned Offices
- 1 Conference Room
- Finished Ceilings: 8’2”
- Space is in Excellent Condition
- Private Restrooms
- Security System
- Drop Ceilings
- Open-Plan
- Smoke Detector
- Cuisine aménagée et sanitaires privatifs
- Climatisation, éclairage et câblage existants
- Espaces modulables et lumineux
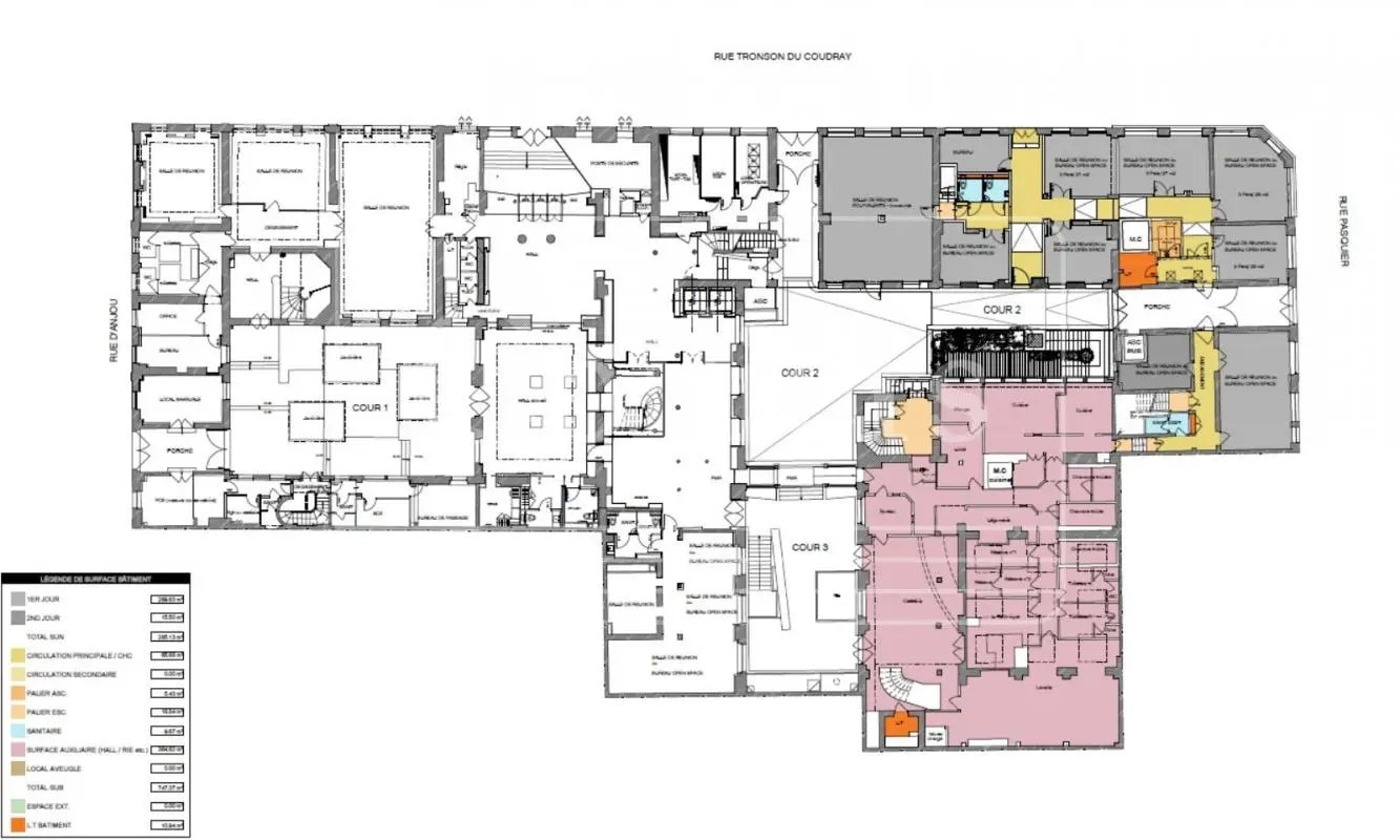
PROPERTY OVERVIEW
**52 Anjou Building** Located in the heart of the Central Business District, near Place de la Madeleine and Boulevard Haussmann, this prestigious and business-oriented area offers a prime location. This high-end property combines a historic façade with a modern, high-quality renovation. **Access Points:** - Rue d'Anjou: Dedicated entrance for clients and guests - Rue Tronson-du-Coudray: Staff entrance - Rue Pasquier: Delivery entrance **Key Features:** - ADA-compliant access - High-standard reception area - Receptionist service - Secure badge access to upper floors - Landscaped courtyard - 24/7 security control room - Triplex elevators - Freight elevator - On-site multi-technical maintenance - Access to ground-floor meeting rooms via FLEXACCESS (included in service charges) - Nearby parking (Vinci Park "Madeleine Anjou") **Property Condition:** - Excellent condition - Combination of open spaces and partitioned offices - Highly modular layouts - Bright spaces with dual exposure - Large, fully equipped kitchen - 7 restrooms + 1 shower - Ceiling height: 2.5 meters - Existing IT cabling - Shared meeting rooms: - 1 room for 20-24 people with Ethernet cabling and projector screen - 1 room for 12-14 people without cabling - 1 room for 6-8 people without cabling **Building Details:** - Independent building - Ground floor area: 808 m² **Location/Transportation:** - Metro: Saint-Augustin (Line 9), Saint-Lazare (Lines 3, 13, 14), Madeleine (Lines 8, 12) - RER: Auber (Line A), Haussmann-Saint-Lazare (Line E) - SNCF: Paris-Saint-Lazare (Lines J, L, SNCF), Haussmann Saint-Lazare (RER Line E) - Bus: Numerous lines **Security Deposit:** - Equivalent to 3 months' rent (excluding taxes and service charges)
- Bus Line
- Courtyard
- Metro/Subway
- Security System
- Signage
- Skylights
- Reception
- Basement
- High Ceilings
- Shower Facilities
- Yard
- Balcony
PROPERTY FACTS
Presented by
25 Rue Pasquier
Hmm, there seems to have been an error sending your message. Please try again.
Thanks! Your message was sent.






