Your email has been sent.
Highlights
- Located in San Francisco’s prime Financial District with excellent transit connectivity.
- Flexible side-core floor plates and virtually column-free design for efficient layouts.
- On-site retail includes a flagship CrossFit gym for tenant convenience.
- 16-story Class A office tower with modernized elevator systems and destination dispatch.
- Abundant natural light through expansive window lines with city views.
- Surrounded by top-tier restaurants, hotels, and financial institutions.
All Available Spaces(7)
Display Rental Rate as
- Space
- Size
- Term
- Rental Rate
- Space Use
- Build-Out
- Available
Can be Fully Furnished, 5 Private Offices, 2 Conference Rooms, Kitchenette Area
• Full floor 2nd generation creative suite • Exposed ceilings • 1 conference room • 10 private offices/meeting rooms • IT/storage room • Open space • Kitchenette
- Fully Built-Out as Standard Office
- 9 Private Offices
- Space is in Excellent Condition
- Exposed Ceiling
- Mostly Open Floor Plan Layout
- 2 Conference Rooms
- Kitchen
- Bay Area Views
• Creative suite with exposed ceiling • 2 conference rooms • 6 various sized meeting rooms • Open kitchen • Open area • Landlord will furnish
- Fully Built-Out as Standard Office
- 6 Private Offices
- Kitchen
- Bay Area Views
- Open Floor Plan Layout
- 2 Conference Rooms
- Exposed Ceiling
Full floor fully furnished plug and play creative spec suite. Open space, 1 large conference room, 5 private offices/meeting rooms, nice outlooks and natural light.
- Open Floor Plan Layout
- 1 Conference Room
- Natural Light
- 5 Private Offices
- Plug & Play
- Bay Area Views
2nd gen creative spec suite, Can be fully furnished, 1 large & 6 medium meeting rooms, Good outlooks & natural light
5 Private Offices, 1 Conference Room, Partially Furnished, Updated Kitchen
• 7,372 RSF • Available now • Open plan • Kitchen • Large double-height boardroom • 8 Various sized private offices / meeting rooms • 3 Exclusive balconies / decks Virtual Tour: https://my.matterport.com/show/?m=ZEsJYxbDiig
| Space | Size | Term | Rental Rate | Space Use | Build-Out | Available |
| 2nd Floor, Ste 210 | 3,704 SF | Negotiable | Upon Request Upon Request Upon Request Upon Request | Office | - | Now |
| 3rd Floor, Ste 300 | 7,666 SF | Negotiable | Upon Request Upon Request Upon Request Upon Request | Office | Full Build-Out | 30 Days |
| 7th Floor, Ste 700 | 6,556 SF | Negotiable | Upon Request Upon Request Upon Request Upon Request | Office | Full Build-Out | Now |
| 8th Floor, Ste 800 | 7,629 SF | Negotiable | Upon Request Upon Request Upon Request Upon Request | Office | Spec Suite | Now |
| 10th Floor, Ste 1000 | 7,605 SF | Negotiable | Upon Request Upon Request Upon Request Upon Request | Office | - | Now |
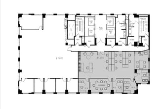
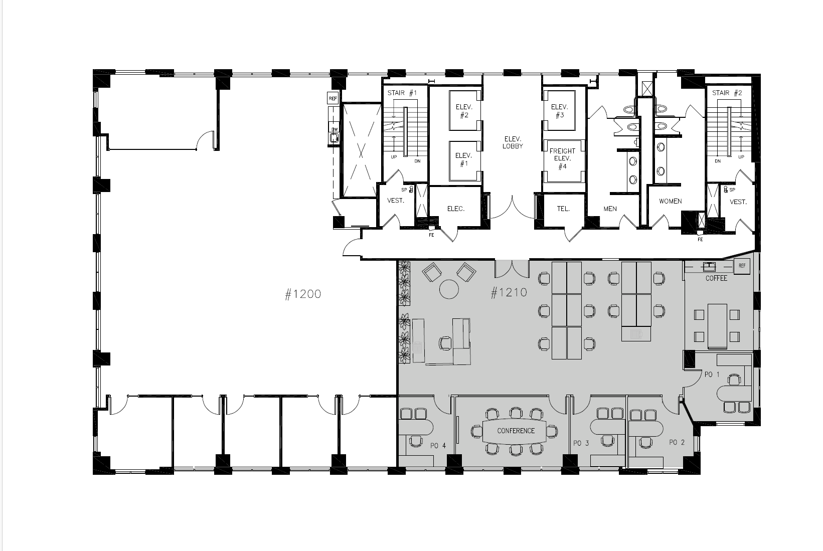
| 12th Floor, Ste 1200 | 4,584 SF | Negotiable | Upon Request Upon Request Upon Request Upon Request | Office | - | Now |
| 16th Floor, Ste 1600 | 7,372 SF | Negotiable | Upon Request Upon Request Upon Request Upon Request | Office | - | Now |
2nd Floor, Ste 210
| Size |
| 3,704 SF |
| Term |
| Negotiable |
| Rental Rate |
| Upon Request Upon Request Upon Request Upon Request |
| Space Use |
| Office |
| Build-Out |
| - |
| Available |
| Now |
3rd Floor, Ste 300
| Size |
| 7,666 SF |
| Term |
| Negotiable |
| Rental Rate |
| Upon Request Upon Request Upon Request Upon Request |
| Space Use |
| Office |
| Build-Out |
| Full Build-Out |
| Available |
| 30 Days |
7th Floor, Ste 700
| Size |
| 6,556 SF |
| Term |
| Negotiable |
| Rental Rate |
| Upon Request Upon Request Upon Request Upon Request |
| Space Use |
| Office |
| Build-Out |
| Full Build-Out |
| Available |
| Now |
8th Floor, Ste 800
| Size |
| 7,629 SF |
| Term |
| Negotiable |
| Rental Rate |
| Upon Request Upon Request Upon Request Upon Request |
| Space Use |
| Office |
| Build-Out |
| Spec Suite |
| Available |
| Now |
10th Floor, Ste 1000
| Size |
| 7,605 SF |
| Term |
| Negotiable |
| Rental Rate |
| Upon Request Upon Request Upon Request Upon Request |
| Space Use |
| Office |
| Build-Out |
| - |
| Available |
| Now |
12th Floor, Ste 1200
| Size |
| 4,584 SF |
| Term |
| Negotiable |
| Rental Rate |
| Upon Request Upon Request Upon Request Upon Request |
| Space Use |
| Office |
| Build-Out |
| - |
| Available |
| Now |
16th Floor, Ste 1600
| Size |
| 7,372 SF |
| Term |
| Negotiable |
| Rental Rate |
| Upon Request Upon Request Upon Request Upon Request |
| Space Use |
| Office |
| Build-Out |
| - |
| Available |
| Now |
2nd Floor, Ste 210
| Size | 3,704 SF |
| Term | Negotiable |
| Rental Rate | Upon Request |
| Space Use | Office |
| Build-Out | - |
| Available | Now |
Can be Fully Furnished, 5 Private Offices, 2 Conference Rooms, Kitchenette Area
3rd Floor, Ste 300
| Size | 7,666 SF |
| Term | Negotiable |
| Rental Rate | Upon Request |
| Space Use | Office |
| Build-Out | Full Build-Out |
| Available | 30 Days |
• Full floor 2nd generation creative suite • Exposed ceilings • 1 conference room • 10 private offices/meeting rooms • IT/storage room • Open space • Kitchenette
- Fully Built-Out as Standard Office
- Mostly Open Floor Plan Layout
- 9 Private Offices
- 2 Conference Rooms
- Space is in Excellent Condition
- Kitchen
- Exposed Ceiling
- Bay Area Views
7th Floor, Ste 700
| Size | 6,556 SF |
| Term | Negotiable |
| Rental Rate | Upon Request |
| Space Use | Office |
| Build-Out | Full Build-Out |
| Available | Now |
• Creative suite with exposed ceiling • 2 conference rooms • 6 various sized meeting rooms • Open kitchen • Open area • Landlord will furnish
- Fully Built-Out as Standard Office
- Open Floor Plan Layout
- 6 Private Offices
- 2 Conference Rooms
- Kitchen
- Exposed Ceiling
- Bay Area Views
8th Floor, Ste 800
| Size | 7,629 SF |
| Term | Negotiable |
| Rental Rate | Upon Request |
| Space Use | Office |
| Build-Out | Spec Suite |
| Available | Now |
Full floor fully furnished plug and play creative spec suite. Open space, 1 large conference room, 5 private offices/meeting rooms, nice outlooks and natural light.
- Open Floor Plan Layout
- 5 Private Offices
- 1 Conference Room
- Plug & Play
- Natural Light
- Bay Area Views
10th Floor, Ste 1000
| Size | 7,605 SF |
| Term | Negotiable |
| Rental Rate | Upon Request |
| Space Use | Office |
| Build-Out | - |
| Available | Now |
2nd gen creative spec suite, Can be fully furnished, 1 large & 6 medium meeting rooms, Good outlooks & natural light
12th Floor, Ste 1200
| Size | 4,584 SF |
| Term | Negotiable |
| Rental Rate | Upon Request |
| Space Use | Office |
| Build-Out | - |
| Available | Now |
5 Private Offices, 1 Conference Room, Partially Furnished, Updated Kitchen
16th Floor, Ste 1600
| Size | 7,372 SF |
| Term | Negotiable |
| Rental Rate | Upon Request |
| Space Use | Office |
| Build-Out | - |
| Available | Now |
• 7,372 RSF • Available now • Open plan • Kitchen • Large double-height boardroom • 8 Various sized private offices / meeting rooms • 3 Exclusive balconies / decks Virtual Tour: https://my.matterport.com/show/?m=ZEsJYxbDiig
Property Overview
250 Montgomery Street offers a premier office leasing opportunity in the heart of San Francisco’s Financial District. This 16-story Class A office tower combines modern functionality with a prime location, providing tenants with exceptional access to public transportation, hotels, and a wide array of dining and retail options. The building features flexible side-core floor plates of approximately 7,650 RSF, designed for efficiency and adaptability to various workspace configurations. Recent upgrades include elevator modernization with destination dispatch technology, ensuring smooth vertical transportation throughout the property. Tenants benefit from significant window lines that deliver abundant natural light and inspiring city views. Floors are virtually column-free, enhancing layout flexibility for open-plan or private office designs. On-site amenities include a world-renowned Flagship CrossFit facility, adding convenience for health-conscious professionals. Positioned within walking distance of BART, Muni, and major thoroughfares, 250 Montgomery Street is ideal for businesses seeking a central, connected location in San Francisco’s most dynamic business district.
- Fitness Center
- Food Service
- Restaurant
- Central Heating
- Wi-Fi
- Air Conditioning
Property Facts
Sustainability
Sustainability
LEED Certification Developed by the U.S. Green Building Council (USGBC), the Leadership in Energy and Environmental Design (LEED) is a green building certification program focused on the design, construction, operation, and maintenance of green buildings, homes, and neighborhoods, which aims to help building owners and operators be environmentally responsible and use resources efficiently. LEED certification is a globally recognized symbol of sustainability achievement and leadership. To achieve LEED certification, a project earns points by adhering to prerequisites and credits that address carbon, energy, water, waste, transportation, materials, health and indoor environmental quality. Projects go through a verification and review process and are awarded points that correspond to a level of LEED certification: Platinum (80+ points) Gold (60-79 points) Silver (50-59 points) Certified (40-49 points)
Presented by
250 Montgomery St
Hmm, there seems to have been an error sending your message. Please try again.
Thanks! Your message was sent.
























