Your email has been sent.
CBD – Move-In Ready Offices 250 N Orange Ave 980 - 19,556 SF of 4-Star Space Available in Orlando, FL 32801



HIGHLIGHTS
- Office Suites: Sizes Range from ±1,000 SF up to ±7,000 SF
- Parking: 1/1,000 (Surface), 2/1,000 (Overall) + City Garages & Street Parking
- Access: Superior in Downtown Orlando with 3 Block Frontage to Orange Ave., Robinson St. & Jefferson St.
- Views: 360 Degree Unobstructed Views with Floor-to-Ceiling Windows
- Location: in Central Business District with over 80,000 jobs
- Signage: Directory, Suite & Possible Building
ALL AVAILABLE SPACES(5)
Display Rental Rate as
- SPACE
- SIZE
- TERM
- RENTAL RATE
- SPACE USE
- CONDITION
- AVAILABLE
Ideal for a restaurant with an outdoor eating area
- Lease rate does not include utilities, property expenses or building services
- Spacious outdoor seating/patio area
- Located in-line with other retail
- Surrounded by office and residential buildings
Total Available: 7,016 SF Customizable Floor Plate
- Rate includes utilities, building services and property expenses
- Floor-to-Ceiling Glass Windows
- Fits 18 - 57 People
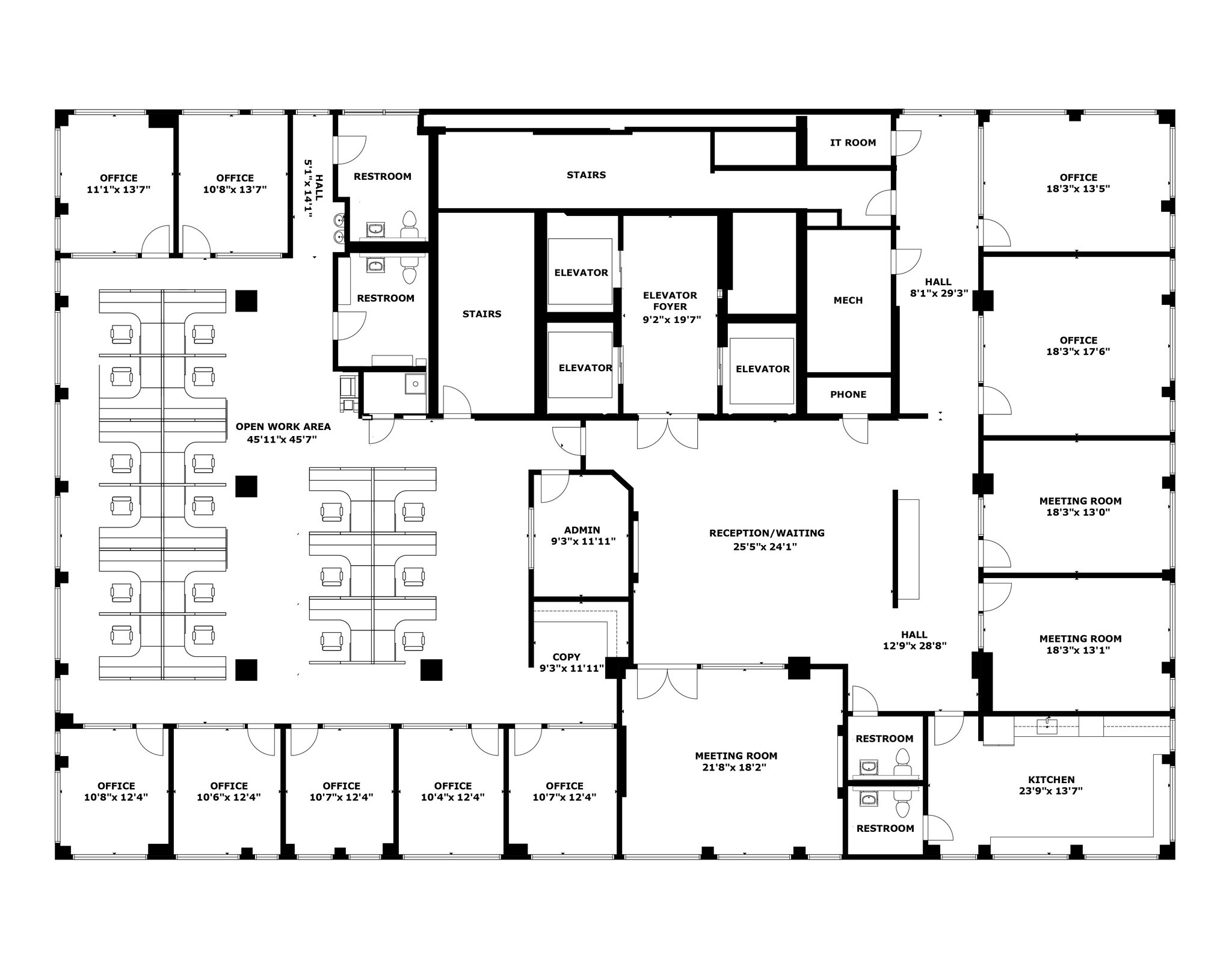
Two combined suites - STE 900: 2,904 sf & STE 990: 980 sf
- Rate includes utilities, building services and property expenses
- Mostly Open Floor Plan Layout
- 6 Private Offices
- 12 Workstations
- Fully Built-Out as Standard Office
- Fits 8 - 24 People
- 2 Conference Rooms
- Space is in Excellent Condition
Two combined suites - STE 900: 2,904 sf & STE 990: 980 sf
- Rate includes utilities, building services and property expenses
- Mostly Open Floor Plan Layout
- 6 Private Offices
- 12 Workstations
- Fully Built-Out as Standard Office
- Fits 3 - 8 People
- 2 Conference Rooms
- Space is in Excellent Condition
2nd Gen Law firm
- Rate includes utilities, building services and property expenses
- Fits 20 - 30 People
- 3 Conference Rooms
- Full floor, Floor-to-ceiling windows
- Fully Built-Out as Standard Office
- 9 Private Offices
- Space is in Excellent Condition
| Space | Size | Term | Rental Rate | Space Use | Condition | Available |
| Ground, Ste 100 | 1,640 SF | Negotiable | Upon Request Upon Request Upon Request Upon Request | Retail | Shell Space | Now |
| 8th Floor, Ste 800 | 7,016 SF | 1-5 Years | $39.43 CAD/SF/YR $3.29 CAD/SF/MO $276,615 CAD/YR $23,051 CAD/MO | Office | Shell Space | Now |
| 9th Floor, Ste 900 | 2,904 SF | Negotiable | Upon Request Upon Request Upon Request Upon Request | Office | Full Build-Out | 2026-04-01 |
| 9th Floor, Ste 990 | 980 SF | Negotiable | Upon Request Upon Request Upon Request Upon Request | Office | Full Build-Out | 2026-04-01 |
| 14th Floor, Ste 1400 | 7,016 SF | Negotiable | $42.19 CAD/SF/YR $3.52 CAD/SF/MO $296,027 CAD/YR $24,669 CAD/MO | Office | Full Build-Out | 2026-02-01 |
Ground, Ste 100
| Size |
| 1,640 SF |
| Term |
| Negotiable |
| Rental Rate |
| Upon Request Upon Request Upon Request Upon Request |
| Space Use |
| Retail |
| Condition |
| Shell Space |
| Available |
| Now |
8th Floor, Ste 800
| Size |
| 7,016 SF |
| Term |
| 1-5 Years |
| Rental Rate |
| $39.43 CAD/SF/YR $3.29 CAD/SF/MO $276,615 CAD/YR $23,051 CAD/MO |
| Space Use |
| Office |
| Condition |
| Shell Space |
| Available |
| Now |
9th Floor, Ste 900
| Size |
| 2,904 SF |
| Term |
| Negotiable |
| Rental Rate |
| Upon Request Upon Request Upon Request Upon Request |
| Space Use |
| Office |
| Condition |
| Full Build-Out |
| Available |
| 2026-04-01 |
9th Floor, Ste 990
| Size |
| 980 SF |
| Term |
| Negotiable |
| Rental Rate |
| Upon Request Upon Request Upon Request Upon Request |
| Space Use |
| Office |
| Condition |
| Full Build-Out |
| Available |
| 2026-04-01 |
14th Floor, Ste 1400
| Size |
| 7,016 SF |
| Term |
| Negotiable |
| Rental Rate |
| $42.19 CAD/SF/YR $3.52 CAD/SF/MO $296,027 CAD/YR $24,669 CAD/MO |
| Space Use |
| Office |
| Condition |
| Full Build-Out |
| Available |
| 2026-02-01 |
Ground, Ste 100
| Size | 1,640 SF |
| Term | Negotiable |
| Rental Rate | Upon Request |
| Space Use | Retail |
| Condition | Shell Space |
| Available | Now |
Ideal for a restaurant with an outdoor eating area
- Lease rate does not include utilities, property expenses or building services
- Located in-line with other retail
- Spacious outdoor seating/patio area
- Surrounded by office and residential buildings
8th Floor, Ste 800
| Size | 7,016 SF |
| Term | 1-5 Years |
| Rental Rate | $39.43 CAD/SF/YR |
| Space Use | Office |
| Condition | Shell Space |
| Available | Now |
Total Available: 7,016 SF Customizable Floor Plate
- Rate includes utilities, building services and property expenses
- Fits 18 - 57 People
- Floor-to-Ceiling Glass Windows
9th Floor, Ste 900
| Size | 2,904 SF |
| Term | Negotiable |
| Rental Rate | Upon Request |
| Space Use | Office |
| Condition | Full Build-Out |
| Available | 2026-04-01 |
Two combined suites - STE 900: 2,904 sf & STE 990: 980 sf
- Rate includes utilities, building services and property expenses
- Fully Built-Out as Standard Office
- Mostly Open Floor Plan Layout
- Fits 8 - 24 People
- 6 Private Offices
- 2 Conference Rooms
- 12 Workstations
- Space is in Excellent Condition
9th Floor, Ste 990
| Size | 980 SF |
| Term | Negotiable |
| Rental Rate | Upon Request |
| Space Use | Office |
| Condition | Full Build-Out |
| Available | 2026-04-01 |
Two combined suites - STE 900: 2,904 sf & STE 990: 980 sf
- Rate includes utilities, building services and property expenses
- Fully Built-Out as Standard Office
- Mostly Open Floor Plan Layout
- Fits 3 - 8 People
- 6 Private Offices
- 2 Conference Rooms
- 12 Workstations
- Space is in Excellent Condition
14th Floor, Ste 1400
| Size | 7,016 SF |
| Term | Negotiable |
| Rental Rate | $42.19 CAD/SF/YR |
| Space Use | Office |
| Condition | Full Build-Out |
| Available | 2026-02-01 |
2nd Gen Law firm
- Rate includes utilities, building services and property expenses
- Fully Built-Out as Standard Office
- Fits 20 - 30 People
- 9 Private Offices
- 3 Conference Rooms
- Space is in Excellent Condition
- Full floor, Floor-to-ceiling windows
PROPERTY OVERVIEW
• Lease Rate: From $2,275/Month • Available SF: 1,257 - 7,016 SF • All Included: + Electric & Air Conditioning + Janitor/Cleaning + Parking + Move-In Ready Suites • Surface level parking included in rent • One block from the Orange County Courthouse • Within walking distance from many restaurants, cafes, coffee shops, and bars • Located off of W. Robinson St. which provides quick access to I-4, State Road 408, East Colonial Drive (SR-50), and 17-92 • Suites delivered with new flooring and paint • Floor-to-ceiling windows, with spectacular downtown views
- Banking
- Bus Line
- Commuter Rail
- Property Manager on Site
- Signage
PROPERTY FACTS
Presented by
CBD – Move-In Ready Offices | 250 N Orange Ave
Hmm, there seems to have been an error sending your message. Please try again.
Thanks! Your message was sent.













