Log In/Sign Up
Your email has been sent.
2501 E Elm St 10,980 SF Health Care Building Offered at $1,298,460 CAD in Tucson, AZ 85716



Executive Summary
Building Size: ±10,980 SF
Sale Price: $950,000
Year Built: 1970
Assessor Parcel no.: 123-02-288A
Zoning: C-1, City of Tucson
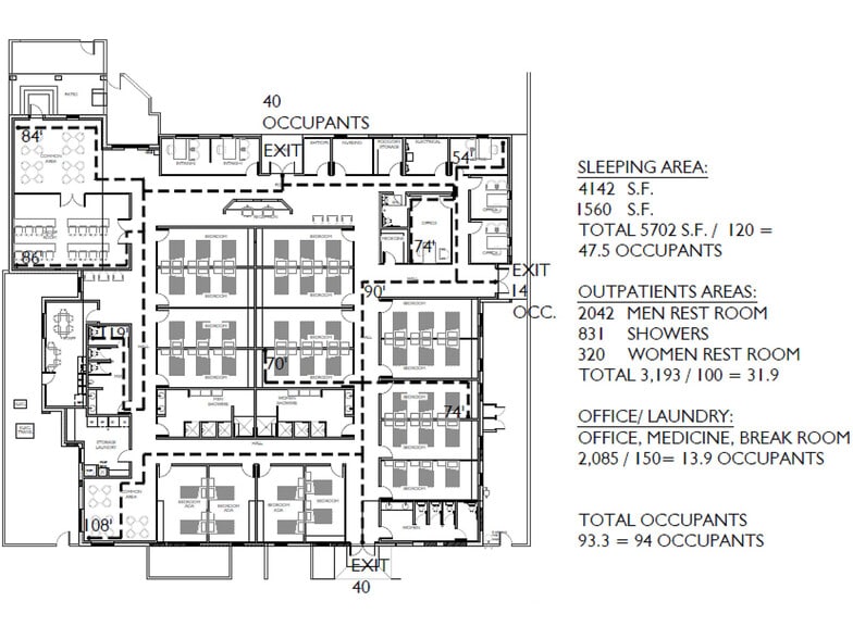
Zoning and approved building plans in place to build out an inpatient drug and alcohol treatment center for 47 beds
Parking: ±37 spaces
Sale Price: $950,000
Year Built: 1970
Assessor Parcel no.: 123-02-288A
Zoning: C-1, City of Tucson
Zoning and approved building plans in place to build out an inpatient drug and alcohol treatment center for 47 beds
Parking: ±37 spaces
Property Facts
| Price | $1,298,460 CAD | Lot Size | 0.73 AC |
| Price Per Bed | $27,627 CAD | Building Size | 10,980 SF |
| Sale Type | Investment or Owner User | No. Beds | 47 |
| Property Type | Health Care | No. Stories | 1 |
| Property Subtype | Rehabilitation Center | Year Built | 1970 |
| Building Class | B | Parking Ratio | 4.28/1,000 SF |
| Zoning | C-1 - C-1, also zoned for R&D, Retail or Office | ||
| Price | $1,298,460 CAD |
| Price Per Bed | $27,627 CAD |
| Sale Type | Investment or Owner User |
| Property Type | Health Care |
| Property Subtype | Rehabilitation Center |
| Building Class | B |
| Lot Size | 0.73 AC |
| Building Size | 10,980 SF |
| No. Beds | 47 |
| No. Stories | 1 |
| Year Built | 1970 |
| Parking Ratio | 4.28/1,000 SF |
| Zoning | C-1 - C-1, also zoned for R&D, Retail or Office |
Amenities
- Wheelchair Accessible
1 1
Bike Score®
Biker's Paradise (93)
Property Taxes
| Parcel Numbers | Improvements Assessment | $0 CAD | |
| Land Assessment | $0 CAD | Total Assessment | $132,261 CAD |
Property Taxes
Parcel Numbers
Land Assessment
$0 CAD
Improvements Assessment
$0 CAD
Total Assessment
$132,261 CAD
1 of 21
Videos
Matterport 3D Exterior
Matterport 3D Tour
Photos
Street View
Street
Map
1 of 1
Presented by
2501 E Elm St
Already a member? Log In
Hmm, there seems to have been an error sending your message. Please try again.
Thanks! Your message was sent.
Your message has been sent!
Activate your LoopNet account now to track properties, get real-time alerts, save time on future inquiries, and more.
