Your email has been sent.
T3 Bayside 251 Queens Quay E 2,180 - 199,969 SF of 4-Star Office Space Available in Toronto, ON M5A 1B6



All Available Spaces(12)
Display Rental Rate as
- Space
- Size
- Term
- Rental Rate
- Space Use
- Condition
- Available
13’ floor-to-floor heights. 10’ 3” floor-to-ceiling windows provide natural light that penetrates to the core of the building. Exposed ceiling showcases timber structure while providing additional height.
- Partially Built-Out as Standard Office
- Mostly Open Floor Plan Layout
• 13’ floor-to-floor heights • 10’-3” floor-to-ceiling windows provide natural light that penetrates to the core of the building • Exposed ceiling showcases timber structure while providing additional height • Generous core depths and column spacing for planning flexibility
- Rate includes utilities, building services and property expenses
- Mostly Open Floor Plan Layout
- 1 Conference Room
- Space is in Excellent Condition
- Central Air Conditioning
- Exposed Ceiling
- After Hours HVAC Available
- Fully Built-Out as Standard Office
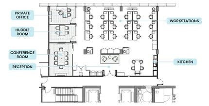
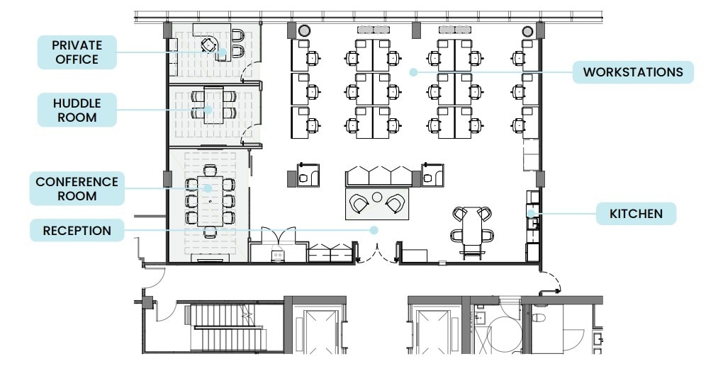
- 1 Private Office
- 14 Workstations
- Plug & Play
- High Ceilings
- Natural Light
• Unique double-height office floor opportunities with generous ceiling heights • Exposed ceiling showcases timber structure, while providing additional height • Large, open floor plans with 45’ lease spans
- Lease rate does not include utilities, property expenses or building services
- Mostly Open Floor Plan Layout
- 3 Conference Rooms
- Space is in Excellent Condition
- Reception Area
- High Ceilings
- After Hours HVAC Available
- Fully Built-Out as Standard Office
- 2 Private Offices
- 24 Workstations
- Central Air Conditioning
- Kitchen
- Natural Light
• Unique double-height office floor opportunities with generous ceiling heights • Exposed ceiling showcases timber structure, while providing additional height • Large, open floor plans with 45’ lease spans
- Lease rate does not include utilities, property expenses or building services
- Mostly Open Floor Plan Layout
- 3 Conference Rooms
- Space is in Excellent Condition
- Reception Area
- High Ceilings
- After Hours HVAC Available
- Fully Built-Out as Standard Office
- 2 Private Offices
- 24 Workstations
- Central Air Conditioning
- Kitchen
- Natural Light
• Unique double-height office floor opportunities with generous ceiling heights • Exposed ceiling showcases timber structure, while providing additional height • Large, open floor plans with 45’ lease spans
- Lease rate does not include utilities, property expenses or building services
- Mostly Open Floor Plan Layout
- 1 Conference Room
- Space is in Excellent Condition
- Reception Area
- High Ceilings
- After Hours HVAC Available
- Fully Built-Out as Standard Office
- 2 Private Offices
- 22 Workstations
- Central Air Conditioning
- Kitchen
- Natural Light
• Unique double-height office floor opportunities with generous ceiling heights • Exposed ceiling showcases timber structure, while providing additional height • Large, open floor plans with 45’ lease spans
- Lease rate does not include utilities, property expenses or building services
- Mostly Open Floor Plan Layout
- 5 Conference Rooms
- Space is in Excellent Condition
- Reception Area
- High Ceilings
- After Hours HVAC Available
- Fully Built-Out as Standard Office
- 2 Private Offices
- 36 Workstations
- Central Air Conditioning
- Kitchen
- Natural Light
• Unique double-height office floor opportunities with generous ceiling heights • Exposed ceiling showcases timber structure, while providing additional height • Large, open floor plans with 45’ lease spans
- Lease rate does not include utilities, property expenses or building services
- Central Air Conditioning
- Natural Light
- Can be combined with additional space(s) for up to 176,910 SF of adjacent space
- High Ceilings
- After Hours HVAC Available
• Unique double-height office floor opportunities with generous ceiling heights • Exposed ceiling showcases timber structure, while providing additional height • Large, open floor plans with 45’ lease spans
- Lease rate does not include utilities, property expenses or building services
- Central Air Conditioning
- Natural Light
- Can be combined with additional space(s) for up to 176,910 SF of adjacent space
- High Ceilings
- After Hours HVAC Available
• Unique double-height office floor opportunities with generous ceiling heights • Exposed ceiling showcases timber structure, while providing additional height • Large, open floor plans with 45’ lease spans
- Lease rate does not include utilities, property expenses or building services
- Central Air Conditioning
- Natural Light
- Can be combined with additional space(s) for up to 176,910 SF of adjacent space
- High Ceilings
- After Hours HVAC Available
• Unique double-height office floor opportunities with generous ceiling heights • Exposed ceiling showcases timber structure, while providing additional height • Large, open floor plans with 45’ lease spans
- Lease rate does not include utilities, property expenses or building services
- Central Air Conditioning
- Natural Light
- Can be combined with additional space(s) for up to 176,910 SF of adjacent space
- High Ceilings
- After Hours HVAC Available
• Unique double-height office floor opportunities with generous ceiling heights • Exposed ceiling showcases timber structure, while providing additional height • Large, open floor plans with 45’ lease spans
- Lease rate does not include utilities, property expenses or building services
- Central Air Conditioning
- Natural Light
- Can be combined with additional space(s) for up to 176,910 SF of adjacent space
- High Ceilings
- After Hours HVAC Available
• Unique double-height office floor opportunities with generous ceiling heights • Exposed ceiling showcases timber structure, while providing additional height • Large, open floor plans with 45’ lease spans
- Lease rate does not include utilities, property expenses or building services
- Central Air Conditioning
- Natural Light
- Can be combined with additional space(s) for up to 176,910 SF of adjacent space
- High Ceilings
- After Hours HVAC Available
| Space | Size | Term | Rental Rate | Space Use | Condition | Available |
| 3rd Floor, Ste 301 | 2,833 SF | 1-10 Years | Upon Request Upon Request Upon Request Upon Request | Office | Partial Build-Out | Now |
| 3rd Floor, Ste 302 | 2,180 SF | 1-10 Years | $65.00 CAD/SF/YR $5.42 CAD/SF/MO $141,700 CAD/YR $11,808 CAD/MO | Office | Full Build-Out | Now |
| 4th Floor, Ste 401 | 3,461 SF | 1-10 Years | $42.50 CAD/SF/YR $3.54 CAD/SF/MO $147,093 CAD/YR $12,258 CAD/MO | Office | Full Build-Out | 2026-03-01 |
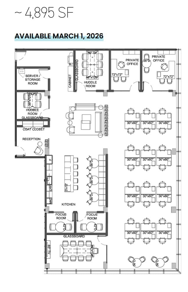
| 4th Floor, Ste 402 | 4,895 SF | 1-10 Years | $42.50 CAD/SF/YR $3.54 CAD/SF/MO $208,038 CAD/YR $17,336 CAD/MO | Office | Full Build-Out | 2026-03-01 |
| 4th Floor, Ste 403 | 3,461 SF | 1-10 Years | $42.50 CAD/SF/YR $3.54 CAD/SF/MO $147,093 CAD/YR $12,258 CAD/MO | Office | Full Build-Out | 2026-03-01 |
| 4th Floor, Ste 404 | 6,229 SF | 1-10 Years | $42.50 CAD/SF/YR $3.54 CAD/SF/MO $264,733 CAD/YR $22,061 CAD/MO | Office | Full Build-Out | 2026-03-01 |
| 5th Floor | 3,000-29,485 SF | 1-10 Years | $42.50 CAD/SF/YR $3.54 CAD/SF/MO $1,253,113 CAD/YR $104,426 CAD/MO | Office | Shell Space | Now |
| 6th Floor | 3,000-29,485 SF | 1-10 Years | $42.50 CAD/SF/YR $3.54 CAD/SF/MO $1,253,113 CAD/YR $104,426 CAD/MO | Office | Shell Space | Now |
| 7th Floor | 3,000-29,485 SF | 1-10 Years | $42.50 CAD/SF/YR $3.54 CAD/SF/MO $1,253,113 CAD/YR $104,426 CAD/MO | Office | Shell Space | Now |
| 8th Floor | 3,000-29,485 SF | 1-10 Years | $42.50 CAD/SF/YR $3.54 CAD/SF/MO $1,253,113 CAD/YR $104,426 CAD/MO | Office | Shell Space | Now |
| 9th Floor | 3,000-29,485 SF | 1-10 Years | $42.50 CAD/SF/YR $3.54 CAD/SF/MO $1,253,113 CAD/YR $104,426 CAD/MO | Office | Shell Space | Now |
| 10th Floor | 3,000-29,485 SF | 1-10 Years | $42.50 CAD/SF/YR $3.54 CAD/SF/MO $1,253,113 CAD/YR $104,426 CAD/MO | Office | Shell Space | Now |
3rd Floor, Ste 301
| Size |
| 2,833 SF |
| Term |
| 1-10 Years |
| Rental Rate |
| Upon Request Upon Request Upon Request Upon Request |
| Space Use |
| Office |
| Condition |
| Partial Build-Out |
| Available |
| Now |
3rd Floor, Ste 302
| Size |
| 2,180 SF |
| Term |
| 1-10 Years |
| Rental Rate |
| $65.00 CAD/SF/YR $5.42 CAD/SF/MO $141,700 CAD/YR $11,808 CAD/MO |
| Space Use |
| Office |
| Condition |
| Full Build-Out |
| Available |
| Now |
4th Floor, Ste 401
| Size |
| 3,461 SF |
| Term |
| 1-10 Years |
| Rental Rate |
| $42.50 CAD/SF/YR $3.54 CAD/SF/MO $147,093 CAD/YR $12,258 CAD/MO |
| Space Use |
| Office |
| Condition |
| Full Build-Out |
| Available |
| 2026-03-01 |
4th Floor, Ste 402
| Size |
| 4,895 SF |
| Term |
| 1-10 Years |
| Rental Rate |
| $42.50 CAD/SF/YR $3.54 CAD/SF/MO $208,038 CAD/YR $17,336 CAD/MO |
| Space Use |
| Office |
| Condition |
| Full Build-Out |
| Available |
| 2026-03-01 |
4th Floor, Ste 403
| Size |
| 3,461 SF |
| Term |
| 1-10 Years |
| Rental Rate |
| $42.50 CAD/SF/YR $3.54 CAD/SF/MO $147,093 CAD/YR $12,258 CAD/MO |
| Space Use |
| Office |
| Condition |
| Full Build-Out |
| Available |
| 2026-03-01 |
4th Floor, Ste 404
| Size |
| 6,229 SF |
| Term |
| 1-10 Years |
| Rental Rate |
| $42.50 CAD/SF/YR $3.54 CAD/SF/MO $264,733 CAD/YR $22,061 CAD/MO |
| Space Use |
| Office |
| Condition |
| Full Build-Out |
| Available |
| 2026-03-01 |
5th Floor
| Size |
| 3,000-29,485 SF |
| Term |
| 1-10 Years |
| Rental Rate |
| $42.50 CAD/SF/YR $3.54 CAD/SF/MO $1,253,113 CAD/YR $104,426 CAD/MO |
| Space Use |
| Office |
| Condition |
| Shell Space |
| Available |
| Now |
6th Floor
| Size |
| 3,000-29,485 SF |
| Term |
| 1-10 Years |
| Rental Rate |
| $42.50 CAD/SF/YR $3.54 CAD/SF/MO $1,253,113 CAD/YR $104,426 CAD/MO |
| Space Use |
| Office |
| Condition |
| Shell Space |
| Available |
| Now |
7th Floor
| Size |
| 3,000-29,485 SF |
| Term |
| 1-10 Years |
| Rental Rate |
| $42.50 CAD/SF/YR $3.54 CAD/SF/MO $1,253,113 CAD/YR $104,426 CAD/MO |
| Space Use |
| Office |
| Condition |
| Shell Space |
| Available |
| Now |
8th Floor
| Size |
| 3,000-29,485 SF |
| Term |
| 1-10 Years |
| Rental Rate |
| $42.50 CAD/SF/YR $3.54 CAD/SF/MO $1,253,113 CAD/YR $104,426 CAD/MO |
| Space Use |
| Office |
| Condition |
| Shell Space |
| Available |
| Now |
9th Floor
| Size |
| 3,000-29,485 SF |
| Term |
| 1-10 Years |
| Rental Rate |
| $42.50 CAD/SF/YR $3.54 CAD/SF/MO $1,253,113 CAD/YR $104,426 CAD/MO |
| Space Use |
| Office |
| Condition |
| Shell Space |
| Available |
| Now |
10th Floor
| Size |
| 3,000-29,485 SF |
| Term |
| 1-10 Years |
| Rental Rate |
| $42.50 CAD/SF/YR $3.54 CAD/SF/MO $1,253,113 CAD/YR $104,426 CAD/MO |
| Space Use |
| Office |
| Condition |
| Shell Space |
| Available |
| Now |
3rd Floor, Ste 301
| Size | 2,833 SF |
| Term | 1-10 Years |
| Rental Rate | Upon Request |
| Space Use | Office |
| Condition | Partial Build-Out |
| Available | Now |
13’ floor-to-floor heights. 10’ 3” floor-to-ceiling windows provide natural light that penetrates to the core of the building. Exposed ceiling showcases timber structure while providing additional height.
- Partially Built-Out as Standard Office
- Mostly Open Floor Plan Layout
3rd Floor, Ste 302
| Size | 2,180 SF |
| Term | 1-10 Years |
| Rental Rate | $65.00 CAD/SF/YR |
| Space Use | Office |
| Condition | Full Build-Out |
| Available | Now |
• 13’ floor-to-floor heights • 10’-3” floor-to-ceiling windows provide natural light that penetrates to the core of the building • Exposed ceiling showcases timber structure while providing additional height • Generous core depths and column spacing for planning flexibility
- Rate includes utilities, building services and property expenses
- Fully Built-Out as Standard Office
- Mostly Open Floor Plan Layout
- 1 Private Office
- 1 Conference Room
- 14 Workstations
- Space is in Excellent Condition
- Plug & Play
- Central Air Conditioning
- High Ceilings
- Exposed Ceiling
- Natural Light
- After Hours HVAC Available
4th Floor, Ste 401
| Size | 3,461 SF |
| Term | 1-10 Years |
| Rental Rate | $42.50 CAD/SF/YR |
| Space Use | Office |
| Condition | Full Build-Out |
| Available | 2026-03-01 |
• Unique double-height office floor opportunities with generous ceiling heights • Exposed ceiling showcases timber structure, while providing additional height • Large, open floor plans with 45’ lease spans
- Lease rate does not include utilities, property expenses or building services
- Fully Built-Out as Standard Office
- Mostly Open Floor Plan Layout
- 2 Private Offices
- 3 Conference Rooms
- 24 Workstations
- Space is in Excellent Condition
- Central Air Conditioning
- Reception Area
- Kitchen
- High Ceilings
- Natural Light
- After Hours HVAC Available
4th Floor, Ste 402
| Size | 4,895 SF |
| Term | 1-10 Years |
| Rental Rate | $42.50 CAD/SF/YR |
| Space Use | Office |
| Condition | Full Build-Out |
| Available | 2026-03-01 |
• Unique double-height office floor opportunities with generous ceiling heights • Exposed ceiling showcases timber structure, while providing additional height • Large, open floor plans with 45’ lease spans
- Lease rate does not include utilities, property expenses or building services
- Fully Built-Out as Standard Office
- Mostly Open Floor Plan Layout
- 2 Private Offices
- 3 Conference Rooms
- 24 Workstations
- Space is in Excellent Condition
- Central Air Conditioning
- Reception Area
- Kitchen
- High Ceilings
- Natural Light
- After Hours HVAC Available
4th Floor, Ste 403
| Size | 3,461 SF |
| Term | 1-10 Years |
| Rental Rate | $42.50 CAD/SF/YR |
| Space Use | Office |
| Condition | Full Build-Out |
| Available | 2026-03-01 |
• Unique double-height office floor opportunities with generous ceiling heights • Exposed ceiling showcases timber structure, while providing additional height • Large, open floor plans with 45’ lease spans
- Lease rate does not include utilities, property expenses or building services
- Fully Built-Out as Standard Office
- Mostly Open Floor Plan Layout
- 2 Private Offices
- 1 Conference Room
- 22 Workstations
- Space is in Excellent Condition
- Central Air Conditioning
- Reception Area
- Kitchen
- High Ceilings
- Natural Light
- After Hours HVAC Available
4th Floor, Ste 404
| Size | 6,229 SF |
| Term | 1-10 Years |
| Rental Rate | $42.50 CAD/SF/YR |
| Space Use | Office |
| Condition | Full Build-Out |
| Available | 2026-03-01 |
• Unique double-height office floor opportunities with generous ceiling heights • Exposed ceiling showcases timber structure, while providing additional height • Large, open floor plans with 45’ lease spans
- Lease rate does not include utilities, property expenses or building services
- Fully Built-Out as Standard Office
- Mostly Open Floor Plan Layout
- 2 Private Offices
- 5 Conference Rooms
- 36 Workstations
- Space is in Excellent Condition
- Central Air Conditioning
- Reception Area
- Kitchen
- High Ceilings
- Natural Light
- After Hours HVAC Available
5th Floor
| Size | 3,000-29,485 SF |
| Term | 1-10 Years |
| Rental Rate | $42.50 CAD/SF/YR |
| Space Use | Office |
| Condition | Shell Space |
| Available | Now |
• Unique double-height office floor opportunities with generous ceiling heights • Exposed ceiling showcases timber structure, while providing additional height • Large, open floor plans with 45’ lease spans
- Lease rate does not include utilities, property expenses or building services
- Can be combined with additional space(s) for up to 176,910 SF of adjacent space
- Central Air Conditioning
- High Ceilings
- Natural Light
- After Hours HVAC Available
6th Floor
| Size | 3,000-29,485 SF |
| Term | 1-10 Years |
| Rental Rate | $42.50 CAD/SF/YR |
| Space Use | Office |
| Condition | Shell Space |
| Available | Now |
• Unique double-height office floor opportunities with generous ceiling heights • Exposed ceiling showcases timber structure, while providing additional height • Large, open floor plans with 45’ lease spans
- Lease rate does not include utilities, property expenses or building services
- Can be combined with additional space(s) for up to 176,910 SF of adjacent space
- Central Air Conditioning
- High Ceilings
- Natural Light
- After Hours HVAC Available
7th Floor
| Size | 3,000-29,485 SF |
| Term | 1-10 Years |
| Rental Rate | $42.50 CAD/SF/YR |
| Space Use | Office |
| Condition | Shell Space |
| Available | Now |
• Unique double-height office floor opportunities with generous ceiling heights • Exposed ceiling showcases timber structure, while providing additional height • Large, open floor plans with 45’ lease spans
- Lease rate does not include utilities, property expenses or building services
- Can be combined with additional space(s) for up to 176,910 SF of adjacent space
- Central Air Conditioning
- High Ceilings
- Natural Light
- After Hours HVAC Available
8th Floor
| Size | 3,000-29,485 SF |
| Term | 1-10 Years |
| Rental Rate | $42.50 CAD/SF/YR |
| Space Use | Office |
| Condition | Shell Space |
| Available | Now |
• Unique double-height office floor opportunities with generous ceiling heights • Exposed ceiling showcases timber structure, while providing additional height • Large, open floor plans with 45’ lease spans
- Lease rate does not include utilities, property expenses or building services
- Can be combined with additional space(s) for up to 176,910 SF of adjacent space
- Central Air Conditioning
- High Ceilings
- Natural Light
- After Hours HVAC Available
9th Floor
| Size | 3,000-29,485 SF |
| Term | 1-10 Years |
| Rental Rate | $42.50 CAD/SF/YR |
| Space Use | Office |
| Condition | Shell Space |
| Available | Now |
• Unique double-height office floor opportunities with generous ceiling heights • Exposed ceiling showcases timber structure, while providing additional height • Large, open floor plans with 45’ lease spans
- Lease rate does not include utilities, property expenses or building services
- Can be combined with additional space(s) for up to 176,910 SF of adjacent space
- Central Air Conditioning
- High Ceilings
- Natural Light
- After Hours HVAC Available
10th Floor
| Size | 3,000-29,485 SF |
| Term | 1-10 Years |
| Rental Rate | $42.50 CAD/SF/YR |
| Space Use | Office |
| Condition | Shell Space |
| Available | Now |
• Unique double-height office floor opportunities with generous ceiling heights • Exposed ceiling showcases timber structure, while providing additional height • Large, open floor plans with 45’ lease spans
- Lease rate does not include utilities, property expenses or building services
- Can be combined with additional space(s) for up to 176,910 SF of adjacent space
- Central Air Conditioning
- High Ceilings
- Natural Light
- After Hours HVAC Available
Features and Amenities
- Security System
- Roof Terrace
- Car Charging Station
- Bicycle Storage
Property Facts
Sustainability
Sustainability
LEED Certification Led by the Canada Green Building Council (CAGBC), the Leadership in Energy and Environmental Design (LEED) is a green building certification program focused on the design, construction, operation, and maintenance of green buildings, homes, and neighborhoods, which aims to help building owners and operators be environmentally responsible and use resources efficiently. LEED certification is a globally recognized symbol of sustainability achievement and leadership. To achieve LEED certification, a project earns points by adhering to prerequisites and credits that address carbon, energy, water, waste, transportation, materials, health and indoor environmental quality. Projects go through a verification and review process and are awarded points that correspond to a level of LEED certification: Platinum (80+ points) Gold (60-79 points) Silver (50-59 points) Certified (40-49 points)
Presented by
T3 Bayside | 251 Queens Quay E
Hmm, there seems to have been an error sending your message. Please try again.
Thanks! Your message was sent.















