Your email has been sent.
Crane Co. Building of Memphis 254 Court Ave 53,736 SF 87% Leased Office Building Memphis, TN 38103 For Sale 9.50% Cap Rate



INVESTMENT HIGHLIGHTS
- Crane Co. Building of Memphis offers a fully renovated 53,800-SF Class A office building, 85% leased to established legal and tech professionals.
- Features Zero Trust Security, HD interior/exterior cameras with remote viewing, 24/7 key-card access, and a 2023 HVAC system upgrade.
- Steps from the Courthouse, Justice Center, and St. Jude, with walkable access to AutoZone Park, FedEx Forum, YMCA, cafés, and restaurants.
- Fully ADA-compliant with upgraded building systems, 100% fire sprinklers, alarm monitoring, Cat 5 wiring, and building-wide Wi-Fi.
- On-site private catering, hospitality-driven design, and productivity-focused amenities support a thriving legal-tech tenant environment.
- Minutes to I-40, I-55, and I-240 via Danny Thomas Blvd, this iconic property is a rare value-add investment with financing options available.
EXECUTIVE SUMMARY
Designed with hospitality and productivity in mind, the property features custom-built workstations, natural light-filled offices, and glass-separated collaborative layouts. On-site amenities include private catering services, zero-trust security with 24/7 key-card access, HD surveillance, and private gated surface parking. With a strong rental history and financing available, this is a premier value-add investment opportunity in a thriving downtown market.
254 Court Avenue meets current building and fire codes and is ADA compliant. Infrastructure upgrades include fire sprinkler coverage, fire detection and alarm monitoring, and comprehensive security alarm coverage. The Crane Co. Building of Memphis features Cat 5 wiring, building-wide Wi-Fi, and dual fiber service, offering seamless connectivity. In 2023, a new HVAC central controller system and individual unit controls were installed, enhancing energy efficiency. The offering includes an adjacent private gated parking lot with 43 spaces.
Strategically located in the legal and civic core of Downtown Memphis, the property offers exceptional access to major interstates, including Interstates 40, 55, and the 240 Loop, just minutes away via Danny Thomas Boulevard. Walkable to the Shelby County Courthouse, Memphis Justice Center, and St. Jude, the building also sits near major attractions like AutoZone Park, FedEx Forum, the YMCA, and a wide range of restaurants and coffee shops. This central downtown location is surrounded by key institutions, a growing talent base, and ongoing urban revitalization efforts.
With its strong occupancy, modern amenities, and premium location, the Crane Co. Building of Memphis stands as a rare investment asset in one of the city's most dynamic professional corridors.
MATTERPORT 3D TOURS
View Virtual Tour of the Lobby
/2
PROPERTY FACTS
AMENITIES
- Bus Line
- Signage
MAJOR TENANTS
- TENANT
- INDUSTRY
- SF OCCUPIED
- RENT/SF
- LEASE TYPE
- LEASE END
- Dr. Sidney Ornduff
- -
- -
- -
- -
- -
Fargarson & Brooke is a privately held law firm headquartered in Memphis, Tennessee. Established in 1958, the firm provides legal services in general civil litigation, insurance law, antitrust, employment law, and personal injury. The firm is led by attorneys Bruce Douglas Brooke and Robert Melvyn Fargarson, both of whom have decades of experience in trial and appellate practice. Fargarson & Brooke operates from its downtown Memphis office and maintains a small team of approximately 18 employees. The firm has received AV Preeminent peer ratings for professional excellence and ethical standards.
Gulley Law Firm is a privately held legal practice based in Memphis, Tennessee. Founded in 2011, the firm specializes in criminal defense, personal injury, and business litigation. Led by attorney James M. Gulley, the firm operates from two Memphis offices, including its downtown location on Court Avenue. Gulley Law Firm is known for its trial experience, having handled a wide range of cases from DUI and domestic violence to homicide and civil disputes. The firm maintains a small team of fewer than 10 employees and serves clients throughout Shelby County.
- Joint Tech Inc Engineering
- -
- -
- -
- -
- -
- Memphis TV & Film Commission
- -
- -
- -
- -
- -
- Philip Harvey - Attorney
- -
- -
- -
- -
- -
Reaves Law Firm, based in Memphis, Tennessee, is a privately held law practice focusing on personal injury and bankruptcy cases. Founded in 2011 by Henry E. Reaves III, the firm represents clients in matters such as auto accidents, wrongful death, and catastrophic injuries. Over the years, it has expanded its presence to serve clients in Tennessee, Arkansas, and Mississippi. The firm emphasizes litigation and advocacy for individuals facing complex legal challenges and has built a reputation for securing significant settlements and verdicts.
- The Morris Law Firm
- -
- -
- -
- -
- -
- The Rolwes Law Firm
- -
- -
- -
- -
- -
| TENANT | INDUSTRY | SF OCCUPIED | RENT/SF | LEASE TYPE | LEASE END | |
| Dr. Sidney Ornduff | - | - | - | - | - | |
| Fargarson & Brooke | - | - | - | Full Service | - | |
| Gulley Law Firm | - | - | - | Full Service | - | |
| Joint Tech Inc Engineering | - | - | - | - | - | |
| Memphis TV & Film Commission | - | - | - | - | - | |
| Philip Harvey - Attorney | - | - | - | - | - | |
|
- | - | - | Full Service | - | |
| The Morris Law Firm | - | - | - | - | - | |
| The Rolwes Law Firm | - | - | - | - | - |
SPACE AVAILABILITY
- SPACE
- SIZE
- SPACE USE
- CONDITION
- AVAILABLE
Flex space offers a large 225-square-foot corner office for $665/month with a 12-month minimum term, inclusive of all utilities and amenities except parking.
Flex furnished office totaling 130 square feet for $525 per month with a 3-month minimum term, including all utilities and amenities except parking.
Flex office space totaling 185 square feet for $625 per month with a 12-month minimum term, including all utilities and amenities except parking.
Two combined offices totaling 405 square feet are available for $1,195 per month with a 12-month minimum term, including all utilities and amenities except parking. Note: Suite #215 may be combined with #217 for a total of 1,005 square feet.
A large 600-square-foot office is available for $950 per month with a 3-month minimum term, including all utilities and amenities except parking. Note: Suite #217 may be combined with #215 for a total area of 1,005 square feet.
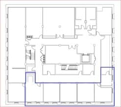
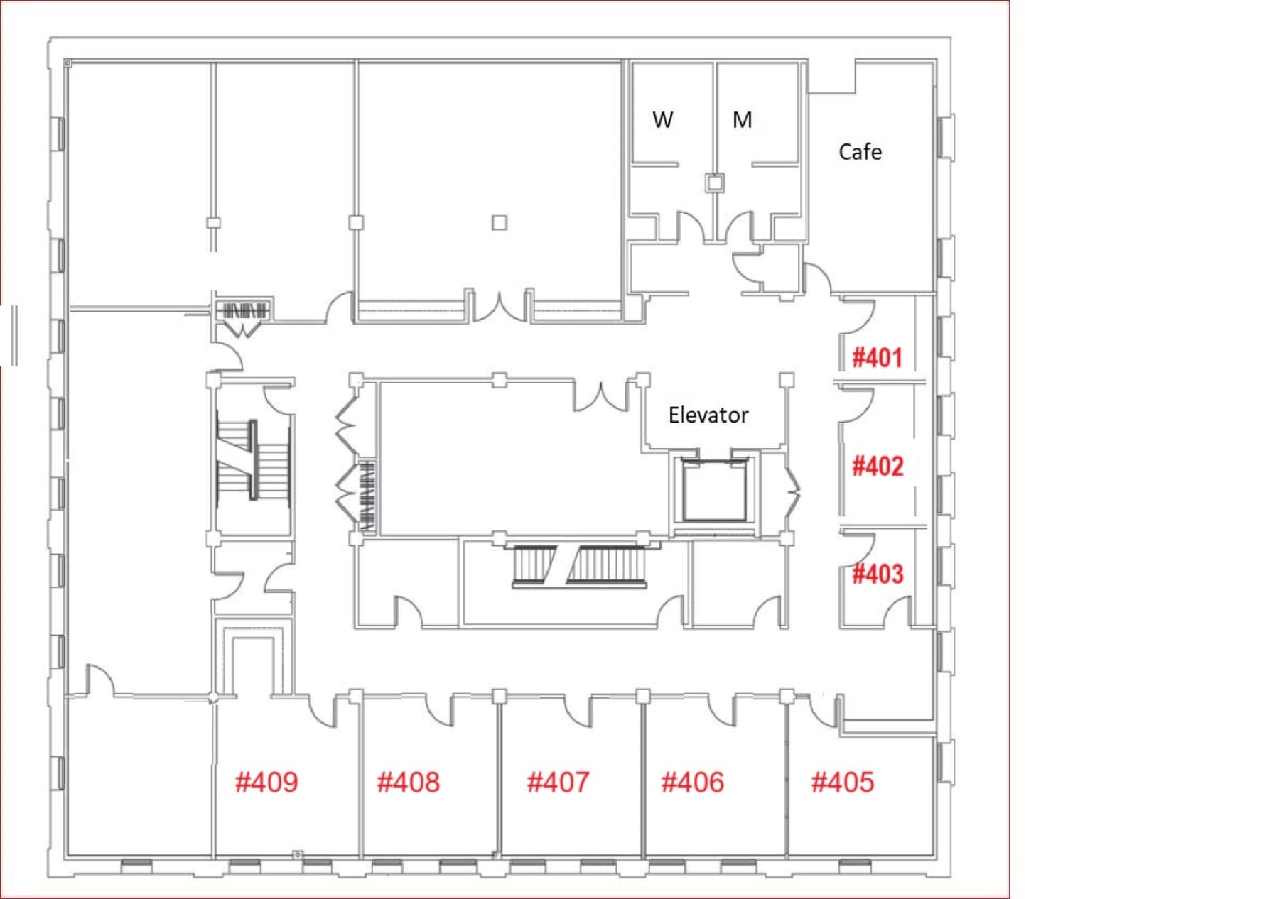
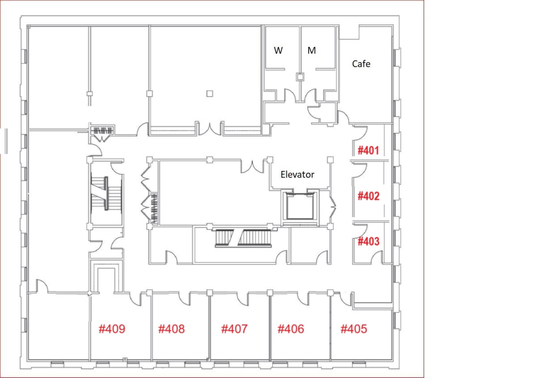
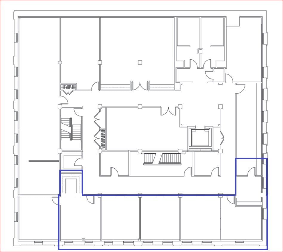
TECH-style office space. Combine #401 - #409 for 2200 sf - Call for Price
A 100-square-foot TECH-style furnished office is available for $485 per month with a 12-month minimum term, including all utilities and amenities except parking.
A TECH-style furnished office totaling 220 square feet is available for $675 per month with a 12-month minimum term, including all utilities and amenities except parking.
A 100-square-foot TECH-style furnished office is available for $495 per month with a 12-month minimum term, including all utilities and amenities except parking. May be combined with #405 - #409 up to 2000 sf - Call for price
Beautiful TECH-style corner offices of approximately 275 square feet available at $825/m May be combined with #406 - #409 up to 2000 sf - Call for price
Beautiful TECH-style office of approximately 300 square feet available at $825/m May be combined with #405 - #409 up to 2000 sf - Call for price
Beautiful TECH-style office of approximately 300 square feet available at $825/m May be combined with #405 - #409 up to 2000 sf - Call for price
Beautiful TECH-style office of approximately 300 square feet available at $825/m May be combined with #405 - #409 up to 2000 sf - Call for price
Beautiful TECH-style office of approximately 400 square feet available at $825/m May be combined with #405 - #408 up to 2000 sf - Call for price
A 145-square-foot Luxe office, ideal for professionals, is available unfurnished for $625 per month. A furnished option is available for an additional $50 per month.
Suite 513 is a large 520-square-foot LUXE double office available for $1,450 per month. Add Suite 514, which is 420 square feet, for a combined total of 940 square feet at $2,150 per month. Everything is included except parking.
| Space | Size | Space Use | Condition | Available |
| 2nd Fl-Ste 201 | 225 SF | Office | Full Build-Out | Now |
| 2nd Fl-Ste 202 | 130 SF | Office | Full Build-Out | Now |
| 2nd Fl-Ste 208 | 185 SF | Office | Full Build-Out | Now |
| 2nd Fl-Ste 215 - 216 | 405 SF | Office | Full Build-Out | Now |
| 2nd Fl-Ste 217 | 600 SF | Office | Full Build-Out | Now |
| 4th Floor | 2,200 SF | Office | Full Build-Out | Now |
| 4th Fl-Ste 401 | 100 SF | Office | Full Build-Out | Now |
| 4th Fl-Ste 402 | 220 SF | Office | Full Build-Out | Now |
| 4th Fl-Ste 403 | 100 SF | Office | Full Build-Out | Now |
| 4th Fl-Ste 405 | 275 SF | Office | Full Build-Out | Now |
| 4th Fl-Ste 406 | 300 SF | Office | Full Build-Out | Now |
| 4th Fl-Ste 407 | 300 SF | Office | Full Build-Out | Now |
| 4th Fl-Ste 408 | 300 SF | Office | Full Build-Out | Now |
| 4th Fl-Ste 409 | 400 SF | Office | Full Build-Out | Now |
| 5th Fl-Ste 503 | 145 SF | Office | Full Build-Out | Now |
| 5th Fl-Ste 513 | 530-950 SF | Office | Full Build-Out | Now |
2nd Fl-Ste 201
| Size |
| 225 SF |
| Space Use |
| Office |
| Condition |
| Full Build-Out |
| Available |
| Now |
2nd Fl-Ste 202
| Size |
| 130 SF |
| Space Use |
| Office |
| Condition |
| Full Build-Out |
| Available |
| Now |
2nd Fl-Ste 208
| Size |
| 185 SF |
| Space Use |
| Office |
| Condition |
| Full Build-Out |
| Available |
| Now |
2nd Fl-Ste 215 - 216
| Size |
| 405 SF |
| Space Use |
| Office |
| Condition |
| Full Build-Out |
| Available |
| Now |
2nd Fl-Ste 217
| Size |
| 600 SF |
| Space Use |
| Office |
| Condition |
| Full Build-Out |
| Available |
| Now |
4th Floor
| Size |
| 2,200 SF |
| Space Use |
| Office |
| Condition |
| Full Build-Out |
| Available |
| Now |
4th Fl-Ste 401
| Size |
| 100 SF |
| Space Use |
| Office |
| Condition |
| Full Build-Out |
| Available |
| Now |
4th Fl-Ste 402
| Size |
| 220 SF |
| Space Use |
| Office |
| Condition |
| Full Build-Out |
| Available |
| Now |
4th Fl-Ste 403
| Size |
| 100 SF |
| Space Use |
| Office |
| Condition |
| Full Build-Out |
| Available |
| Now |
4th Fl-Ste 405
| Size |
| 275 SF |
| Space Use |
| Office |
| Condition |
| Full Build-Out |
| Available |
| Now |
4th Fl-Ste 406
| Size |
| 300 SF |
| Space Use |
| Office |
| Condition |
| Full Build-Out |
| Available |
| Now |
4th Fl-Ste 407
| Size |
| 300 SF |
| Space Use |
| Office |
| Condition |
| Full Build-Out |
| Available |
| Now |
4th Fl-Ste 408
| Size |
| 300 SF |
| Space Use |
| Office |
| Condition |
| Full Build-Out |
| Available |
| Now |
4th Fl-Ste 409
| Size |
| 400 SF |
| Space Use |
| Office |
| Condition |
| Full Build-Out |
| Available |
| Now |
5th Fl-Ste 503
| Size |
| 145 SF |
| Space Use |
| Office |
| Condition |
| Full Build-Out |
| Available |
| Now |
5th Fl-Ste 513
| Size |
| 530-950 SF |
| Space Use |
| Office |
| Condition |
| Full Build-Out |
| Available |
| Now |
2nd Fl-Ste 201
| Size | 225 SF |
| Space Use | Office |
| Condition | Full Build-Out |
| Available | Now |
Flex space offers a large 225-square-foot corner office for $665/month with a 12-month minimum term, inclusive of all utilities and amenities except parking.
2nd Fl-Ste 202
| Size | 130 SF |
| Space Use | Office |
| Condition | Full Build-Out |
| Available | Now |
Flex furnished office totaling 130 square feet for $525 per month with a 3-month minimum term, including all utilities and amenities except parking.
2nd Fl-Ste 208
| Size | 185 SF |
| Space Use | Office |
| Condition | Full Build-Out |
| Available | Now |
Flex office space totaling 185 square feet for $625 per month with a 12-month minimum term, including all utilities and amenities except parking.
2nd Fl-Ste 215 - 216
| Size | 405 SF |
| Space Use | Office |
| Condition | Full Build-Out |
| Available | Now |
Two combined offices totaling 405 square feet are available for $1,195 per month with a 12-month minimum term, including all utilities and amenities except parking. Note: Suite #215 may be combined with #217 for a total of 1,005 square feet.
2nd Fl-Ste 217
| Size | 600 SF |
| Space Use | Office |
| Condition | Full Build-Out |
| Available | Now |
A large 600-square-foot office is available for $950 per month with a 3-month minimum term, including all utilities and amenities except parking. Note: Suite #217 may be combined with #215 for a total area of 1,005 square feet.
4th Floor
| Size | 2,200 SF |
| Space Use | Office |
| Condition | Full Build-Out |
| Available | Now |
TECH-style office space. Combine #401 - #409 for 2200 sf - Call for Price
4th Fl-Ste 401
| Size | 100 SF |
| Space Use | Office |
| Condition | Full Build-Out |
| Available | Now |
A 100-square-foot TECH-style furnished office is available for $485 per month with a 12-month minimum term, including all utilities and amenities except parking.
4th Fl-Ste 402
| Size | 220 SF |
| Space Use | Office |
| Condition | Full Build-Out |
| Available | Now |
A TECH-style furnished office totaling 220 square feet is available for $675 per month with a 12-month minimum term, including all utilities and amenities except parking.
4th Fl-Ste 403
| Size | 100 SF |
| Space Use | Office |
| Condition | Full Build-Out |
| Available | Now |
A 100-square-foot TECH-style furnished office is available for $495 per month with a 12-month minimum term, including all utilities and amenities except parking. May be combined with #405 - #409 up to 2000 sf - Call for price
4th Fl-Ste 405
| Size | 275 SF |
| Space Use | Office |
| Condition | Full Build-Out |
| Available | Now |
Beautiful TECH-style corner offices of approximately 275 square feet available at $825/m May be combined with #406 - #409 up to 2000 sf - Call for price
4th Fl-Ste 406
| Size | 300 SF |
| Space Use | Office |
| Condition | Full Build-Out |
| Available | Now |
Beautiful TECH-style office of approximately 300 square feet available at $825/m May be combined with #405 - #409 up to 2000 sf - Call for price
4th Fl-Ste 407
| Size | 300 SF |
| Space Use | Office |
| Condition | Full Build-Out |
| Available | Now |
Beautiful TECH-style office of approximately 300 square feet available at $825/m May be combined with #405 - #409 up to 2000 sf - Call for price
4th Fl-Ste 408
| Size | 300 SF |
| Space Use | Office |
| Condition | Full Build-Out |
| Available | Now |
Beautiful TECH-style office of approximately 300 square feet available at $825/m May be combined with #405 - #409 up to 2000 sf - Call for price
4th Fl-Ste 409
| Size | 400 SF |
| Space Use | Office |
| Condition | Full Build-Out |
| Available | Now |
Beautiful TECH-style office of approximately 400 square feet available at $825/m May be combined with #405 - #408 up to 2000 sf - Call for price
5th Fl-Ste 503
| Size | 145 SF |
| Space Use | Office |
| Condition | Full Build-Out |
| Available | Now |
A 145-square-foot Luxe office, ideal for professionals, is available unfurnished for $625 per month. A furnished option is available for an additional $50 per month.
5th Fl-Ste 513
| Size | 530-950 SF |
| Space Use | Office |
| Condition | Full Build-Out |
| Available | Now |
Suite 513 is a large 520-square-foot LUXE double office available for $1,450 per month. Add Suite 514, which is 420 square feet, for a combined total of 940 square feet at $2,150 per month. Everything is included except parking.
DEMOGRAPHICS
Demographics
PROPERTY TAXES
| Parcel Number | 00-2027-0-0012C | Improvements Assessment | $56 CAD |
| Land Assessment | $506 CAD | Total Assessment | $562 CAD |
PROPERTY TAXES
Presented by
Crane Co. Building of Memphis | 254 Court Ave
Hmm, there seems to have been an error sending your message. Please try again.
Thanks! Your message was sent.































