Log In/Sign Up
Your email has been sent.
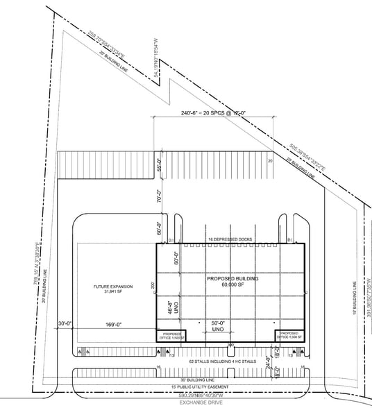
255 Exchange Drive 255 Exchange 117,045 SF Vacant 4-Star Industrial Building Crystal Lake, IL 60014 For Sale



Investment Highlights
- Proposed new construction in Crystal Lake Business Center
- OUTDOOR STORAGE potential as accessory use
- Opportunity for build-to-suit & facility customization
- Trailer parking potential
Executive Summary
Proposed new construction for sale, lease or build-to-suit on last available industrial lot in Crystal Lake Business Center. Up to 117k SF (divisible) building available with potential truck/trailer parking and OUTDOOR STORAGE as accessory use.
Property Facts
Space Availability
- Space
- Size
- Space Use
- Build-Out
- Available
Flexible BTS offering with up to 117,045 SF available and customizable office space staring at around 5,000 SF.
| Space | Size | Space Use | Build-Out | Available |
| 1st Floor | 25,000-117,045 SF | Industrial | - | Jul 2027 |
1st Floor
| Size |
| 25,000-117,045 SF |
| Space Use |
| Industrial |
| Build-Out |
| - |
| Available |
| Jul 2027 |
1 of 3
Videos
Matterport 3D Exterior
Matterport 3D Tour
Photos
Street View
Street
Map
1st Floor
| Size | 25,000-117,045 SF |
| Space Use | Industrial |
| Build-Out | - |
| Available | Jul 2027 |
Flexible BTS offering with up to 117,045 SF available and customizable office space staring at around 5,000 SF.
1 1
Fairly walkable
50/100
Exceptionally drivable
100/100
Limited public transit
30/100
Fairly bikeable
50/100
Property Taxes
| Parcel Number | 19-04-251-025 | Improvements Assessment | $0 CAD |
| Land Assessment | $349,535 CAD | Total Assessment | $349,535 CAD |
Property Taxes
Parcel Number
19-04-251-025
Land Assessment
$349,535 CAD
Improvements Assessment
$0 CAD
Total Assessment
$349,535 CAD
1 of 5
Videos
Matterport 3D Exterior
Matterport 3D Tour
Photos
Street View
Street
Map
1 of 1
Presented by
255 Exchange Drive | 255 Exchange
Already a member? Log In
Hmm, there seems to have been an error sending your message. Please try again.
Thanks! Your message was sent.



