Log In/Sign Up
Your email has been sent.
Park Highlights
- Rear-load configuration with dock-high and grade-level access.
- 277/480V 3-phase power with 1,050 amps main service.
- Direct access to SR-54 and proximity to Veterans Expressway.
- 24’ clear height and 40’x40’ column spacing for operational flexibility.
- Forklift charging stations and LED lighting with sensors.
- Surrounded by national food chains and business-class hotels.
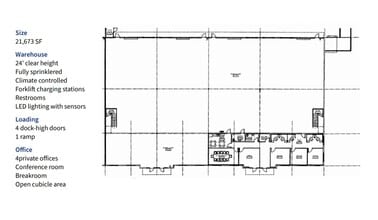
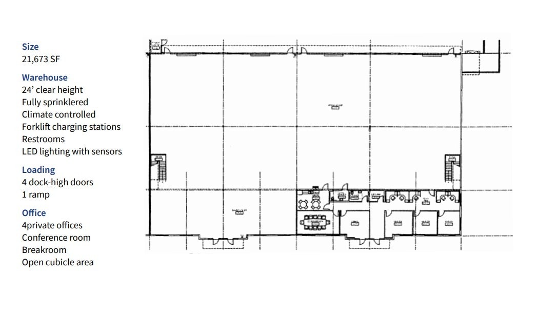
Park Facts
| Total Space Available | 21,673 SF | Park Type | Industrial Park |
| Total Space Available | 21,673 SF |
| Park Type | Industrial Park |
All Available Space(1)
Display Rental Rate as
Asturia Corporate Center
2600 Lakepointe Pky - Asturia Corporate Center - Building 2
21,673 SF
|
Upon Request
Upon Request
Upon Request
Upon Request
Upon Request
Upon Request
Building Type/Class
Industrial/A
Building Subtype
Manufacturing
Building Size
68,654 SF
Lot Size
5.57 AC
Year Built
2019
Construction
Reinforced Concrete
Clear Height
24’
Column Spacing
40’ x 40’
Drive In Bays
2
Dock Doors
23
Sprinkler System
Wet
Power Supply
Amps: 1,050 Volts: 277-480 Wire: 4
Zoning
I - Industrial
- Space
- Size
- Term
- Rental Rate
- Space Use
- Build-Out
- Available
LED Lighting with sensors.
- Lease rate does not include utilities, property expenses or building services
- 1 Drive Bay
- 4 Loading Docks
- Climate controlled.
- 1 grade level.
- Includes 4,000 SF of dedicated office space
- Space is in Excellent Condition
- Central Air Conditioning
- 4 docks.
| Space | Size | Term | Rental Rate | Space Use | Build-Out | Available |
| 1st Floor | 21,673 SF | Negotiable | Upon Request Upon Request Upon Request Upon Request | Industrial | Partial Build-Out | 30 Days |
Asturia Corporate Center
2600 Lakepointe Pky - Asturia Corporate Center - Building 2
21,673 SF
|
Upon Request
Upon Request
Upon Request
Upon Request
Upon Request
Upon Request
Building Type/Class
Industrial/A
Building Subtype
Manufacturing
Building Size
68,654 SF
Lot Size
5.57 AC
Year Built
2019
Construction
Reinforced Concrete
Clear Height
24’
Column Spacing
40’ x 40’
Drive In Bays
2
Dock Doors
23
Sprinkler System
Wet
Power Supply
Amps: 1,050 Volts: 277-480 Wire: 4
Zoning
I - Industrial
2600 Lakepointe Pky - 1st Floor
Size
21,673 SF
Term
Negotiable
Rental Rate
Upon Request
Upon Request
Upon Request
Upon Request
Space Use
Industrial
Build-Out
Partial Build-Out
Available
30 Days
1 of 1
Videos
Matterport 3D Exterior
Matterport 3D Tour
Photos
Street View
Street
Map
2600 Lakepointe Pky - 1st Floor
| Size | 21,673 SF |
| Term | Negotiable |
| Rental Rate | Upon Request |
| Space Use | Industrial |
| Build-Out | Partial Build-Out |
| Available | 30 Days |
LED Lighting with sensors.
- Lease rate does not include utilities, property expenses or building services
- Includes 4,000 SF of dedicated office space
- 1 Drive Bay
- Space is in Excellent Condition
- 4 Loading Docks
- Central Air Conditioning
- Climate controlled.
- 4 docks.
- 1 grade level.
Park Overview
Positioned in the heart of Pasco County’s thriving commercial corridor, Building 1 at Asturia Corporate Center offers a rare opportunity to lease Class A industrial space in a master-planned business park. This tilt-wall constructed facility features modern rear-load configuration with both dock-high and grade-level loading options, ideal for logistics, light manufacturing, or distribution operations. T
1 1
Somewhat walkable
30/100
Exceptionally drivable
100/100
Not bikeable
10/100
1 of 5
Videos
Matterport 3D Exterior
Matterport 3D Tour
Photos
Street View
Street
Map
1 of 1
Presented by
Asturia Corporate Center | Odessa, FL 33556
Already a member? Log In
Hmm, there seems to have been an error sending your message. Please try again.
Thanks! Your message was sent.





