Log In/Sign Up
Your email has been sent.
26025 Mureau Rd
Calabasas, CA 91302
Calabasas Commerce Center Bldg 1 · Office Property For Sale


Investment Highlights
- LOT SIZE 2.68 ACRES/ 116,622 SQUARE FEET
- CROSS STREETS MUREAU RD & LAS VIRGENES RD
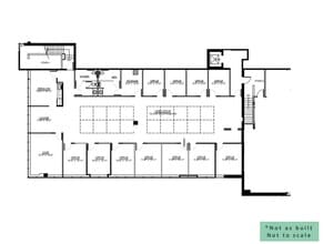
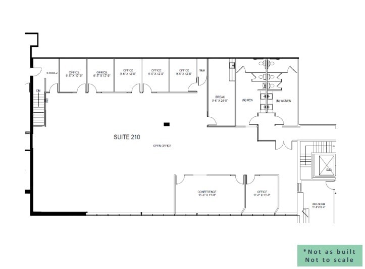
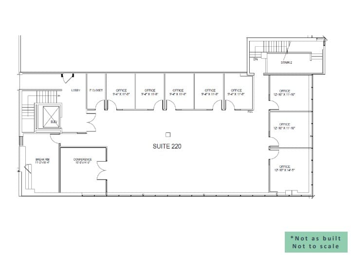
- COVERED LAND PLAY EXISTING ±45,888 SF OFFICE BUILDING ARE CURRENTLY LEASED TO OFFSET CARRYING COSTS
- PRIME LOCATION LOCATED IN THE QUIET HILLS OF CALABASAS
- MIXED-USE DEVELOPMENT ZONE POTENTIAL TO INCREASE DENSITY & FAR WITH STATE DENSITY BONUS
- ZONING CMU (0.6)
Executive Summary
CBRE proudly introduces a 2.68 Acre mixed-use or multifamily redevelopment site located at 26025 Mureau Road, Calabasas, CA 91302. The site is in a prime Calabasas location, north of the -101 and east of Las Virgenes Road.
Currently positioned as a ±45,888 SF office facility, this 2.68 acre parcel is zoned CMU for mixed-use at ±20 dwelling units per acre (2,178 SF/du). This puts the ‘by-right’ unit count at fifty-three (53) units. There is an option to utilize the State Density Bonus to build up to one hundred eight (108) residential units in addition to commercial space (Buyer to verify). The property resides in the quiet hills of Calabasas and backs up to an upscale single-family community. New commercial tenants will benefit from the lack of adjacent amenities north of the -101 freeway with ability to capture demand from the northern and eastern residences.
Situated in a prime Calabasas location, this offering presents a rare opportunity to develop mixed-use in a heavily supply constrained, upscale market of Los Angeles.
Currently positioned as a ±45,888 SF office facility, this 2.68 acre parcel is zoned CMU for mixed-use at ±20 dwelling units per acre (2,178 SF/du). This puts the ‘by-right’ unit count at fifty-three (53) units. There is an option to utilize the State Density Bonus to build up to one hundred eight (108) residential units in addition to commercial space (Buyer to verify). The property resides in the quiet hills of Calabasas and backs up to an upscale single-family community. New commercial tenants will benefit from the lack of adjacent amenities north of the -101 freeway with ability to capture demand from the northern and eastern residences.
Situated in a prime Calabasas location, this offering presents a rare opportunity to develop mixed-use in a heavily supply constrained, upscale market of Los Angeles.
Property Facts
Sale Type
Investment
Property Type
Office
Building Size
46,321 SF
Building Class
B
Year Built
1990
Percent Leased
22%
Tenancy
Multiple
Building Height
2 Stories
Typical Floor Size
23,160 SF
Slab To Slab
12’
Building FAR
0.40
Lot Size
2.67 AC
Zoning
LCA21 - Commercial
Parking
120 Spaces (3.7 Spaces per 1,000 SF Leased)
Amenities
- Signage
Property Taxes
| Parcel Number | 2052-043-011 | Improvements Assessment | $7,654,686 CAD |
| Land Assessment | $4,176,810 CAD | Total Assessment | $11,831,496 CAD |
Property Taxes
Parcel Number
2052-043-011
Land Assessment
$4,176,810 CAD
Improvements Assessment
$7,654,686 CAD
Total Assessment
$11,831,496 CAD
1 of 80
Videos
Matterport 3D Exterior
Matterport 3D Tour
Photos
Street View
Street
Map
