Log In/Sign Up
Your email has been sent.
2603 76th Ave NW 161,604 SF Vacant Industrial Building Edmonton, AB T6P 1P6 For Sale



INVESTMENT HIGHLIGHTS
- Excess yard offers potential for a CN rail siding on the west side of the property.
- Ideal for large distribution users seeking access to rail and excess yard for outdoor storage
EXECUTIVE SUMMARY
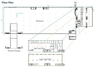
First-class southeast Edmonton distribution facility with excellent access to Anthony Henday Drive
via Sherwood Park Freeway. The building features 18 dock and 7 grade doors, 28’ clear ceiling
height, and one 5-ton bridge crane. The excess yard offers potential for a CN rail siding on the west
side of the property. Ideal for large distribution users seeking access to rail and excess yard for
outdoor storage.
via Sherwood Park Freeway. The building features 18 dock and 7 grade doors, 28’ clear ceiling
height, and one 5-ton bridge crane. The excess yard offers potential for a CN rail siding on the west
side of the property. Ideal for large distribution users seeking access to rail and excess yard for
outdoor storage.
PROPERTY FACTS
| Sale Type | Investment or Owner User | No. Stories | 1 |
| Sale Condition | Lease Option | Year Built | 2007 |
| Property Type | Industrial | Parking Ratio | 1.3/1,000 SF |
| Property Subtype | Distribution | Clear Ceiling Height | 28’ |
| Building Class | A | No. Dock-High Doors/Loading | 18 |
| Lot Size | 20.52 AC | No. Drive In / Grade-Level Doors | 7 |
| Rentable Building Area | 161,604 SF | ||
| Zoning | IM - Medium Industrial | ||
| Sale Type | Investment or Owner User |
| Sale Condition | Lease Option |
| Property Type | Industrial |
| Property Subtype | Distribution |
| Building Class | A |
| Lot Size | 20.52 AC |
| Rentable Building Area | 161,604 SF |
| No. Stories | 1 |
| Year Built | 2007 |
| Parking Ratio | 1.3/1,000 SF |
| Clear Ceiling Height | 28’ |
| No. Dock-High Doors/Loading | 18 |
| No. Drive In / Grade-Level Doors | 7 |
| Zoning | IM - Medium Industrial |
AMENITIES
- Signage
- Storage Space
SPACE AVAILABILITY
- SPACE
- SIZE
- SPACE USE
- CONDITION
- AVAILABLE
The space features 18 dock and 7 grade doors, 28' clear ceiling height, and one 5-ton bridge crane.
| Space | Size | Space Use | Condition | Available |
| 1st Floor | 161,604 SF | Industrial | Full Build-Out | Now |
1st Floor
| Size |
| 161,604 SF |
| Space Use |
| Industrial |
| Condition |
| Full Build-Out |
| Available |
| Now |
1 of 1
VIDEOS
MATTERPORT 3D EXTERIOR
MATTERPORT 3D TOUR
PHOTOS
STREET VIEW
STREET
MAP
1st Floor
| Size | 161,604 SF |
| Space Use | Industrial |
| Condition | Full Build-Out |
| Available | Now |
The space features 18 dock and 7 grade doors, 28' clear ceiling height, and one 5-ton bridge crane.
1 1
1 of 8
VIDEOS
MATTERPORT 3D EXTERIOR
MATTERPORT 3D TOUR
PHOTOS
STREET VIEW
STREET
MAP
1 of 1
Presented by
2603 76th Ave NW
Already a member? Log In
Hmm, there seems to have been an error sending your message. Please try again.
Thanks! Your message was sent.


