Your email has been sent.
Highlights
- The Crystal Building offers modern and renovated private office spaces (500 to 1,500 square feet) at the most affordable lease rates in Manhattan.
- All offices receive abundant north or south facing natural light with up to seven office suites and two shared bathrooms on each floor.
- Join an almost fully occupied building with a vibrant mix of fashion, technology, nonprofit, architecture, engineering, and other industry tenants.
- Located on 38th Street between 7th and 8th Avenue: Walking distance to Penn Station, Port Authority, Bryant Park, Hudson Yards and major subway lines.
- Offices are wired for fiber-optic internet with Verizon and Pilot and include access to a shared building pantry and conference room.
- Transparent pricing and fast, digital leasing process. Flexible one- to five-year lease terms with ability to expand in the building.
All Available Space(1)
Display Rental Rate as
- Space
- Size
- Term
- Rental Rate
- Space Use
- Build-Out
- Available
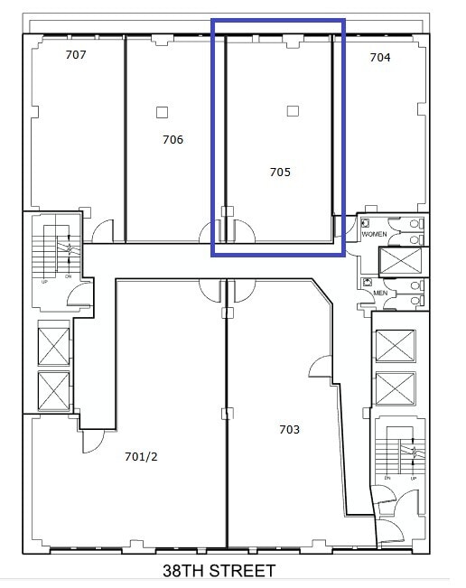
Features an open rectangle floorplan, wood floors and LED lighting. South facing natural light facing the rear of the building. Available for office or showroom use in a vibrant and nearly fully-occupied building in the garment district. 24/7 access in a well-maintained, quiet building ideal for small business, designers and fashion showrooms. Seven offices per floor with two shared bathrooms. Includes access to the building pantry and a shared conference room on the 11th floor for internal and external meetings.
- Listed rate may not include certain utilities, building services and property expenses
- Mostly Open Floor Plan Layout
- Partially Built-Out as Standard Office
| Space | Size | Term | Rental Rate | Space Use | Build-Out | Available |
| 5th Floor, Ste 507 | 968 SF | 1-10 Years | $46.48 CAD/SF/YR $3.87 CAD/SF/MO $44,994 CAD/YR $3,749 CAD/MO | Office | Partial Build-Out | Now |
5th Floor, Ste 507
| Size |
| 968 SF |
| Term |
| 1-10 Years |
| Rental Rate |
| $46.48 CAD/SF/YR $3.87 CAD/SF/MO $44,994 CAD/YR $3,749 CAD/MO |
| Space Use |
| Office |
| Build-Out |
| Partial Build-Out |
| Available |
| Now |
5th Floor, Ste 507
| Size | 968 SF |
| Term | 1-10 Years |
| Rental Rate | $46.48 CAD/SF/YR |
| Space Use | Office |
| Build-Out | Partial Build-Out |
| Available | Now |
Features an open rectangle floorplan, wood floors and LED lighting. South facing natural light facing the rear of the building. Available for office or showroom use in a vibrant and nearly fully-occupied building in the garment district. 24/7 access in a well-maintained, quiet building ideal for small business, designers and fashion showrooms. Seven offices per floor with two shared bathrooms. Includes access to the building pantry and a shared conference room on the 11th floor for internal and external meetings.
- Listed rate may not include certain utilities, building services and property expenses
- Partially Built-Out as Standard Office
- Mostly Open Floor Plan Layout
Property Overview
The Crystal Building is a 17-story office property located in the heart of New York City's Garment District on 38th Street. This well-maintained property offers modern and renovated office spaces at the most affordable prices in the area. Tenants enjoy convenient walking distance to Penn Station, the Port Authority, Bryant Park, Hudson Yards, and major subway lines. All offices provide north- or south-facing natural light, LED lighting, polished concrete floors and access to a shared building pantry and conference room available for internal and external meetings. There are up to seven office suites per floor with two shared bathrooms. The Crystal Building provides tenants with the opportunity to join a nearly fully occupied building with a vibrant mix of fashion, technology, nonprofit, architecture, engineering, and other industry tenants. Bryant Park, celebrated restaurants, and world-class entertainment are only moments away. No fees for direct inquiries. Full commission paid to an outside broker.
- 24 Hour Access
- Metro/Subway
- Security System
- Fiber Optic Internet
Property Facts
Presented by
The Crystal Building | 262 W 38th St
Hmm, there seems to have been an error sending your message. Please try again.
Thanks! Your message was sent.






