Log In/Sign Up
Your email has been sent.
26234 Minnesota 27 12,800 SF Industrial Building Pierz, MN 56364 For Sale



Investment Highlights
- Well located along Highway 27 and just off Highway 25
- 16' sidewalls with 22' center clear height
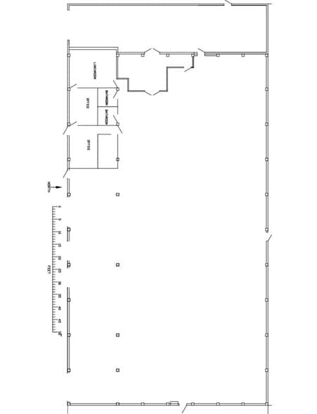
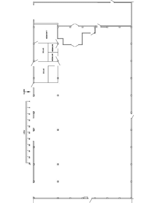
- Open functional layout including large reception, manager's office, and a break room
- Three over head doors and two dock doors
- Radiant heat in shop area
- Paved parking lot with ample capacity
Executive Summary
Inventure is pleased to present Pierz Industrial/Flex, this 12,800 square foot industrial facility is located at 26234 MN-27 in Pierz, MN. Positioned in Central Minnesota, Pierz offers convenient regional access to larger markets including St. Cloud and Brainerd, making it an ideal location for businesses seeking connectivity while benefiting from a cost-effective operating environment. The building is well-suited for a variety of industrial users, featuring 16' sidewalls and 22' center clear height, allowing for efficient manufacturing, warehousing, or service operations. The property is powered by 3-phase, 4-wire, 600-volt service with 2,000 amps, filling a wide range of operational needs. Loading and workflow include three overhead doors, one measuring 11’5” x 12’ and two at 10’ x 12’, as well as two dock doors measuring 8’ x 8’. The shop area is equipped with radiant heat, providing consistent and efficient climate control. The office and support areas include a large reception area, manager’s office, and break room, all complemented by a wide-open floor plan that allows for flexible configuration based on user needs. Property also features paved parking lot offers ample parking for employees and visitors. With its strong infrastructure, functional layout, and strategic location within Central Minnesota, 26234 MN-27 offers an excellent opportunity for businesses looking to expand or establish operations in a wellconnected and business-friendly community.
Property Facts
| Sale Type | Owner User | Lot Size | 1.32 AC |
| Property Type | Industrial | Rentable Building Area | 12,800 SF |
| Property Subtype | Service | No. Stories | 1 |
| Building Class | C | Year Built | 1982 |
| Sale Type | Owner User |
| Property Type | Industrial |
| Property Subtype | Service |
| Building Class | C |
| Lot Size | 1.32 AC |
| Rentable Building Area | 12,800 SF |
| No. Stories | 1 |
| Year Built | 1982 |
1 1
Somewhat walkable
20/100
Exceptionally drivable
100/100
Not bikeable
10/100
Property Taxes
| Parcel Number | 42.0085.003 | Improvements Assessment | $360,049 CAD |
| Land Assessment | $58,221 CAD | Total Assessment | $418,270 CAD |
Property Taxes
Parcel Number
42.0085.003
Land Assessment
$58,221 CAD
Improvements Assessment
$360,049 CAD
Total Assessment
$418,270 CAD
1 of 9
Videos
Matterport 3D Exterior
Matterport 3D Tour
Photos
Street View
Street
Map
1 of 1
Presented by
26234 Minnesota 27
Already a member? Log In
Hmm, there seems to have been an error sending your message. Please try again.
Thanks! Your message was sent.
