Log In/Sign Up
Your email has been sent.
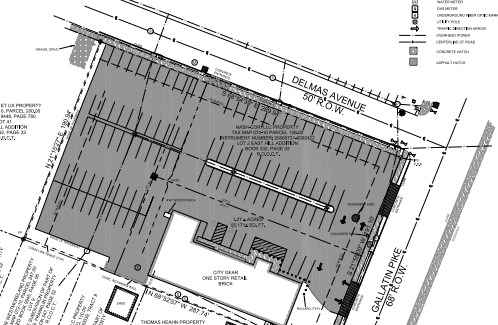
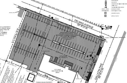
2625 Gallatin Pike 0.08 - 0.13 Acres of Commercial Land for Lease in Nashville, TN 37216

Highlights
- New Stop Light Directly on this Corner!
LOT Available
Display Rental Rate as
| Rental Rate |
|
Lot Size | 0.08 - 0.13 AC |
| Lease Term | 10 - 30 Years |
| Rental Rate | |
| Lease Term | 10 - 30 Years |
| Lot Size | 0.08 - 0.13 AC |
Ground lease available for tenant willing to build new construction. Triple net lease for build to suit. 3500 to 4500 square foot restaurant building fully allowed, with additional permitting could build up to 5,500 square feet.
Property Overview
Restaurant Pad Site available will build to suit. Prime corner with stop light on gallatin pike. Ground lease available for tenant wanting to build new construction. 3500 to 4500 square foot restaurant building fully allowed, with additional permitting could build up to 5,500 square feet.
Property Facts
| Total Space Available | 0.13 AC | Property Subtype | Commercial |
| Min. Divisible | 0.08 AC | Proposed Use | Restaurant |
| Property Type | Land |
| Total Space Available | 0.13 AC |
| Min. Divisible | 0.08 AC |
| Property Type | Land |
| Property Subtype | Commercial |
| Proposed Use | Restaurant |
1 1
Walk Score®
Very Walkable (83)
1 of 2
Videos
Matterport 3D Exterior
Matterport 3D Tour
Photos
Street View
Street
Map
1 of 1
Presented by
Rodney Dowless
2625 Gallatin Pike
Already a member? Log In
Hmm, there seems to have been an error sending your message. Please try again.
Thanks! Your message was sent.
