Your email has been sent.
Highlights
- New Monument Signage & Exterior Remodel
- New Exterior Voice Activated Security Cameras
- Major Nearby Tenants
- Direct Sight Lines to Somersville Towne Center, Smart & Final, Grocery Outlet
- Signalized Intersection & Easy Access to Highway 4 via Somersville Road On & Off Ramps
- Ample Parking - ADA Compliante
Space Availability (1)
Display Rental Rate as
- Space
- Size
- Ceiling
- Term
- Rental Rate
- Rent Type
| Space | Size | Ceiling | Term | Rental Rate | Rent Type | |
| 1st Floor, Ste 2651 | 3,657 SF | 10’ | Negotiable | Upon Request Upon Request Upon Request Upon Request | Triple Net (NNN) |
2635-2665 Somersville Rd - 1st Floor - Ste 2651
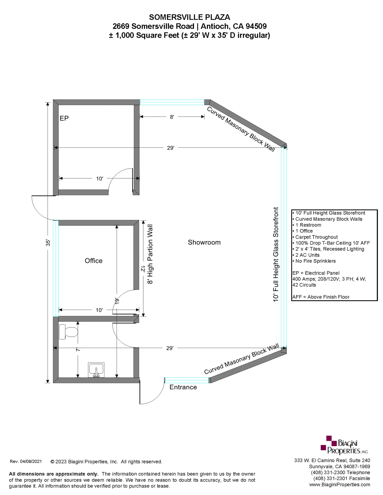
± 3,657 Square Feet (SF) (± 72’ W x 51’ D) Divisible 1,200 SF Formerly The Avenue. Inline apace with full-height glass storefront, double glass entrance doors, 100% drop t-bar ceiling at 10’ AFF (Above Finished Floor), upgraded lights and track lighting, 3 dressing rooms, storage room, 1 restroom, rear storage room with plumbing stub outs for sink, hot water over restroom, 3 separate HVAC units, 2 separate electrical panels, rear door to secured drive isle.
- Lease rate does not include utilities, property expenses or building services
- Fully Built-Out as Standard Retail Space
- Located in-line with other retail
- Space is in Excellent Condition
- Central Air and Heating
- Private Restrooms
- Drop Ceilings
- Finished Ceilings: 10’
Rent Types
The rent amount and type that the tenant (lessee) will be responsible to pay to the landlord (lessor) throughout the lease term is negotiated prior to both parties signing a lease agreement. The rent type will vary depending upon the services provided. For example, triple net rents are typically lower than full service rents due to additional expenses the tenant is required to pay in addition to the base rent. Contact the listing broker for a full understanding of any associated costs or additional expenses for each rent type.
1. Full Service: A rental rate that includes normal building standard services as provided by the landlord within a base year rental.
2. Double Net (NN): Tenant pays for only two of the building expenses; the landlord and tenant determine the specific expenses prior to signing the lease agreement.
3. Triple Net (NNN): A lease in which the tenant is responsible for all expenses associated with their proportional share of occupancy of the building.
4. Modified Gross: Modified Gross is a general type of lease rate where typically the tenant will be responsible for their proportional share of one or more of the expenses. The landlord will pay the remaining expenses. See the below list of common Modified Gross rental rate structures: 4. Plus All Utilities: A type of Modified Gross Lease where the tenant is responsible for their proportional share of utilities in addition to the rent. 4. Plus Cleaning: A type of Modified Gross Lease where the tenant is responsible for their proportional share of cleaning in addition to the rent. 4. Plus Electric: A type of Modified Gross Lease where the tenant is responsible for their proportional share of the electrical cost in addition to the rent. 4. Plus Electric & Cleaning: A type of Modified Gross Lease where the tenant is responsible for their proportional share of the electrical and cleaning cost in addition to the rent. 4. Plus Utilities and Char: A type of Modified Gross Lease where the tenant is responsible for their proportional share of the utilities and cleaning cost in addition to the rent. 4. Industrial Gross: A type of Modified Gross lease where the tenant pays one or more of the expenses in addition to the rent. The landlord and tenant determine these prior to signing the lease agreement.
5. Tenant Electric: The landlord pays for all services and the tenant is responsible for their usage of lights and electrical outlets in the space they occupy.
6. Negotiable or Upon Request: Used when the leasing contact does not provide the rent or service type.
7. TBD: To be determined; used for buildings for which no rent or service type is known, commonly utilized when the buildings are not yet built.
Select Tenants at Somersville Plaza
- Tenant
- Description
- US Locations
- Reach
- Black Diamond Market
- Retailer
- 1
- -
- Braids By Kadi Salon
- -
- 1
- -
- Forum Nail Salon
- -
- -
- -
- New Creation Wrestling & Jiu Jitsu
- Arts, Entertainment, and Recreation
- 1
- -
- Reflections Bookstore
- -
- -
- -
- VIP Snooker & Billiard Club
- -
- -
- -
| Tenant | Description | US Locations | Reach |
| Black Diamond Market | Retailer | 1 | - |
| Braids By Kadi Salon | - | 1 | - |
| Forum Nail Salon | - | - | - |
| New Creation Wrestling & Jiu Jitsu | Arts, Entertainment, and Recreation | 1 | - |
| Reflections Bookstore | - | - | - |
| VIP Snooker & Billiard Club | - | - | - |
Property Facts
| Total Space Available | 3,657 SF | Frontage | |
| Center Type | Strip Center | Gross Leasable Area | 20,635 SF |
| Parking | 95 Spaces | Total Land Area | 4.04 AC |
| Center Properties | 2 | Year Built | 1975 |
| Total Space Available | 3,657 SF |
| Center Type | Strip Center |
| Parking | 95 Spaces |
| Center Properties | 2 |
| Frontage | |
| Gross Leasable Area | 20,635 SF |
| Total Land Area | 4.04 AC |
| Year Built | 1975 |
About the Property
The location of this Property allows the retail tenants to serve the needs of the Antioch, Oakley, Pittsburg, Brentwood and other parts of eastern Contra Costa County. The combination of a growing residential base and a central freeway oriented location make Somersville Plaza an attractive shopping center with excellent exposure and signage directly across the street from Somersville Towne Center. Somersville Plaza is a corner site with good access and excellent exposure with over 500 feet of frontage along Somersville Road. This Property offers clear line of site views to the Somersville Towne Center located directly across the street. It is considered of good overall quality with surrounding residential population consisting of single family homes, apartment units and many major retailers located in the sub-market.
- Pylon Sign
Nearby Major Retailers
Presented by
Somersville Plaza | 2635-2669 Somersville Rd
Hmm, there seems to have been an error sending your message. Please try again.
Thanks! Your message was sent.






